查看完整案例

收藏

下载
让生活更美好
MHOO DESIGN
市心府360㎡
现代风
-
酌一室沉淀,
朝朝暮暮,渐与时长,
择一方雅居,
冬暖夏凉,熠熠明亮。
雅居
木中藏雅,无序藏奢
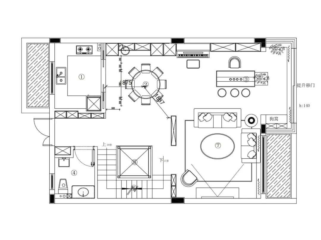
玄关以木饰面包裹,设有换鞋区、挂衣区,以及洗手间,进门带着岁月沉淀的氛围,庄重而立体。
入户直击眼前的,是无序的大理石背景墙,黑白相间的视觉冲击,让室内外无形中有了境制,悬浮的设计让客厅藏于后方,既不盖全,又似若隐若现。
穿过玄关,主厅由品茗区、乐器区、待客区三部分组成,主厅选色略显古韵的皮质沙发,木质的扶手线条分明,皮质的软垫触感细腻,刚柔并济,平衡感极佳,搭配一方木质茶几,待客会友,好不快哉。
茶台选用胡桃木材质,其上面特殊的纹理很是应景,如水的波纹,茶具如一叶叶小舟,赏心悦目,喝茶闲聊,亦是一种趣味。
纵有无数欢乐,不如一顿团圆饭,餐厅是享尽烟火气的地方,顶部做圆形吊顶,一圈设有灯带,让餐厅的光变得柔,变得缓。
厨房和整个空间保持一样的通透感,U型的台面可供4-6人备餐,吊轨门藏入墙中,超薄的门框简约好看,平时可做开放式厨房,偶遇油烟时,可变为封闭式。
可视化电梯的好处在于通透明亮的同时还有观光全屋的作用,是贯穿全屋的灵魂,无论从哪个角度看,通透清爽。
三楼作为主卧,有着独立套间的样式,超大的采光窗让空间充斥着阳光的味道,拆除原有的墙体,将空间划分为睡眠区、步入式换衣区、卫生间三个部分,卧室的空间舒适感很强,阳台靠窗的位置设有电动沙发和书桌,慵懒和放松效果拉满。
客卧安置在二楼,做旧工艺的木饰面有了岁月的痕迹感,皮质菱格的床头略带怀旧复古,床头悬吊一盏花瓣水晶灯,一切都是自在的样子。
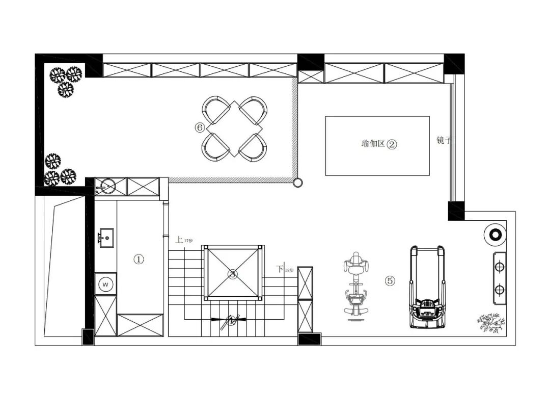
由于地下室有部分是公共设备,层高略低,更似于夹层,做娱乐活动区最合适,用木饰面将凸起部分包裹做地台,安置棋牌桌,约上三五好友,即刻开牌,侧面靠墙做展柜,一处小风景便出来了。
亮点:
本案中,由于结构房梁较多的缘故,在空间上尽量以打开为主,而区域划分则依靠不同房梁做出的造型对视觉产生无形分区,可谓设计师的巧思之处。
- 走进案例
In The Case
业主需求
居住人口两位,有一只宠物狗,需要足够的收纳空间,卧室留三间即可,还需预留一个钢琴的位置。
户型分析
顶部房梁较多,需要合理规划;
入户视线过于开阔,少了隐私性;
负二楼有公共设备区,层高充足;
负一楼层高较低,空间较为压抑;
二、三楼有阳台,有足够操作空间。
户型改造
入户做悬空屏风柜,有效保留隐私;
一楼将阳台包入客厅,扩大空间面积;
二楼浇筑层板,把阳台包入卧室,将次卧置于2楼;
三楼做主卧套间,成为独立起居室。
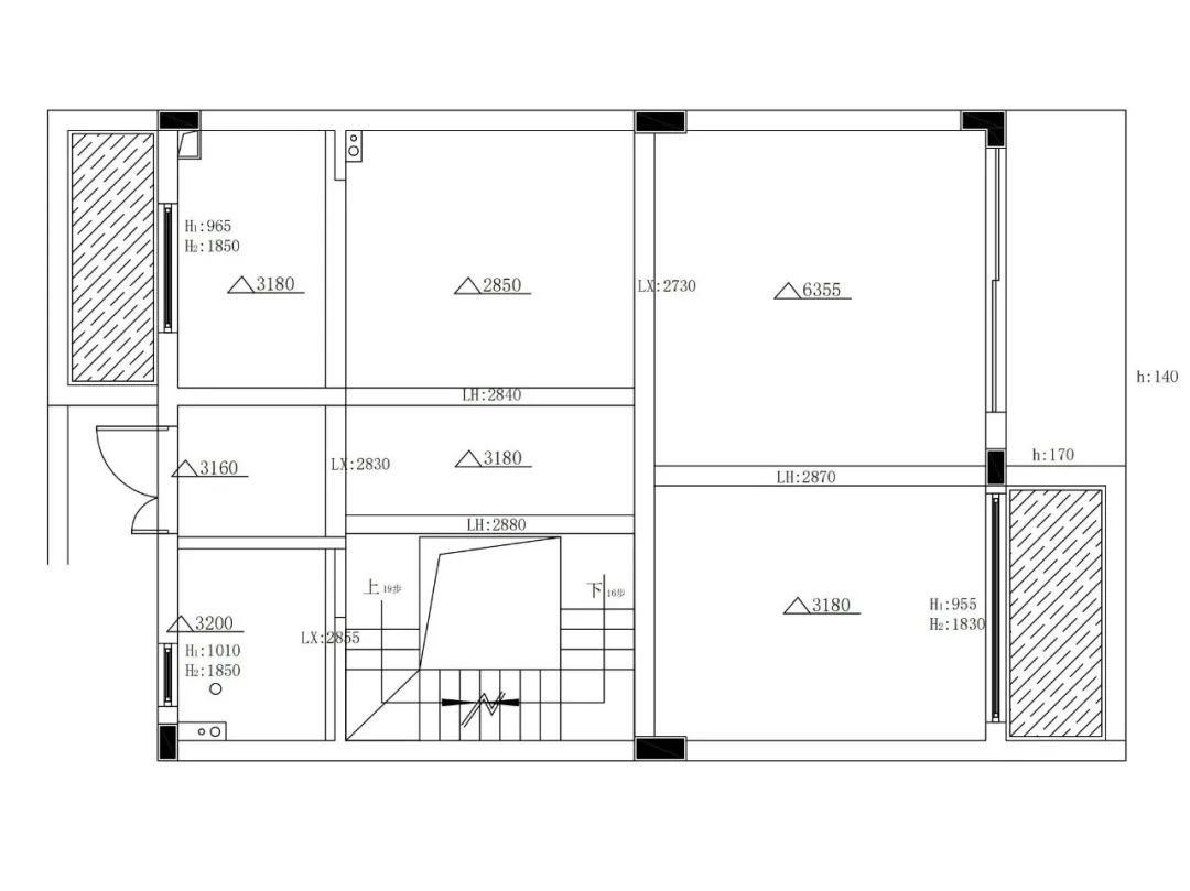
4F原户型
4F平面图
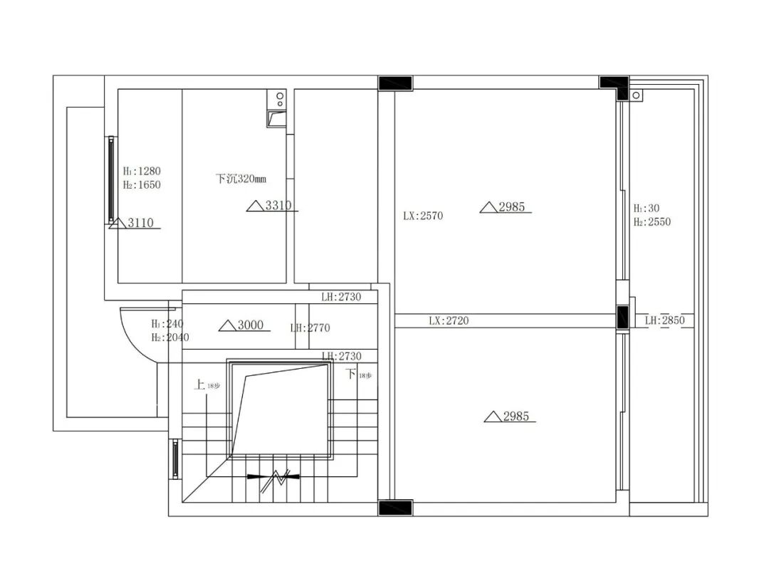
3F原户型
3F平面图
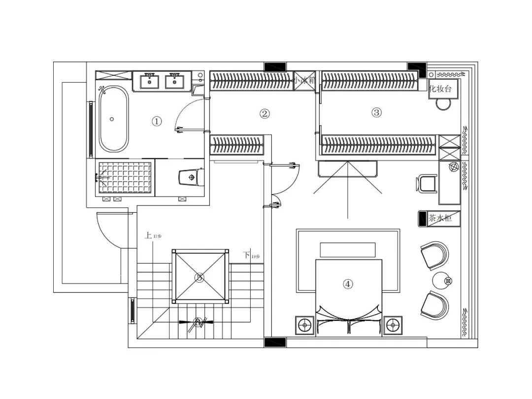
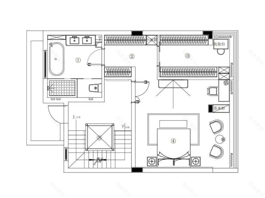
2F原户型
2F平面图
1F原户型
1F平面图
-1F原户型
-1F平面图
-2F原户型
-2F平面图
案例信息
Case Information
项目楼盘:市心府
项目户型:排屋
项目面积:360㎡
项目风格:现代风
设计团队:全盛别墅设计 曹登峰
施工团队:大宅工程中心 郑云翔
施工单位:麦丰装饰集团
装修总投:土建工程5w、花园景观5w、防水防潮施工2w、基础工程38w、硬装主材产品30w、木作定制30w、机电设备18w、智能安防5w、灯具2w、系统窗2w、家具20w、软装配饰7w、电梯22w
主要用材:木饰面,岩板,瓷砖,硬包
作品拍摄:林峰
文字编辑:郑多余
从无到有
给你精彩!
有装修需求的小伙伴们
☟
点我在线预约
往期优秀案例
别墅大宅
MHOO|清华园225㎡意式极简:轻简于形,奢繁于心
MHOO|悦麒美寓300㎡意式轻奢:漫步苍穹,沉稳之美
MHOO|乐虹湾300㎡轻法式:邂逅三维,细品浪漫
MHOO|藏珑大境200㎡现代原木:Y·house向光而居
住宅公寓
MHOO|万家名城140㎡现代风:见素抱朴,返璞归真
MHOO|宝嘉誉峰139㎡现代简约:感受通透的“呼吸感”
MHOO|美哉美城110m²复古混搭:煦色满室,韶光悠长
MHOO|明德明理府130㎡复古原木:把生活藏进旧时光
MHOO|阳光郡110m²现代风:黑白梦境,纯粹之美
旧改/精装
MHOO|132㎡精装房:融合灰色系与极简主义
MHOO|君品名邸170㎡法式轻复古:循光进入一场优雅绮梦
MHOO| 黑*白现代风 150㎡精装改造房
商业空间
MHOO|166㎡中古店 既是怀旧,亦是新潮
MHOO|治愈美学·网红推拿院 270㎡侘寂风
MY HOME DESIGN
珍惜所托,用心服务
▼
客服
消息
收藏
下载
最近





















































