查看完整案例

收藏

下载
北京室内装饰协会
- 会长单位
透明化 - 流程化
- 装修更靠谱
36项出错即砸
大家好呀!
今天要分享位于燕京航城
的装修
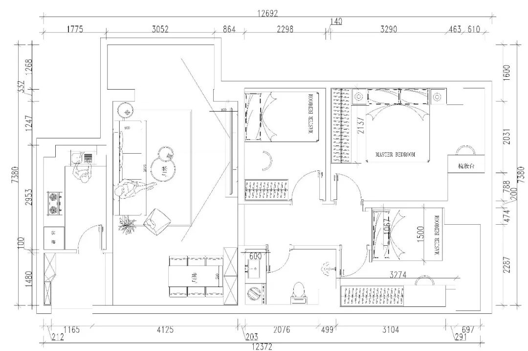
这是一套97
平米的三
居室住宅
选择
现代简约风
作为装修风格
简洁而不失高级感
真的超爱!
一起看看吧~
现代简约风
燕京航城97㎡三居室住宅
推开门,现代简约的家以简洁姿态相候,没有花哨,只有素净空间里,专属于我的宁静归处。
入户,以简洁硬装勾勒轮廓。平整墙面、利落顶角线,搭配一体化定制柜体,隐于简约中,实用与美学共生,进门即启质感日常。
客厅以简约为骨,
纯白墙面延伸开阔视野,利落线条游走于吊顶与电视墙间,勾勒空间秩序。悬浮电视柜轻盈别致,与艺术吊灯相呼应,
融入线条感吊顶,搭配大幅装饰画、极简落地灯,
沙发、茶几等家具款式简约,绿植的点缀为空间带来生机,整体营造出舒适且时尚的居住环境。
主卧以柔和米白为基调,墙面简洁干净,嵌入灯带的壁龛增添收纳与氛围感。圆形顶灯勾勒温馨,无主灯设计延伸空间。一体成型的顶角线,让空间过渡自然,每一处硬装细节,都为睡眠氛围打底,营造治愈休憩场。
次卧浅白墙面作底,搭配温润木色柜体,以简洁顶角线收边,勾勒利落空间框架。圆形吊灯柔和洒下光线,嵌入式书桌与一体化收纳,营造温馨治愈、适配休憩与日常的成长小天地 。
收纳间打破传统格局束缚,以利落硬装线条,勾勒收纳间秩序美感。墙面一体化柜体嵌入,将收纳隐于无形;开放格与封闭柜精妙配比,兼顾展示与储物。简洁顶面、通铺地面,构建整洁基底,让每一寸硬装,都为收纳与生活服务,重塑空间实用美学 。
厨房一体化定制柜体,无缝嵌入家电,消弭空间边界;通顶设计延伸视觉,拓宽收纳纵深。悬浮灯带轻缀,点亮角落温馨,墙地同色通铺,简化清洁动线。把实用逻辑藏进利落线条,让每一次下厨,都成为与舒适共舞的日常 。
浴室墙面与地面采用统一浅灰色系瓷砖铺贴,顶部平整的集成吊顶,巧妙隐藏照明与排风设备 ,让顶面干净利落。无把手的浴室柜与洗衣机、烘干机组合柜体,线条流畅,勾勒出简约的轮廓,大容量收纳满足生活所需。黑色金属质感的淋浴花洒与毛巾杆,在素雅的基调中增添一丝精致与硬朗,智能马桶的嵌入,不仅提升了使用的舒适度,也彰显了科技感与品质感。
原始测量图
拆除墙体图
新建墙体图
平面布置图
客服
消息
收藏
下载
最近


















