查看完整案例

收藏

下载
让生活更美好
MHOO DESIGN
十里春晓127㎡
现代北欧
-
空灵梦幻,静谧轻柔
恍然隔世,暖光交融
好似一个茧
属自然,亦属纯净
诉说这治愈的力量
素木
轻柔纯净质感
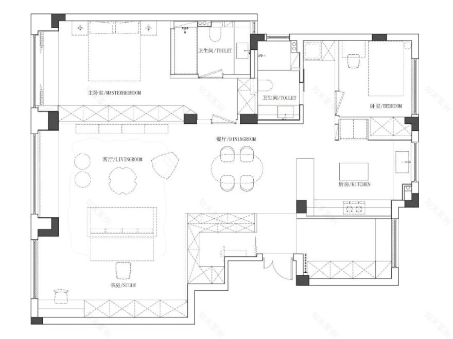
主厅从天花板到墙用大面积留白增加空间的光感,大面积的白松木地板通铺全屋,保留木材的原始纹理和色泽,给人一种温暖且贴近自然的感觉。
视线掠过毛毛虫沙发,书房与主厅融为一体,开放式的空间让家变得如此空灵敞亮,明净的光源营造着治愈的氛围。
书房安置两处桌子,一个朝向墙体做安静办公区,另一处作为多功能手工区,供亲子娱乐使用。
餐厅是承载四季欢笑的地方,有着属于家的味道,中古经典的蚂蚁椅和7字椅,连同北欧风的椭圆餐桌混搭在一起,小资的味道浪漫又温馨。
入户玄关,做了一个下沉式设计,能很好地隔离灰尘,而左手方,则是一个800库,足够容纳鞋帽衣物或日常家用工具。
在本案中,小细节的装点总是给人眼前一亮的欣喜,厨房的左右两侧分别设置了挂衣区和展柜区,随业主的生活喜好任意装点。
厨房兼具中西厨,中央设置岛台区,方便烹饪操作,纯白配色干净整洁,空间更显立体。
主卧以低饱和配色,最大限度地引入自然光线,让阳光能够充分洒入室内,床头两侧则放置小灯,营造出温馨的睡眠氛围。
儿童房主打可爱俏皮感,木质藤编更加贴近自然,有防掉落设计,给孩子提供更加安全的舒睡环境,儿童房门口便是卫生间,便于儿童起居。
- 走进案例
In The Case
业主需求
一家三口,需要一间女儿房,有西厨需求,厨房工作区需增加面积;喜欢空间敞亮干净,透光自然。
户型分析
户型南北对流,全屋皆有采光;
原有户型布局分配不合理;
户型承重结构规整,便于改动;
厨房空间有限,不能同时满足中西厨;
卫生间采光不足。
户型改造
将阳台内包,扩大卧室、书房空间面积;
书房和主厅做全敞开式设计,保证空间通透性;
厨房外扩做开放式设计;
主卫墙面改玻璃,增加透光性;
入户改造下沉式800库鞋帽储藏间。
原户型图
平面图
案例信息
Case Information
项目楼盘:十里春晓
项目户型:平层
项目面积:127㎡
项目风格:现代北欧
设计团队:麦丰国际设计 徐建赞
施工团队:工程项目中心 宗亮亮
施工单位:麦丰装饰集团
装修总投:基础工程13W、瓷砖2W、地板3W、卫浴3W、橱柜2.5W、大理石0.3W 、五金配件0.2W、木作定制10W、机电设备6.5W、灯具1W、家具6W、软装配饰1W
主要用材:木地板 乳胶漆 全屋定制 瓷砖
作品拍摄:林峰
文字编辑:郑多余
No.
/ 小景呈现 /
从无到有
给你精彩!
有装修需求的小伙伴们
☟
点我在线预约
往期优秀案例
别墅大宅
MHOO|清华园225㎡意式极简:轻简于形,奢繁于心
MHOO|悦麒美寓300㎡意式轻奢:漫步苍穹,沉稳之美
MHOO|乐虹湾300㎡轻法式:邂逅三维,细品浪漫
MHOO|藏珑大境200㎡现代原木:Y·house向光而居
住宅公寓
MHOO|万家名城140㎡现代风:见素抱朴,返璞归真
MHOO|宝嘉誉峰139㎡现代简约:感受通透的“呼吸感”
MHOO|美哉美城110m²复古混搭:煦色满室,韶光悠长
MHOO|明德明理府130㎡复古原木:把生活藏进旧时光
MHOO|阳光郡110m²现代风:黑白梦境,纯粹之美
旧改/精装
MHOO|132㎡精装房:融合灰色系与极简主义
MHOO|君品名邸170㎡法式轻复古:循光进入一场优雅绮梦
MHOO| 黑*白现代风 150㎡精装改造房
商业空间
MHOO|166㎡中古店 既是怀旧,亦是新潮
MHOO|治愈美学·网红推拿院 270㎡侘寂风
MY HOME DESIGN
珍惜所托,用心服务
▼
客服
消息
收藏
下载
最近















































