查看完整案例

收藏

下载
北京室内装饰协会
- 会长单位
透明化 - 流程化
- 装修更靠谱
36项出错即砸
大家好呀!
今天要分享位于三河自建别墅
的装修
这是一套
500
平米的别墅住宅
一起看看吧~
三河自建500㎡别墅住宅
踏入一层新中式客厅,硬装以木为魂,铺陈东方雅韵。顶面线条勾勒层次,灯带晕染柔光;墙面木作温润,格栅窗棂藏纳诗意。
地面通铺大理石,温润大气。从天花到地面,借材质、造型传递东方美学,打造典雅且具现代感的居住空间 。
餐厅,顶面设计圆形吊顶搭配吊灯,营造温馨聚焦的用餐氛围 ;四周墙面以木饰面为主,打造嵌入式酒柜与收纳柜,兼具美观与实用;地面铺就大理石,温润大气;整体布局规整,圆形餐桌搭配中式座椅,尽显东方韵味与优雅格调。
厨房
,
以实木橱柜为筋骨,沉稳木色传承东方韵味。墙面简约利落,搭配智能厨电,兼顾传统审美与现代功能。地面大理石通铺,流畅动线适配烹饪需求,窗景引入自然,让烟火日常也满是雅致诗意。
二层休闲区,
地面铺设纹理流畅的大理石地砖,光泽温润
顶面采用简洁的无主灯设计,线性灯与筒灯巧妙搭配,勾勒出空间的层次感与纵深感 ,营造出柔和而温馨的氛围。墙面选用质感细腻的材料,大理石与木饰面拼接而成的电视背景墙,纹理自然大气,成为视觉焦点,同时兼具收纳展示功能 。
卧室
,
顶面简洁平整线性灯带勾勒温柔光晕;墙面运用同色系拼接,大理石纹理增添艺术感,嵌入收纳架实用又别致。定制衣柜与空间相融,玻璃门展示衣物,营造通透感。地面浅灰地板,搭配柔软地毯,从材质到光影,构建静谧舒适的休憩空间 。
次卧
,以简约高级为主调,浅米色墙面营造温润氛围。顶面嵌入筒灯与线性灯带,打造无主灯的开阔感;定制一体化柜体,开放格借灯带凸显精致,收纳与展示兼具。地面浅木色地板,搭配同色系地毯,柔化空间从墙面到柜体,用简洁线条与柔和光感,构建舒适且具格调的休憩小天地 。
小卧室
,以简约为笔,绘就温馨氛围,墙面分色处理,浅白与柔棕搭配,层次含蓄;顶面嵌入线性灯,勾勒柔和光晕,无主灯设计显开阔。地面通铺浅色木地板,温润亲肤。一体化书桌与柜体,借灯带营造轻盈感。
收纳间,以实用美学重塑空间。顶面嵌入筒灯,借线性光带勾勒层次,无主灯设计释放开阔感;墙面定制一体化柜体,玻璃与封闭柜门结合,既显通透又藏纳有序;地面浅木色地板,柔和亲肤。从柜体布局到灯光运用,用简洁硬装语言,打造兼具收纳效率与格调的衣物整理专属场域 。
书房,以简雅笔触勾勒办公氛围。顶面嵌入筒灯,线性灯带暗藏温柔光晕;墙面定制一体化书架,开放格借灯光展陈藏品,封闭柜藏纳有序;地面通铺大理石,沉稳大气。从柜体到灯光,用利落硬装语言,打造兼具实用与格调的思考空间 。
卫生间,以理性美学构建洁净场域。顶面集成线性灯,简约利落;墙面通体石材,搭配嵌入式收纳龛,借灯带营造精致感;悬浮台盆柜轻盈实用,智能镜增添科技氛围。从空间布局到细节处理,用克制的硬装语言,打造兼具功能与格调的卫浴空间 。
地下一层休闲娱乐区,天花板嵌入筒灯,简洁又满足照明,搭配个性吊灯,点亮空间层次。开放式布局打破界限,客厅、休闲区、餐厨流畅衔接,让互动交流自然发生,把大宅的开阔感与现代生活的通透需求完美融合。
墙面定制的金属嵌边收纳柜超绝,带背光设计,陈列物品秒变艺术展陈,高级感拉满地面通铺同色系石材,延伸空间感,开放式布局让餐厨互动超流畅,不管是烹饪交流,还是朋友小聚都超有氛围。
影音厅以沉浸式体验为核心,顶面打造星空造型,点状光源模拟星河,营造梦幻氛围;墙面采用木质与软包结合,线性灯带勾勒层次,兼具声学优化与视觉美感;地面深色大理石,强化沉稳质感。从酒柜到观影区,一体化硬装设计,将功能与氛围融合,构建私享视听盛宴空间 。
吧台以暗调基底打底,天花板用星空顶 + 线性灯勾勒,营造电影氛围感墙面同色板材嵌灯带,藏起收纳还显高级。地面深色大理石通铺,扛造又衬质感。吧台区石材一体成型,酒架嵌入墙面,在家微醺、观影无缝切换。
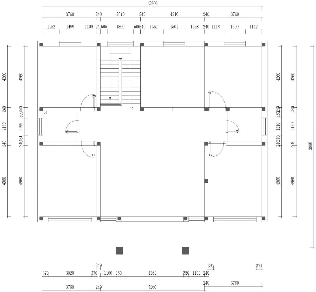
一层原始测量图
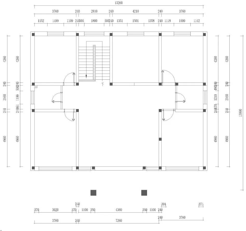
一层新建
墙体图
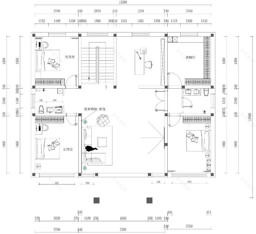
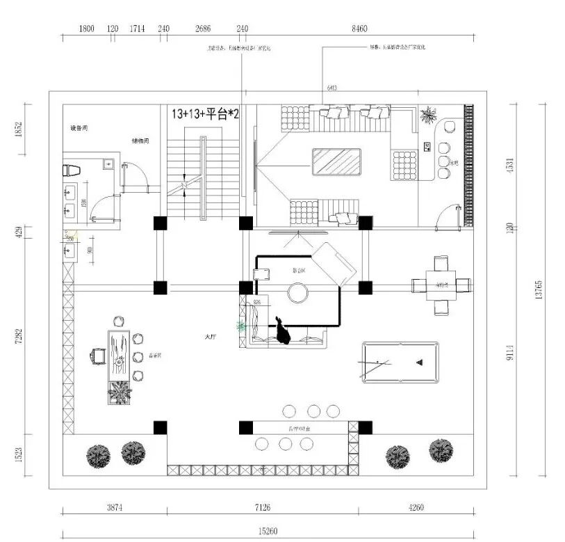
一层平面布置
图
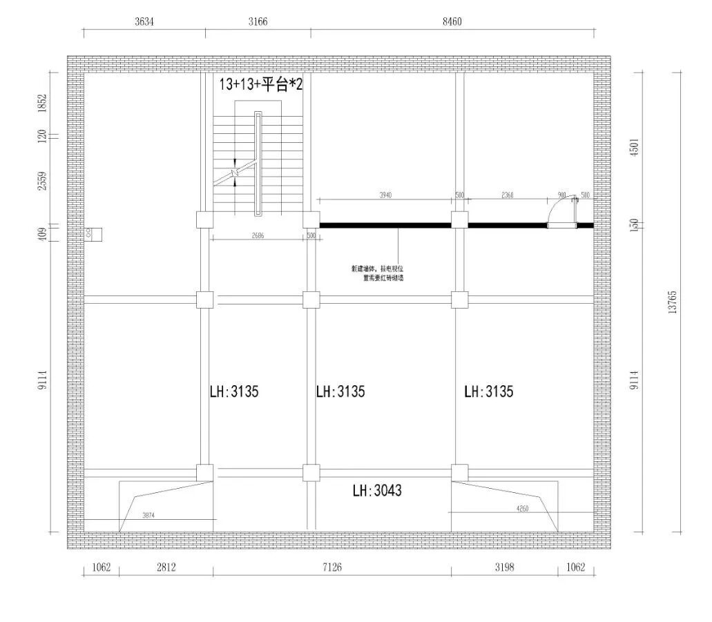
二层原始测量图
二层新建墙体图
二层拆除
墙体图
二层平面布置图
地下原始测量图
地下拆除
墙体图
地下新建墙体图
地下平面布置图
客服
消息
收藏
下载
最近


































