查看完整案例

收藏

下载
更多免费图纸
项目概况
项目位置丨河南新乡
图纸编号丨000642
建筑尺寸丨面宽16m,进深12.5m
建筑面积丨341.00㎡
占地面积丨190.00㎡
官方指导价 | 土建61万
建筑风格丨欧式
结构形式丨砖混结构
01.
丨平面布局图丨
户型概况:
2层 / 7室 2厅 4
卫 1厨 2洗衣 2衣帽 1娱乐区 1起居室 1露台
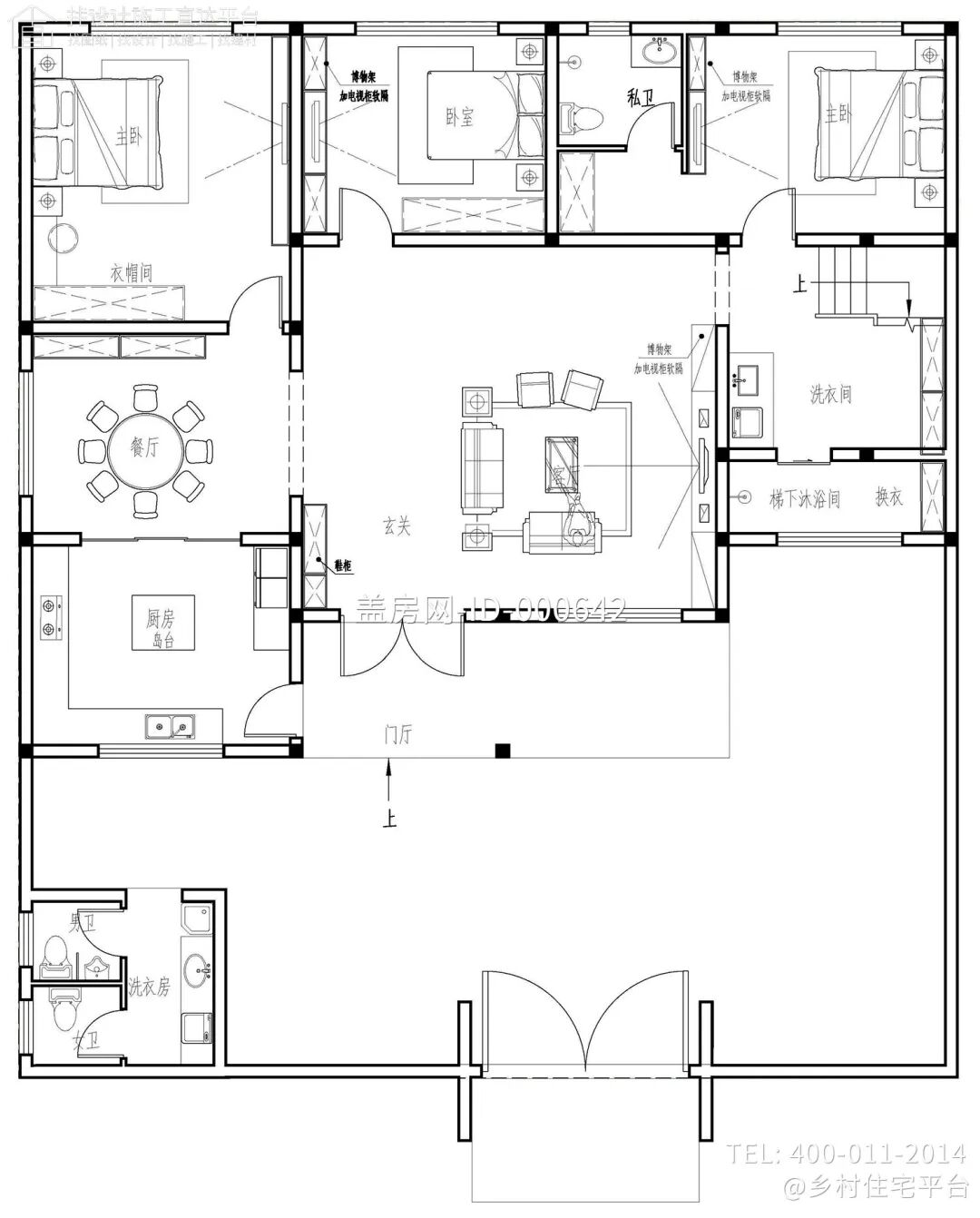
△一层平面图
一层由南侧入户,以待客居住功能为主,共设置3间卧室,入户西侧为洗衣房,餐厨空间为一体化设计,增加了室内的通透感;南侧的两间主卧均为套间设计,搭配衣帽间或独立卫生间进行使用。
△二层平面图
二层以居住休闲为主,共布置4间卧室,北侧的两间主卧为套间设计,搭配衣帽间或独立卫生间进行使用,中部的起居室外接超大露台使用,提供了充足的晾晒、休闲、观景及娱乐空间。
02
丨建筑效果图丨
△
南侧效果图
△西南侧
效果图
△东南侧
效果图
△西北侧
效果图
△东北侧
效果图
03.
丨项目点评丨
适宜地域
南方、北方
适用指数
高
适用家庭
有长辈和孩子,喜欢欧式别墅
别墅户型
7室
、2厅、4卫
图纸内容
建筑、结构、给排水、电气、暖通
项目地点位于河南新乡,
建筑整体为优雅的欧式风格,主要以浅色为主,通过体块颜色的变化展现层次感。屋顶部分选用浅灰色,使得建筑整体上的风格更加统一。
设计师通过内部欧式宅院形式进行设计,提高了建筑内部的私密性,院落的围墙风格与建筑主体和谐统一。
二层的露台设计,为居住者提供休闲娱乐场所。内庭院预留处的部分可划分为休闲区、景观区、停车场,丰富建筑功能的多样性。
河南新乡二层欧式别墅
ID 000642
推荐图纸如果尺寸不符合
获取AI免费设计
获取更多免费建房施工图纸
图库
客服
消息
收藏
下载
最近











