查看完整案例

收藏

下载
北京室内装饰协会
- 会长单位
透明化 - 流程化
- 装修更靠谱
36项出错即砸
大家好呀!
今天要分享位于四季花都
的装修
这是一套108平米的三居室住宅
选择
奶油风作为装修风格
简洁而不失高级感
真的超爱!
一起看看吧~
奶油风
四季花都108㎡三居室住宅
踏入家门,仿若跌进温柔的怀抱。浅米色沙发,似云朵般柔软蓬松,搭配上几个造型别致的抱枕,随意又自在。白色的茶几简约大方,静静伫立,宛如艺术的留白。脚下的地毯,以柔和曲线勾勒,每一步都像是在与温暖相拥,于这一方天地,慵懒与惬意肆意蔓延。
客厅
墙面摒弃繁杂,以纯净的奶白色打底,如轻柔的云朵晕染开,
地面铺设温润的哑光地砖,浅米色基调如暖阳洒落。流畅的线条与柔和的色泽相呼应,行走其上,触感舒适。局部搭配浅棕地毯,自然的纹理与柔和色调交融,无声地勾勒出空间的层次感与温馨氛围。
门窗边框选用简约的黑色金属材质,利落线条勾勒出精致轮廓,边框设计,让视野更开阔。
餐桌
台面以纯净白色呈现,宛如冬日初雪,平滑细腻,质感十足,为用餐时光铺就纯粹底色。利落的几何造型,简约而不失大气,勾勒出流畅的线条轮廓,餐桌底部的支撑结构,设计精妙,稳固且轻盈,搭配同色系浅棕餐椅,皮革材质柔软亲肤,黑色金属椅腿纤细利落,刚柔并济,让每一次围坐都成为温馨美好的相聚。
主卧墙面轻敷一层柔和的奶白色涂料,细腻而平滑,摒弃繁杂装饰,仅以简洁线条稍作修饰,营造出纯粹、舒适的休憩氛围,
顶面设计化繁为简,利落的平面吊顶搭配嵌入式筒灯。
线性灯带环绕其间,柔和光线晕染开来,
纯净的白色柜门,搭配部分玻璃材质,通透与封闭结合。玻璃柜门内暖黄色灯带巧妙嵌入,点亮时,宛如为衣物披上一层柔纱,不仅增添了氛围感,更方便找寻衣物。
次卧墙面选用淡雅的奶白色乳胶漆,
顶面采用简约的设计,干净的平面搭配精致的顶角线,勾勒出简洁流畅的线条。嵌入式筒灯均匀分布,光线柔和不刺眼
地面铺设浅木色地板,纹理自然,
床头采用软包设计,浅驼色的皮革材质柔软亲肤,精致的缝线工艺彰显品质
定制的白色衣柜,线条简洁流畅,无把手的设计,满足收纳需求。
定制一体化柜体,外观以纯净白色为主色调,搭配局部深灰色与玻璃材质,玻璃柜门内嵌入暖光灯带,点亮时,无把手设计,线条流畅利落,彰显简约时尚感,同时满足收纳与展示功能。窗户边框简洁,搭配浅灰色厚重窗帘与白色窗纱。厚重窗帘遮光性强,能营造静谧睡眠氛围;窗纱轻盈透光,引入柔和自然光,让室内光影交错。地面铺设浅色系瓷砖,表面光滑质感细腻,反射柔和光线,易于清洁打理。
浴室采用干湿分离设计,玻璃隔断巧妙划分淋浴区与洗漱洗衣区,
墙面和地面皆选用浅米色瓷砖,瓷砖表面光滑,易于清洁打理,
洗漱台以简洁的白色岩板打造,搭配同色系悬空式柜体,下方留出的空间,让清扫无死角。上方的镜柜设计独具匠心,封闭与开放储物空间结合,玻璃柜门内嵌入暖光灯带,方便拿取洗漱用品的同时,增添氛围感。
透明玻璃淋浴房,黑色金属边框精致利落,顶部安装方形集成吊顶,嵌入式浴霸提供温暖舒适的洗浴环境,大尺寸花洒带来畅快的淋浴体验,让沐浴成为一种享受。
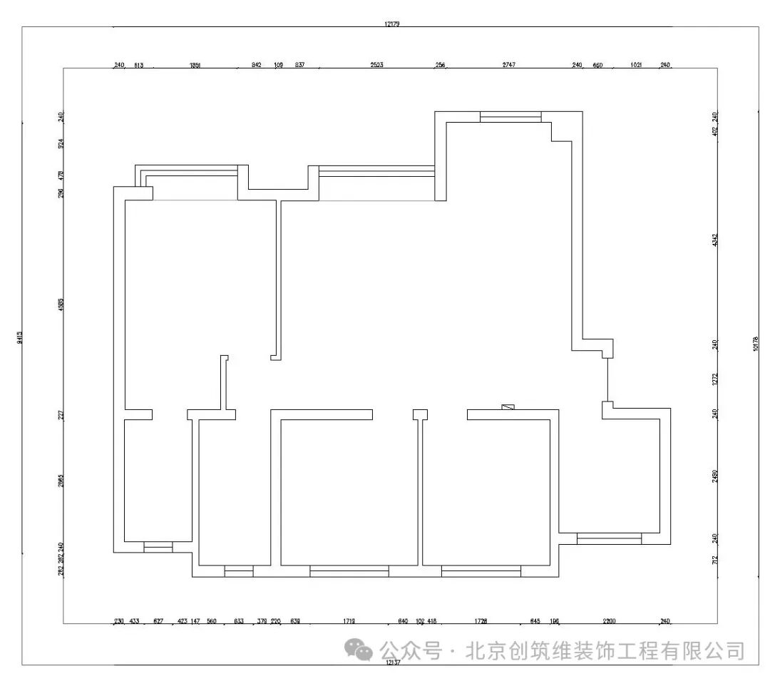
原始测量图
拆除墙体图
平面布置图
客服
消息
收藏
下载
最近


















