查看完整案例

收藏

下载
更多免费图纸
项目概况
项目位置丨湖南邵阳
图纸编号丨002037
建筑尺寸丨面宽17m,进深11m
建筑面积丨544.00㎡
占地面积丨193.00㎡
官方指导价 | 土建76万
建筑风格丨欧式
结构形式丨砖混结构
01.
丨平面布局图丨
户型概况:
3层 /
7室 2厅 6卫 1厨 1堂室 3储藏 2书房 2起居室 2衣帽间 2阳台 1露台
△一层平面图
建筑以南侧入户,
一层主要为待客休闲空间,东侧设置了餐厨空间和1间卧室套房;西侧预留大面积的客厅空间,满足过年待客所需
。
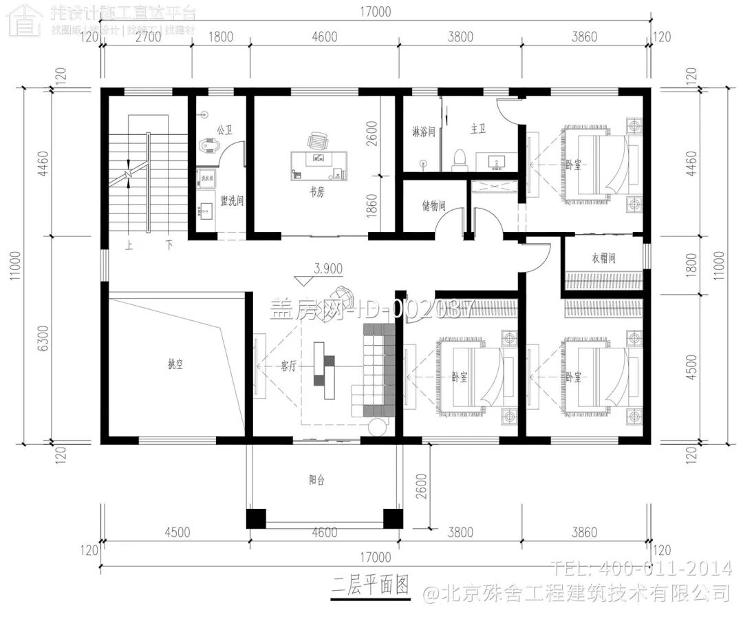
△二层平面图
二层为居住功能为主,共布置3间卧室,其中一间为主卧套房,中部客厅与书房的搭配,为家人创造更为舒适的居住生活体验。
△三层平面图
二层为居住功能为主,共布置3间卧室,其中主卧套房搭配露台使用,中部客厅与书房设置基本与二层相同。通过客厅可以到达室外阳台区域。
02
丨建筑效果图丨
△
南侧效果图
△西南侧
效果图
△
东南侧
效果图
△鸟瞰
效果图
△鸟瞰
效果图
△鸟瞰
效果图
03.
丨项目点评丨
适宜地域
南方、北方
适用指数
高
适用家庭
有长辈和孩子,喜欢欧式别墅
别墅户型
7室
、2厅、6卫
图纸内容
建筑、结构、给排水、电气、暖通
项目地点位于湖南邵阳,
建筑整体
为欧式别墅,
整体配色较为淡雅,大面积的浅色真石漆搭配深色构件,再缀以浮雕、雕花等欧式元素装饰,立面造型精致优雅。
南侧的露台使得建筑景观功能极大增强,搭配老虎窗设计,既提升室内空间的采光效果,又凸显建筑整体的层次感。
建筑各立面都根据室内需求开窗,有少量装饰点缀。本着实用美观的原则,北立面并未做过多处理,使得层次感分明。
湖南邵阳三层欧式别墅
ID 002037
推荐图纸如果尺寸不符合
获取AI免费设计
获取更多免费建房施工图纸
图库
客服
消息
收藏
下载
最近













