查看完整案例

收藏

下载
更多免费图纸
项目概况
项目位置丨四川巴中
图纸编号丨000325
建筑尺寸丨面宽18.8m,进深14.8m
建筑面积丨513.00㎡
占地面积丨229.00㎡
官方指导价 | 土建88万
建筑风格丨新中式
结构形式丨砖混结构
01.
丨平面布局图丨
户型概况:
2层 /
6室 2厅 3卫 1厨 1堂室 1储藏 4衣帽 2茶室 1书房
△一层平面图
建筑以南侧入户,中部的堂室和客厅通过电视墙进行半隔断,北侧的餐厨空间内设次入口,东侧预留两间卧室,其中主卧套房设置在东南侧,提升室内的采光效果。
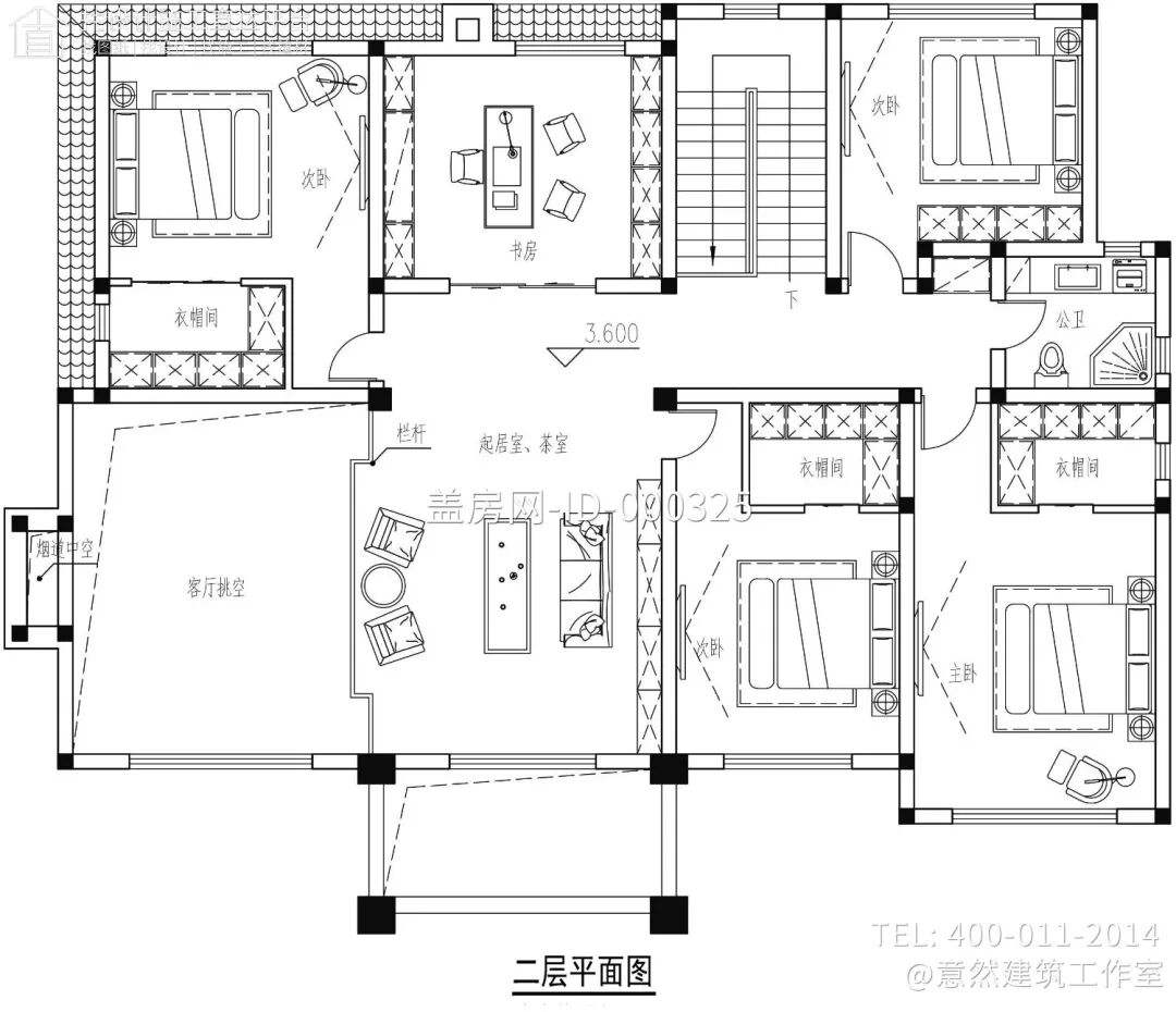
△二层平面图
二层为居住娱乐空间,布局基本相同,中部的书房和茶室搭配使用,共布置4间卧室,其中设置3间卧室套房。
02
丨建筑效果图丨
△
南侧效果图
△西南侧
效果图
△
东南侧
效果图
△鸟瞰
效果图
△鸟瞰
效果图
△鸟瞰
效果图
△西北侧
效果图
03.
丨项目点评丨
适宜地域
南方、北方
适用指数
高
适用家庭
有长辈和孩子,喜欢新中式别墅
别墅户型
6室
、2厅、3卫
图纸内容
建筑、结构、给排水、电气、暖通
项目地点位于四川巴中,
建筑整体
为新中式别墅,
墙面大面积使用淡黄色,而屋顶则采用蓝灰色,冷暖搭配使立面造型充满层次感。墙面上设有中式回字纹,细节部分的设计不仅使平直的墙面产生变化,还可以使空间似隔非隔,景观若隐若现。
主立面配以大面积的玻璃窗,将建筑的通透轻盈之感表现得淋漓尽致。建筑屋顶采用传统的中式双坡屋顶形式,通过设计将建筑点缀在庭院的景色中,色彩上通过浅色与深色形成碰撞,自然又具有气势。
建筑坐落在基地上自然形成庭院部分,立面墙体稍显单调,使用绿植配合低矮灌木或盆栽鲜花,让视觉上丰富不少。
四川巴中二层新中式别墅
ID 000325
推荐图纸如果尺寸不符合
获取AI免费设计
获取更多免费建房施工图纸
图库
客服
消息
收藏
下载
最近













