查看完整案例

收藏

下载
更多免费图纸
项目概况
项目位置丨湖南衡阳
图纸编号丨002009
建筑尺寸丨面宽11.4m,进深11.1m
建筑面积丨312.00㎡
占地面积丨132.00㎡
官方指导价 | 土建47万
建筑风格丨新中式
结构形式丨砖混结构
01.
丨平面布局图丨
户型概况:
2层 / 6室 2厅 2卫 1厨 1棋牌室 1洗衣区 1玄关 1衣帽间 1茶室 1阳台
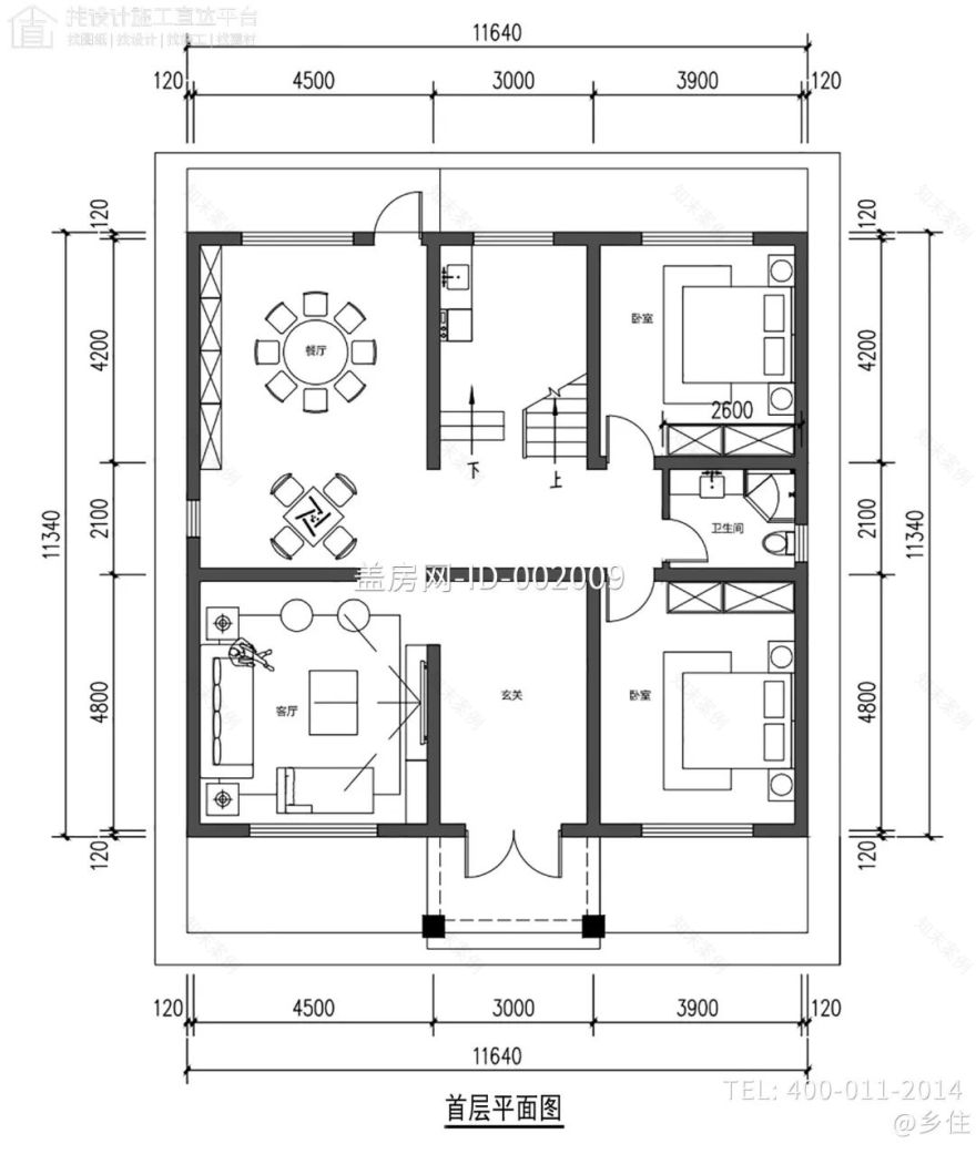
△一层平面图
一层以待客休闲功能为主,在建筑东侧共设置二间卧室,客厅与玄关相连,通过玄关进入室内区域。
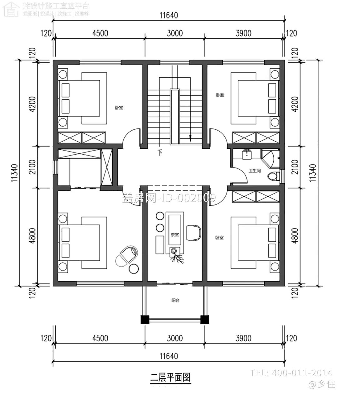
△二层平面图
二层为居住空间,南侧设置有茶室,配有阳台,共设置有四间卧室。
满足家人的居住生活需求。
02
丨建筑效果图丨
△
南侧效果图
△西南侧
效果图
△
东南侧
效果图
△鸟瞰
效果图
△鸟瞰
效果图
△北侧
效果图
03.
丨项目点评丨
适宜地域
南方、北方
适用指数
高
适用家庭
有长辈和孩子,喜欢新中式别墅
别墅户型
6室
、2厅、2卫
图纸内容
建筑、结构、给排水、电气、暖通
项目地点位湖南衡阳,
建筑整体
为新中式风格,
整体色调自然而淡雅。立面采用浅色真石漆,搭配精简的深色线条及中式栏杆构件,造型上错落有致,使得整体更显大气、稳重。
实体墙面与阳台形成对比,丰富了立面的结构与层次。围栏和腰线的处理,强化了整体的细节,增加了建筑的体量感。
建筑立面采用较多线条化的设计增强空间划分,使得整体效果更显规整。外墙部分通过高低起伏的变化增强整体灵动感,并充分保障室内房间的隐私性。
湖南衡阳二层新中式别墅
ID 002009
推荐图纸如果尺寸不符合
获取AI免费设计
获取更多免费建房施工图纸
图库
客服
消息
收藏
下载
最近












