查看完整案例

收藏

下载
■ HAOS - 好室设计
"
居所是“家”的具象呈现,功能及形式表达都会与空间使用者相契合。正如约翰·波特曼所说:“建筑的实质是空间,空间的本质是为人服务。”
全新的布局规划符合业主的生活习惯,设
计师在空间氛围感的营造上花了不少心思,充分满足了业主的情绪价值需求。
"
•
01
LEAVE A MOTE
留 白
-
推开家门进入室内,空间的色彩变化、灯光亮度、材质的搭配等,调动着氛围变化。
居住者自由行走于任一场景中,与空间形成对话,感受着与自己情绪相匹配的氛围,整个人不经意间就放松下来。
-
P. 01
P. 02
P. 03
留白,是为了更真实地表达空间的魅力。温暖的自然光下,将大面积的白色及天然材质的结合,给空间注入了观赏性。
-
P. 04
P. 05
考业主想要打造在家阅读的氛围,一楼设计了一个书房和餐厅结合的形式。将元素简化到最基本的形式,更加衬托出块面的理性与静美。
-
P. 06
P. 07
P. 08
阔达的格局下,体验“少即是多”带来的愉悦与松弛感。驻足于阳台眺望远方,豁然开朗。
化缺点为优势,借由开放式动线轨迹,将客厅、餐厨区多个功能区串联,场景转换中,释放出利落的秩序美感。
-
P. 09
P. 10
•
02
GROW
生 长
-
踏步而下,木质与玻璃组构而成的楼梯,保持了开放、流畅的基调,承载上下楼层连接功能时,也增强了空间的立体感。我们便来到了负一楼的公共空间。
-
P. 11
P. 12
负一楼主要是男女主人和孩子居住以及公共活动的空间。
尽可能选用可移动的家具,方便多种场景的切换。
-
P. 13
P. 14
P. 15
透过窗户就能看到孩子房间,晚上也可以关上,白天增加室内的光线。两个女儿白天可以在一起玩耍,晚上睡觉的时候也可以拉上移门,更加私密。
-
P. 16
P. 17
P. 18
P. 19
• 03
ANALYSIS
DIAGRAM
分析图
-
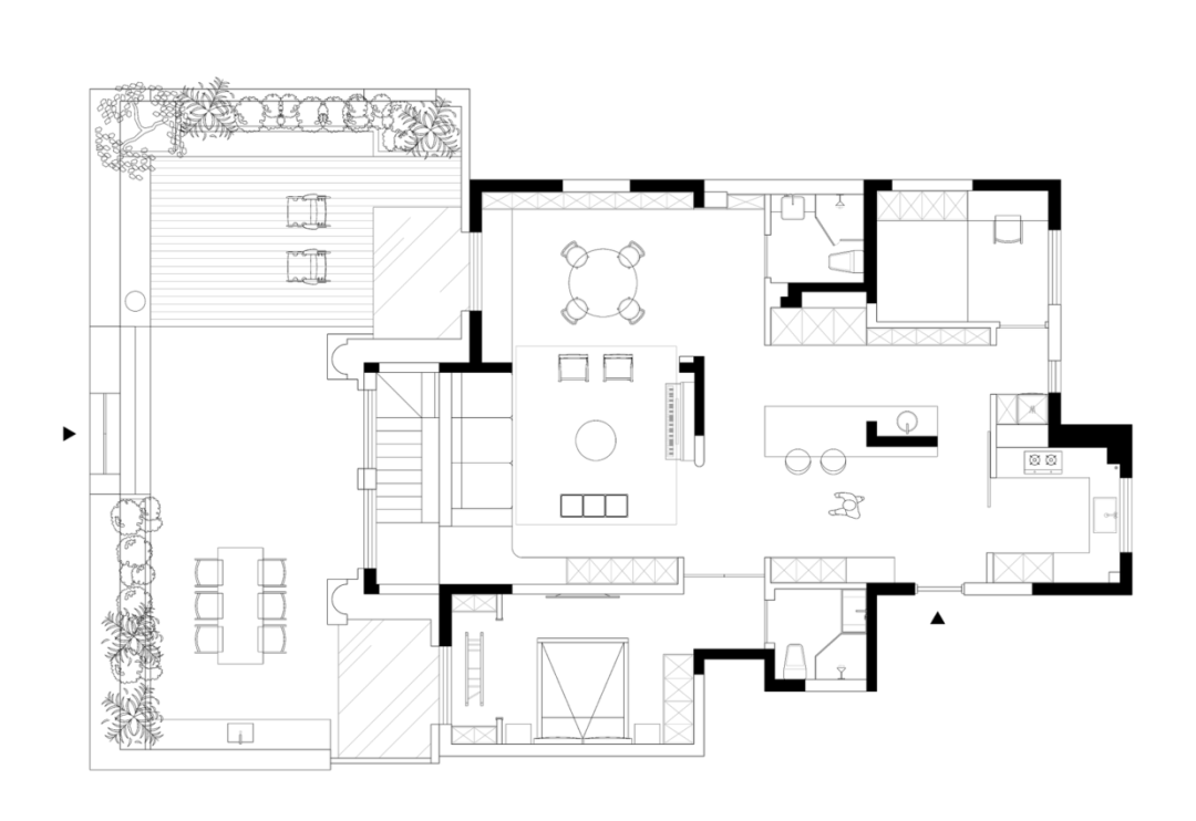
1F平面图 P. 20
-1F平面图 P. 21
INFO
- 项目名称 -
绮 境
- 设计机构 -
好室设计
- 设计总监 -
墨白
- 项目面积 -
240㎡
- 项目地址 -
山东 青岛
-
……
客服
消息
收藏
下载
最近























