查看完整案例

收藏

下载
Somthin‘else 长沙项目获
2025年度
Frame Awards,
multi-brand store(品牌集合店空间)设计
金奖。
Frame Awards,由荷兰《Frame》杂志于2018年基于优秀室内奖(The Great Indoors Awards)而设立。Frame Awards致力于评选和表彰全球最优秀的室内设计项目,还将殊荣授予项目背后的人。
获奖信息:
「织梦:构筑松弛梦境,打造奇幻氛围」
——————————————————
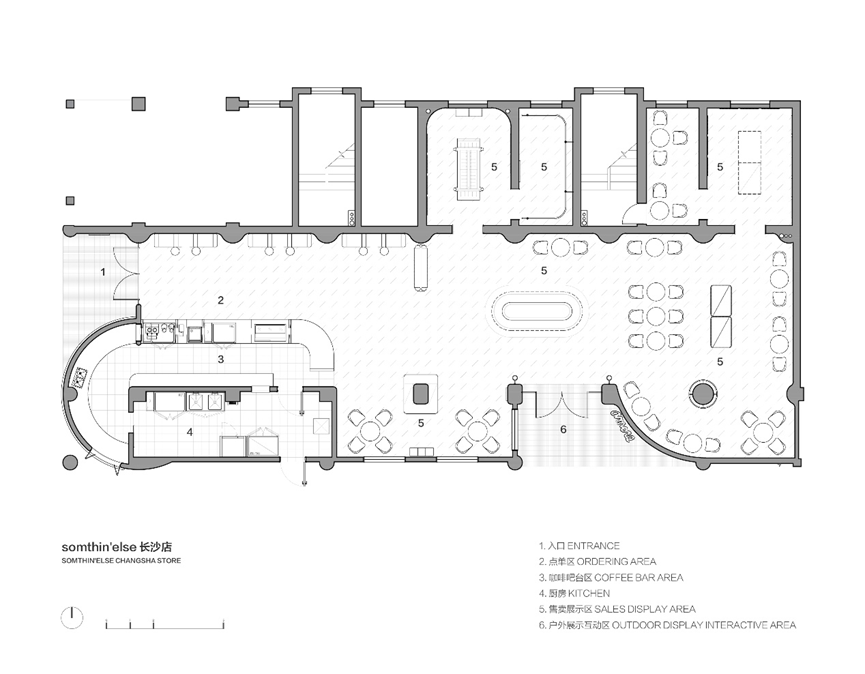
Somthin‘else 长沙
店铺坐落于街区的转角位置,拥有双面外立面设计,以最大化品牌的可见度与互动感。整体色调选用大胆且柔和的粉色,并融入弧形柔和曲线,呈现出类似充气气球般的轻盈感,仿佛漂浮在街区之中。这种视觉语言不仅回应了潮宗街区的松弛氛围,也让品牌更具吸引力,激发行人的好奇心。
入口区域的品牌 IP 被塑造成一个富有趣味性的艺术装置:戴着夸张太阳眼镜的卡通形象与拟人化仙人掌,成为吸引顾客拍照打卡的标志性元素。同时,发光的品牌 Logo 结合粉色墙面,营造温暖氛围,并融入复古霓虹灯的视觉记忆,使街区的烟火气息与品牌的奇幻风格完美融合。
「奇遇:沉浸式体验,唤醒探索欲望」
——————————————————
从咖啡吧台开启一场奇趣之旅。
步入店铺,右侧就是一个温暖柔和的咖啡区域。这里不仅是一个提供饮品的场所,更是品牌营造沉浸式体验的起点。粉色瓷砖包裹的弧形吧台,与整体空间色彩和谐统一,形成治愈且梦幻的视觉效果。
座位区延续轻松愉悦的调性,黄色泡沫软椅搭配蓝色小桌,与可爱的玩偶元素一同构成一个温馨又充满童趣的角落。这里不仅提供片刻休憩的空间,也让人们自然地融入到sômthin'else 精心编织的奇幻世界中。
层层递进后,不断展开的彩色体验空间,充满童趣与梦幻,蓝色的区域为原有的柱子,也进行了橱窗式的处理,让空间中的原始结构彻底消隐,处处是展示。在这些不经意的角落,能够让顾客探索发现更多的新奇商品。
店内的产品展示区打破了传统零售的单一陈列模式,以“探索感”为核心,打造层次丰富的购物路径。不同的展示装置交错排列,形成开放与半开放的购物体验,使顾客在步行中不断发现新的惊喜。
最具特色的设计之一,是将“旋转寿司台”概念引入首饰展示区,使商品陈列更具动感与趣味性。商品在旋转轨道上流动,打破静态展示的界限,让购物成为一场富有互动感的探索旅程。
玩偶被悬挂在柱子上展示,波浪的墙面夹杂着错落的展架,有的展架长了“脚”,有的则长了“角”。我们也让这些道具的设计彻底与空间的梦境融为一体。
「探索:隐藏的口袋空间,开启寻宝冒险」
——————————————————
空间内特别设置了两个“口袋型”展示区,如同隐藏的秘境,每个小空间都仿佛是一座山洞,藏匿着不同的商品与独特的布景。顾客如同探险家,穿梭其中,在每一次游走的瞬间都能感受到“别有洞天”。
长沙店的诞生,不仅是 sômthin'else品牌理念的延续,更是一场与城市气质的深度对话。它汲取了潮宗街区的松弛、包容与自由,以创新设计打造梦幻、奇遇与探索并存的空间。这里不仅仅是一个零售店铺,更是一个可以随心停留、自由探索、偶遇惊喜的场所。在这里,创意与生活交织,探索与松弛共存,每一位踏入这片奇幻之地的游客,都能找到属于自己的奇物与奇遇。
-----------------------
项目信息
项目名称:sômthin‘else 另有奇物
设计方:域式建筑 UStudies Architects
项目设计 & 完成年份:2024.08 – 2025.1
主创及设计团队:付强,周子璇,何勃隆
项目地址:长沙潮宗街
建筑面积:330㎡
摄影版权:UK Studio
客户:sômthin‘else 另有奇物
域式建筑正在招聘
JOBS
室内设计师
• 建筑学、室内设计或环境艺术学士
• 不少于3年室内设计工作经验
• 具有优秀的方案设计能力,学习的主动性及团队合作精神
• 熟练运用相关软件
• 具有良好的职业态度,可配合高效的工作节奏
• 中英文俱佳者优先考虑,有施工现场经验者优先考虑
助理室内设计师
• 建筑学、室内设计或环境艺术学士
• 不少于1年室内设计工作经验
• 熟练运用相关软件
实习生(长期招聘)
• 建筑学、室内设计或环境艺术专业,实习期不少于连续3个月
• 熟练运用相关软件,积极主动好学
• 中英文俱佳者优先考虑
应聘者请将个人简历和作品集以PDF格式(附件小于10M)发至
联系
业务联系:
域式代表作品:
INFOLD 洛杉矶办公空间
柠川文化上海办公空间
柠萌影视上海新总部办公空间
海宁德俊总部办公空间
柠萌影视北京办公空间
柠川文化办公空间
叠纸科技总部
Look Store IAPM 零售店
智云. 云逸办公空间
Office Gallery,Gallery Office-办公艺廊
从彗星到天空之境-新天地 LOOK 包包鞋子概念店
Spa Space:An Exploratory Study of Minimalism
Space 新天地广场店:健身+社交3.0空间
紫龙游戏办公室
客服
消息
收藏
下载
最近












































