查看完整案例

收藏

下载
项目地址:乐山
建筑类型:别墅
室内面积:1000㎡
主要材质:大理石、岩板;红洞石,艺术涂料,红色微水泥(楼梯)
设计想法:
刚接触本案,会担心业主的接受度,一度我们设计比较保守,设计也偏向普通的甚至现在规模化的家装公司流行的风格,但是出乎意料,业主虽然没用专业词汇表达,却表现出对于极简感或者偏前卫的风格方向的喜好,让我们也对于这个项目产生了极大的设计热情。
1000㎡,豪宅的面积,却因为原建筑设计是两套别墅,并且层数偏多,二合一之后产生空间格局小,梁柱众多的问题。把问题变为优势是我们喜欢用手法,当缺点强化到一定程度。所产生的产生的张力会让原本的缺陷变为亮点。
所以在遵循简约的基础上,我们采用结构感的手法,把所有立柱强化成圆柱,在空间中反而产生建筑化的感受,并且考虑了空间的第二亮点-桥。
挑高空间的桥除了趣味性之外,让两层的人之间产生情绪上联动。让两层空间不再孤立,而是产生实质性的连接。(因为结构原因,二楼产生了“死角空间,靠窗的无用过道”这样在逻辑上不太理想)
,所以我
们利用二楼一个不常用的客房,把客房门改到了桥的那边,牺牲一点实用性,让桥和对面的空间活起来.
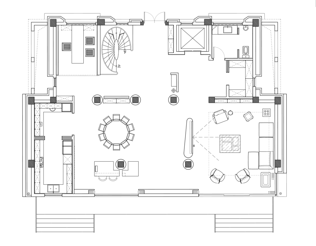
↑平面图
- - - - - - - - - - - - - - - - - - - - - - - -
地址
/ 中国.成都.天府三街保利星座4-716#
/ 境壹空间
/ jingyikongjiansheji
设计生活:设计不单单是一个“漂亮的空间”或好看的作品,它更多的是一个家,一个有生命的力的家,所以,风格并不那么重要,我们更多希望能做到空间表达,而区别于商业设计,空间主题一定是住在空间中的人,空间中的人与空间的契合,是当下我们最看重的点。
客服
消息
收藏
下载
最近

















