查看完整案例

收藏

下载
简洁的外立面与居民楼的丰富随意形成反差
©
胡文杰
上海
玉兰花开公益文化会客厅,由上海徐汇玉兰花开公益发展中心
建设并
运营
。
这家机构
为各类公益
、
慈善
活动和文化交流提供了专业平台,促进了公益组织、爱心企业及社会各界间的合作与交流,推动了徐汇区公益事业的发展,也提升了社区的文化氛围和凝聚力,让更多人关注并参与到公益文化活动中来。
同时,这里也是上海市慈善基金会女性健康的一个活动地点。因为机构位于居民区内,与居民的社区生活保持一定程度的相互融合也是必不可少的。
让爱融入尘烟。
位于社区中的独立小楼
©
胡文杰
改造后的外立面
©
胡文杰
项目包括外立面优化改造、室内设计和庭院景观的设计。
与居民楼近在咫尺
©
王善祥
平实低调的入口
©
王善祥
入口细部
©
王善祥
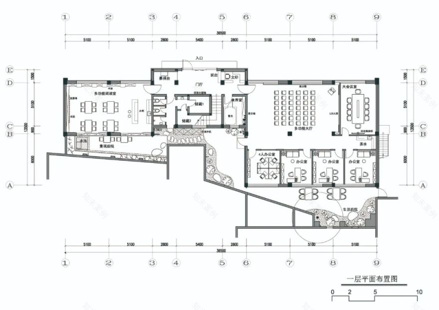
会客厅位于徐家汇中心附近的住宅区内的一栋独立三层小楼
,
这个小楼为东西向的长方形,曾经作为厂房、企业办公等功能使用
。
小楼的正对面(北立面)不到
9
米既是居民楼,楼下两侧居民停放汽车,中间只能容
一
部轿车通过。
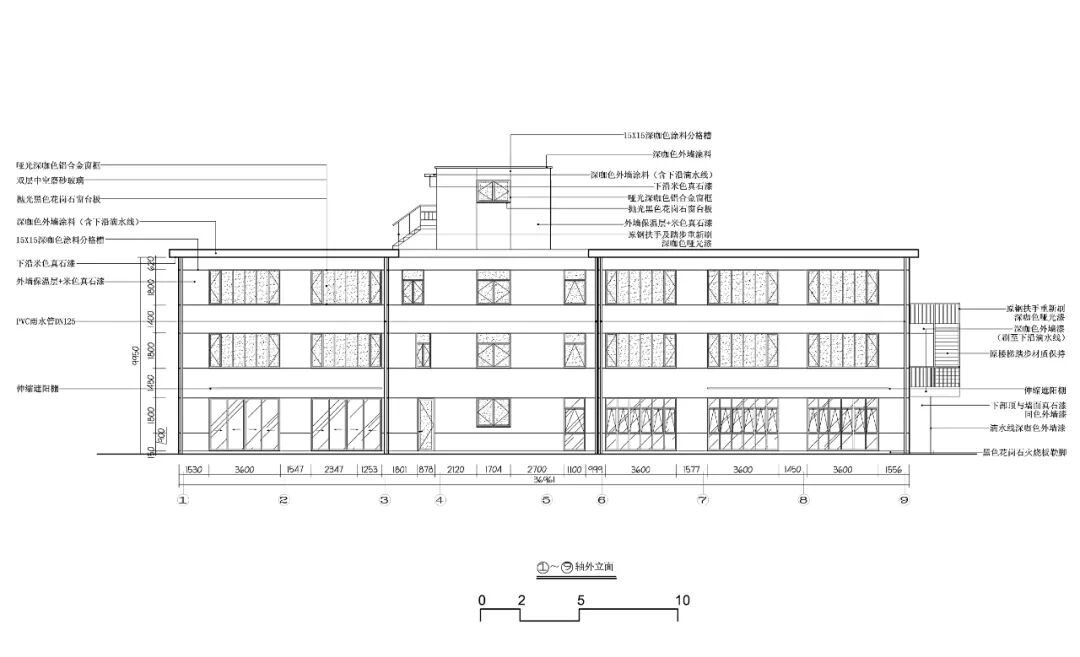
首先是建筑外立面改造,为了控制有限的造价,外立面主要是做了重新粉刷,仅在凸出的一楼门厅外墙做了外墙砖,三楼的玻璃房重新制作,使建筑主立面有点肌理和材质等元素变化。由于距离居民楼太近,为减少相互之间的视线干扰以保持各自的隐私,建筑北立面窗户全部采用了磨砂玻璃。建筑南侧有学校、办公楼等,距离也并不是太大,因此南立面的窗户内部安装了木制百叶帘,有效的保持了私密性,在需要阳光的时候百叶帘也可以调节角度让阳光照入。
门厅
©
胡文杰
门厅楼梯间
©
胡文杰
楼梯间
©
王善祥
一楼西侧的图书馆
©
胡文杰
图书馆细部
©
王善祥
图书馆的女性关爱宣传
©
王善祥
一楼东侧的多功能厅
©
胡文杰
多功能厅灯具细部
©
王善祥
一楼东侧办公室
©
王善祥
这个楼的主入口位于中间,接待门厅和主楼梯就位于这栋楼的中间部位。门厅
西侧是一个小型图书馆,可供小区及周边居民前来休闲阅读
,
与居民生活相互融合
。东侧是一个多功能会议厅,可提供文化宣传、企业会议等使用。
楼梯间
©
胡文杰
贵宾接待室
©
胡文杰
贵宾接待室细部
©
王善祥
二楼东侧展厅细部
©
王善祥
二楼西侧养生保健室茶歇区
©
胡文杰
二楼的养生保健室
©
王善祥
二楼是一个公益和慈善主题的展厅,同时还有行政接待室、茶室和养生保健室,由相关爱心单位提供和展示专业文化。
楼梯间
©
胡文杰
三楼过厅
©
胡文杰
三楼过厅窗格细部
©
王善祥
三楼东侧企业家会所
©
胡文杰
相关企业的产品展示
©
王善祥
三楼东侧走廊
©
胡文杰
三楼企业家会所书画室,具有传统厅堂的空间意蕴
©
胡文杰
三楼企业家会所休息室
©
胡文杰
三楼的流动空间
©
王善祥
三楼细部
©
胡文杰
三楼家具细部
©
王善祥
三楼是一个企业家俱乐部,为促进公益组织、爱心企业及社会各界间的合作与交流提供一个较为丰富多彩的文化生活场所
,
以木质格栅门窗分格的空间
具有
一丝中国
传统厅堂的意蕴
。
三楼西侧办公室
©
胡文杰
三楼办公室相关企业的临时展品
©
胡文杰
三楼办公室
©
王善祥
三楼
还设有一间可做为临时商务使用的办公室
,
供公益组织和爱心企业在必要的时候作为办公使用
。
室内设计从一楼开始基本是国际化的风格基调,但是往二楼开始融入新中式元素,到三楼则全是新中式风格,这种空间风格的渐变渲染了更加浓郁的文化氛围和精神凝聚力。但是三个楼层的风格并非跳跃式变化,而是在某种统一的基调上逐步变化。
与居民楼近在咫尺
©
王善祥
后院景观草图
楼后(南面)有一条曲折并且宽窄不一的庭院,本来也设计了花园景观,但是在建设期间赶上了上海的疫情封控,最终仅简单处理了一下原有地面铺装,没有按照方案再做深化实施。
楼梯间的窗户
©
王善祥
工程名称:
上海玉兰花开公益文化会客厅
空间
设计
完成时间:
2023
年
委托单位:
上海徐汇玉兰花开公益发展中心
地址:上海市
徐汇
区
天钥桥
路
380
弄
5
幢
8
号
设计内容:改造
及室内
设计
设计
面积:
1100
㎡
设计单位:上海善祥建筑设计有限公司
设计
团队
:王善祥
王善辉
龚双艳
施工单位:上海中屿建设
(
集团
)
有限公司
实木家具供应商:黄山市徽州区盛徽商贸有限公司
关键词:
公益慈善
弄堂
社区生活
爱
入尘烟
摄影:胡文杰(渡影傳播
)
少量注明的为
王善祥
空间原貌
建筑平面图
建筑施工图
-End-
客服
消息
收藏
下载
最近




































































