查看完整案例


收藏

下载

翻译
Questo manufatto, costruito nei primi anni del ‘900 come edificio produttivo presumibilmente per la lavorazione della foglia di tabacco, caratterizzato da una volumetria compatta con grandi aperture simmetriche, fa parte di un complesso architettonico che include la fattoria e la Villa con oratorio del Secolo XVIII. Questa tipologia aggregativa è tipica del sistema insediativo agricolo che caratterizza l’area nordest della toscana e in particolare la lucchesia. Intorno alla Villa e agli annessi agricoli si articola il mosaico della campagna, con cui gli edifici mantengono forti interrelazioni sociali ed economiche, costituendo la matrice di un paesaggio e di un modello insediativo che conserva tuttora un valore qualitativo universalmente riconosciuto. Il progetto di far rivivere il fabbricato ad uso abitativo è stato principalmente una scelta di vita e sostanzialmente un atto di amore. Questa determinazione ha permesso di riscoprire le potenzialità di un luogo dimenticato, risvegliando nuove possibilità, i presupposti per altri interventi di restauro e la riattivazione della produttività della campagna, con una evidente ricaduta sul paesaggio e sulla conservazione dell’equilibrio idrogeologico.
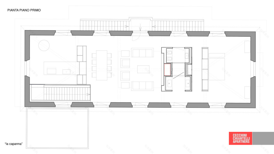
L’intervento lascia intatta la spazialità originaria del fabbricato, inserendo gli impianti e i servizi all’interno di moduli funzionali, disposti in sequenza, liberi nello spazio, per non interrompere la percezione visiva d’insieme. Nel restauro sono stati adottati i criteri propri del green building e la nuova costruzione di un “padiglione tecnologico”, coperto con i pannelli fotovoltaici-solari, e di un piano interrato adibito a servizi, offre risposta alle soluzioni tecnologiche adottate che assolvono alle necessità energetiche dell’edificio.
I committenti, esperti collezionisti d’arte moderna e orientale, sensibili ai temi dell’architettura contemporanea, sentivano l’esigenza di disporre di uno spazio dove vivere e poter raccogliere le opere d’arte, selezionate nel corso degli anni. Questi presupposti hanno favorito quel dialogo costruttivo fra progettista e committente che è alla base per la realizzazione di un’opera. Le scelte minimaliste e rigorose, che sono state condivise, offrono le condizioni ottimali per valorizzare le collezioni sempre in itinere, nel rispetto dello spazio di questo edificio.
L’intera area, inserita negli Ambiti edificati di interesse storico architettonico del Comune di Capannori, è sottoposta a vincolo ambientale e soggetta ad Autorizzazione ai sensi del D.lgs. n°42/2004 – Codice dei beni culturali e del paesaggio.
NOTE TECNICHE
L’edificio è stato ristrutturato completamente seguendo i criteri del green building. Non potendo intervenire sui prospetti esterni, l’involucro è stato isolato con un cappotto interno di intonaco ecologico naturale ecocompatibile, formulato con calce idraulica, sughero, argilla e polveri diatomeiche, ad alto potere di isolamento termico, fonoassorbente, traspirante e deumidificante. Il tetto, ricostruito completamente con capriate e struttura in legno di castagno, è stato isolato con un pacchetto ventilato, coibentato un alto spessore di isolante termico. La quota d’imposta del solaio di copertura è stata abbassata internamente al fine di rispettare la gronda sagomata in cotto esistente. Il solaio del piano primo, in parte crollato nella zona corrispondente alla scala, è stato realizzato con struttura metallica e tamponato in cartongesso per accogliere gli impianti e l’aspiratore telescopico della cappa a scomparsa della sovrastante cucina. Gli altri due terzi della struttura sono stati ripristinati utilizzando le travi preesistenti armate in acciaio. Tutte le strutture lignee sono tonalizzate con velature di colore, per armonizzarle con la finitura a calce delle pareti e dei pavimenti in legno naturale e cemento in getto. Un setto murario in calcestruzzo sostiene la scala in acciaio e legno che collega i due piani openspace, divenendo elemento costruttivo caratterizzante del progetto. Gli infissi sono realizzati con profili di acciaio a taglio termico, completati con tende oscuranti automatizzate, integrate nell’imbotte della finestra. Lo studio illuminotecnico permette di costruire scenari funzionali alla percezione dello spazio, delle opere e degli oggetti.
L’edificio è dotato di sistema domotico basato su protocollo standard KNX e interfacciato con BUS illuminazione tramite appositi gateway KNX/DALI. Attraverso la domotica, oltre all’illuminazione, all’impianto stereo e al sistema d’allarme, si possono controllare gli impianti termoclimatici, per un miglior confort ed efficientamento energetico.
La gestione dell’illuminazioe e del termoclima si effettua sia dai comandi in campo che da remoto mediante pc, smartphone e tablet. Su questi dispositivi, all’interno di App dedicata, sono state realizzate specifiche pagine grafiche attraverso le quali anche un utente non esperto può facilmente creare o modificare scenari in base alle proprie esigenze. L’elaborato studio illuminotecnico ha consentito di costruire scenari funzionali alla percezione degli spazi, delle opere d’arte e degli oggetti di design.
Il progetto si completa con la realizzazione di un padiglione tecnologico sovrastante il piano interrato, adibito a servizi, coperto con pannelli fotovoltaici e solari integrati nella copertura, che si relaziona con l’edifico principale con un’area soggiorno open air.
Il padiglione, realizzato con struttura di acciaio, è stato concepito fin dall’inizio per integrare i moduli fotovoltaici e ibridi in una superficie complanare composta dalla partitura riflettente dei pannelli, delimitata dalla lamiera forata della gronda e del colmo con la funzione di areare la parte sottostante e di raccogliere le acque meteoriche.
SISTEMA FOTOVOLTAICO INTEGRATO
Il sistema composto da 24 moduli: 20 fotovoltaici modello Eclips SOL250P e 4 "ibridi" (fotovoltaico + prod.ACS) modello Eclips TWINSUN SOL250P, allacciati a inverter trifase 6KW modello Fronius SYMO 603M. L’impianto è suddiviso su 2 stringhe (1 con nr.12 FTV e 1 con nr.8 FTV + nr.4 ibridi)
PRINCIPALI CARATTERISTICHE MODULO FTV: 60 Celle in silicio policristallino 156x156mm Dimensioni: 1655x990x45mm Peso: 19Kg Colore: Nero Potenza Nominale:250Wp Potenza Specifica: 150Wp/mÇ Rendimento:15,16%
PRINCIPALI CARATTERISTICHE MODULO IBRIDO: 60 Celle in silicio policristallino 156x156mm Dimensioni: 1663x998x45mm Peso: 31Kg Colore: Nero Potenza Nominale:250Wp Potenza Specifica: 150Wp/mÇ Rendimento:15,06% Potenza Termica:1040W
PRINCIPALI CARATTERISTICHE INVERTER: Potenza nominale CA (Pac,r): 6000W Potenza di uscita massima: 6000VA Massima potenza di uscita de generatore: 12KW picco Allacciamento alla rete: 3-NPE 400V Numero ingressi CC : 2 Dimensioni: 645x431x204mm Peso: 19,9Kg. Grado di protezione: IP65 Web server integrato
DATI DEL PROGETTO
PROGETTO E D.A. Angela Chiantelli
COLLABORATORI Stefano Finelli Francesco Ferretti
DIREZIONE LAVORI Elvio Cecchini
OPERE STRUTTURALI Jacopo Baldini
CONSULENZA ILLUMINOTECNICA Raffaele Massoni
客服
消息
收藏
下载
最近












































