查看完整案例

收藏

下载
©
孔锦权
北斗山居是一次各方通力合作的乡建项目,困难与不确定性让它更像是一种地方性的自我挖掘与实验,里面交融着地方经验与现代意识、传统技艺与工业技术,最终呈现出既抽象又朴素的在地化品质,诠释着现代陕南民居的另一种可能。
感谢
垣建筑设计工作室(西安建筑科技大学建筑学院)
一、缘起
位于关中平原东南部秦岭深处的商洛,因商山、洛水而得名,是国家南水北调中线工程的重要水源涵养地,生态环境宜人,但水质保障的重任让其面临经济发展的压力。商洛市下辖一区六县,本项目位于商州区(中心城区)三岔河镇河谷地带的七星村,距市中心约半小时车程。当地政府自
2017
年开始推动七星村的农业经济,使其在
2019
年入选第二批国家森林乡村名单,
2021
年获评陕西省美丽宜居示范村。
▲七星村航拍
©
垣建筑设计工作室
作为区域发展的重要补充,本项目被定位为七星村的
“乡村客厅”,目标是将住宿、餐饮、地方产业和村落环境联动规划,吸引年轻人返乡,同时给予游客深入体验秦岭乡村生活的机会,以此改善乡村空心化现状,带动区域发展。项目得到了当地政府的全力支持,并由私营企业出资共建。与外来投资者不同,业主刘丁子和凤永斌作为当地知名企业家,表现出对家乡的爱与责任。从选址就可看出,他们并非只追求景观体验的独特性,更多考虑到了与乡村环境及村民之间的紧密联系。为此,项目选址于七星村及其产业基地的正对岸,仅一河相隔,由市政混凝土桥相连。
▲七星村航拍及区位图
©
垣建筑设计工作室
& Google map
二、地方特征
1
、关山行旅图
从西安到项目场地约
2
小时车程,有高速和国道两种选择,我们更愿意选择后者。从蓝田辋川穿越
312
国道进入商洛的路段,就是曾经著名的“蓝关古道”之所在,需从蓝田平原升至
1200
多米的牧护关(商洛市西大门),沿路风景令人振奋。从蓝田进入不久,道路便被紧紧夹持在褶皱的岩石地貌之中,可强烈感受到关仝(五代后梁时期的山水画家,陕西人)在《关山行旅图》中所刻画出的壁立千仞、兀石丛立的实景震撼。画中,建筑以开放的院落式布局散布于平缓之处,空间宁静致远,坡顶轻盈舒展,自然的木构桥体与建筑共同勾勒出一个可行、可望、可游、可居的曲折漫游路径。
▲《关山行旅图》及壁立千仞的秦岭山川
©
关仝(五代)
&
垣建筑设计工作室
▲褶皱岩石地貌中的
312
国道
©
垣
建筑设计工作室
2
、下重上
轻
沿路民居顺山势星散分布,向阳避风而建,多采用
“土木瓦房”,以厚重夯土或土坯粉白为墙,开窗较小,保温较好。双坡人字木构为顶,前后出檐深远,有的达到
1
米以上,屋顶两端也延伸到山墙以外五至八椽,檩条一并挑出,呈现出厚重体量与轻盈屋顶之组合。
▲商洛民居
©
垣建筑设计工作室
3
、挑楼形态
在沿河集镇地区,陕南民居多依山傍水就复杂地势而建,呈现高低错落的整体风貌。因用地局促,场地平整难度大,会采用节地的多层建筑。为争取面积,二层以上多会出挑,形成独特的
“挑楼”形态,同时带给一层半室外空间较大的遮阳。这种“挑”或“吊”的形态在南方湿热山区很常见,但陕南民居为了应对冬季保温,会把一层空间室内化,并借助石头砌筑出厚实的高台基础承托上部,同时防潮防湿。
▲旬阳城关街景及七星村民居
©
《陕西民居》
&
垣建筑设计工作室
三、现实条件
在垣建筑的过往乡村实践中,低造价、低技术、短周期及不可预期的错误常常成为我们必须面对的问题。这些问题在本项目中依然存在,并因场地的陡峭和道路不便显得愈发困难,建筑材料的运输常需要借助骡子或马匹来完成。但条件上的限制并非就是设计品质的障碍,如果综合平衡的好,反而会成就一种朴实无华的在地化高品质。
▲局促的施工场地
©
垣建筑设计工作室
四、设计策略
1
、尊重与保护
场地有五处废弃的宅基地,最高处的夯土民居情况较好,我们希望在施工条件成熟后再进行保护性改造。其余四处虽损坏严重,但场地已平整过,利于建造。宅基地周边的景观环境及毛石墙体在初次调研时便让我们印象深刻,妥善保留好它们成为首要态度。
▲场地的整体规划布局
©
垣建筑设计工作室
▲四组院子的模型照片
©
垣建筑设计工作室
▲场地原状航拍
©
垣建筑设计工作室
▲冬季的场地原状
©
垣建筑设计工作室
另外,业主希望酒店及院落能够沿用
▲秋天的建筑群落与山体
©
垣建筑
设计工作室
2
、布局与组织
前文已经提到,项目选址既与国道及村民生活紧密联系,又身处自然山体之中,由此便出现两个重要命题:第一,如何在开放与共享前提下,平衡好酒店客房的私密品质?第二,如何在山野之间的自然栖居中,创造无约束的放松及丰富体验?为解决命题,我们进行了反复推敲,最终形成如下组织策略。
▲鸟瞰天枢廊桥
©
孔锦权
(
1
)增设廊桥,形成功能复合的纽带
我们将设计范围延伸至与七星村及国道相连的既有混凝土桥梁,取名
“天枢廊桥”。首先通过地面高差实现人车分离,然后利用简洁的结构和工厂预制的方式,借力桥梁一侧搭建出木结构单坡廊架及休息座椅,同时回应了陕南地区善用木材的朴素传统。建成后的线性廊架将河道两侧连为统一整体,供大家日常驻足、休憩和观景,与国道相连的北端兼具公交站点的等候功能。主城区来向的错层双坡屋顶则成为酒店入口区的重要标志。
▲廊桥模型
©
垣建筑设计工作室
▲天枢廊桥与国道
©
孔锦权
▲夕阳下的天枢廊桥
©
孔锦权
▲天枢廊桥的公交站点服务
©
垣建筑设计工作室
(
2
)“安静的隐居”与“开放的广阔”
穿过廊桥,入眼便是
U
形布局的“天璇驿站”,院子开口朝向入口一侧,
U
形的三翼分别承载咖啡(含接待)、展示及餐厅等对外功能。展厅陈列着当地的土特产品,是业主对外展示家乡的窗口。建筑整体北低南高,临河一侧被完全打开,与环境最大化融通,其屋顶作为观景露台与南翼建筑的二层外廊直接连通。南翼两层建筑作为餐厅区,一层对外开放,二层对内服务,厨房等服务功能藏于角部;
▲四组院子的剖面类型
©
垣建筑设计工作室
▲天璇驿站鸟瞰
©
孔锦权
▲天璇驿站一隅
©
孔锦权
▲天璇驿站咖啡区
©
孔锦权
▲天璇驿站二层挑廊
©
孔
锦权
▲天璇驿站的
U
形内院
©
孔
锦权
▲天璇驿站餐厅区
©
孔锦权
“天权院”位于“天璇驿站”以南的台地之上,两院之间设置有一条与入口区相连并蜿蜒可达后山的汀步路径,强化了连续的漫游体验。“天权院”的建筑主体被保护性的推向靠近泉水的南侧,以获得静谧且阳光充盈的居住氛围。靠山的架空廊桥及北端小茶室与建筑主体共同构成背山面景的
L
形布局。入口一侧利用毛石墙体的错层限定,形成既开放又私密的前院,坐在院中或漫步于廊桥之上可远望山景,获得无限广阔。
▲天权院顶视剖透
©
垣建筑设
计工作室
▲天权院的廊桥与光影
©
孔锦
权
▲天权院的内院
©
孔锦权
▲天权院东立面
©
孔锦
权
▲天权院入口一隅
©
孔锦权
▲天权院鸟瞰
©
孔锦权
“天玑院”位于“天权院”以东的台地之上,可远眺七星村落及远山。因用地较窄,采用一字形满铺。公共部分靠近山路一侧,并与靠山的楼梯共同界定出过渡性的入口空间。公共体量的略微错动形成了对客房区域的限定与保护,其屋顶作为共享露台,可享山林美景。
▲天玑院与开阳院鸟瞰
©
孔锦权
▲天玑院的屋顶露台
©
孔锦权
▲大屋顶之下的天玑院露台
©
孔锦权
▲天玑院轻盈的大屋顶
©
孔锦权
▲与自然交融的天玑院一隅
©
孔锦权
▲与自然交融的天玑院一隅
©
孔锦权
“开阳院”位于山体高处,与山路有
3
米左右高差,私密性较好。两栋二层建筑紧贴后山崖壁,呈
L
形布局,围合出景观深远的共享前院,形成“安静的隐居”。两个建筑体量之间留出虚空,用通透的廊子相联系,形成后山与前院的融通。漫步式的转折楼梯平行于崖壁,进一步强化场地体验。南翼建筑的一层空间作为公共使用,最大化面向前院及远山,获得“开放的广阔”。最终,差异化的院落组织关系塑造了漫步体验中的变化与惊喜,形成
13
间各具特色的客房及其公共配套,实现了内外空间最大化的交融,使人获得被解放的愉悦,形成“安静的隐居”与“开放的广阔”之平衡。
▲开阳院的虚实变化
©
孔锦权
▲开阳院轻盈的屋顶与虚实变化
©
孔锦权
▲开阳院的内院夜景
©
孔锦权
▲开阳院鸟瞰
©
孔锦权
3、
建造与实现
(
1
)结构体系
在空间体验丰富性的目标下,我们采用了
“混凝土异形剪力墙或柱
+
厚板”的结构体系,是一种既利于施工,又有足够自由度来应对乡建施工不确定性的方式。经过综合研判,异形剪力墙或柱,有序分散在空间四周,实现了某种程度的“消隐”。“暗梁”隐匿在“厚板”中与异形墙柱进行“暗中”拉结,实现了内部空间的完整统一,并可以向外无阻隔的延展。室内装修也能充分利用层高,甚至裸露结构表面以节约造价。“厚板”也大大提高了施工效率,避免厚度不一可能产生的钢筋绑扎、模板支护等问题,从而规避了乡建施工能力与协调组织的不足。从建成的效果来看,纯净的楼板和各构件的干净交接,给予空间纯粹简洁的特质,营造出“结构即空间”的美学氛围,不失为乡建的一种参考范式。
▲厚板水平延伸至室外形成轻盈的廊子
©
垣建筑设计工作室
(
2
)挑楼与挑檐
项目用地局促,我们借鉴了陕南民居的
“挑楼”做法,在悬挑方向增加钢筋的直径和布置密度,同时增设放射钢筋以有效控制混凝土板的开裂和变形,最终厚板得以悬挑
1.5
至
2
米,有效增加了
2
层的使用面积,同时解放出角部空间融通外部。阳光下的阴影关系也减弱了体量的厚重,塑造出轻盈漂浮于山体之中的形象。其次,我们延续了陕南民居的大屋顶形态,通过钢结构及金属板(工厂预制,保证时间、质量及造价的可控),实现了双坡屋顶的大悬挑,使之覆盖出利于活动的半室外空间。屋顶檐口的线性收窄进一步削弱重量感,使大屋顶整体如浮游在空中一般轻盈。钢结构屋架与二楼屋面板之间形成传统的“闷顶”空间,加强了客房区的保温隔热,同时作为设备铺设。
▲钢结构大屋顶
©
垣建筑设计工作室
(
3
)轻快自然
因为工期及造价的原因,我们最终选用了质感灰作为建筑外墙的主材,与清水混凝土及当地砖石和崖壁共同勾勒出朴素的基调。室内及软装设计也在
“轻快自然”的目标下,依据每个院落及空间特征,搭配砖、石、土、木、竹等自然材质的家装器具,细腻的塑造出温暖柔和的气氛,进一步强化出官体验上“静谧安居”与“开放流动”之间的平衡。
▲开阳院二层挑廊与崖壁
©
孔锦权
▲开阳院檐下空间与崖壁
©
孔锦
权
▲天玑院檐下空间
©
垣建筑
▲开阳院的虚实变化
©
垣建筑
▲室内公共空间
©
四碗儿
▲室内公共空间
©
四碗儿
▲室内客房空间
©
四碗儿
五、小结:
北斗山居是一次各方通力合作的乡建项目,困难与不确定性让它更像是一种地方性的自我挖掘与实验,里面交融着地方经验与现代意识、传统技艺与工业技术,最终呈现出既抽象又朴素的在地化品质,诠释着现代陕南民居的另一种可能。
▲静谧的天权院
©
孔锦权
▲整体鸟瞰北斗山居
©
孔锦权
项目图纸
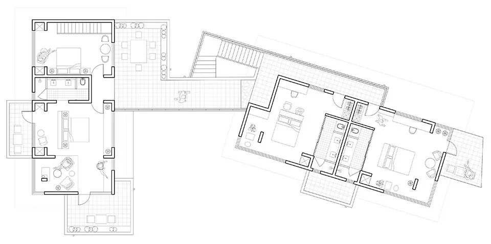
▲天璇驿站一层平面
©
垣建筑设计工作室
▲天璇驿站二层平面
©
垣建筑设计工作室
▲天璇驿站剖面图
©
垣建筑设计工作室
▲天权院一层平面
©
垣建筑设计工作室
▲天权院二层平面
©
垣建筑设计工作室
▲天权院剖面图
©
垣建筑设计工作室
▲天玑院一层平面
©
垣建筑设计工作室
▲天玑院二层平面
©
垣建筑设计工作室
▲天玑院剖面
©
垣建筑设计工作室
▲开阳院一层平面
©
垣建筑设计工作室
▲开阳院二层平面
©
垣建筑设计工作室
▲开阳院剖面
©
垣建筑设计工作室
项目名称:商洛七星村北斗山居民宿群落
项目类型:酒店类
设计方:垣建筑设计工作室(西安建筑科技大学建筑学院)
项目设计:
2024.01-2024.04
完成年份:
2025.03
设计团队:吴瑞,王毛真
,
刘泽宪,高佳乐,侯兰欣,王慧,汪鹏飞,刘蓓,王岚,张木岩,全俊龙
合作建筑师:白翌尧,李轩
结构:胡晓劼
给排水:燕博
电气:鲁晓林
室内:陈醉
-
酉言设计(天权院,开阳院)
;
西安殷朝伟空间设计研究院有限公司(天璇驿站,天玑院)
视觉:见筑
UookArch
,杜习邦
施工:陕西乾佑建设工程有限责任公司
项目地址:中国陕西省商洛市商州区三岔河镇七星村
建筑面积:
1500
㎡
摄影版权:孔锦权,四碗儿
客户:陕西城外云光文化旅游投资有限公司
材料:钢筋混凝土、钢、铝镁锰屋面板、铝板、玻璃、天然石材、生土
客服
消息
收藏
下载
最近

























































































