查看完整案例

收藏

下载
一品设计-欧式别墅
项目案例
服务内容:效果图、施工图
服务时间:2022年
项目风格:欧式风格
一品成立于2006年,是一家专注于建筑室内设计领域的专业机构,主营效果图表现、施工图深化、全案设计等业务,涉及室内、景观园林、城市建筑等相关领域。公司目前员工近500人,优秀设计师近40人,专业绘图人员近300人,已与全国二十万名设计师、一千多家装饰设计机构达成长期合作关系,提供近百万份作品。
※效果图鉴赏(部分)
※
目录材料表施工说明(节选部分)
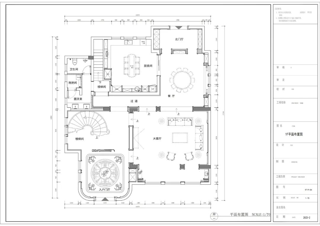
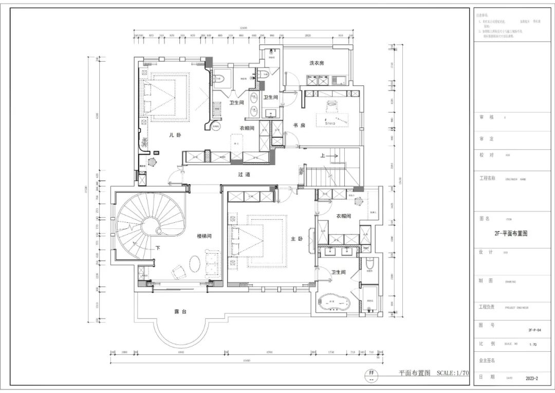
※平面(节选部分)
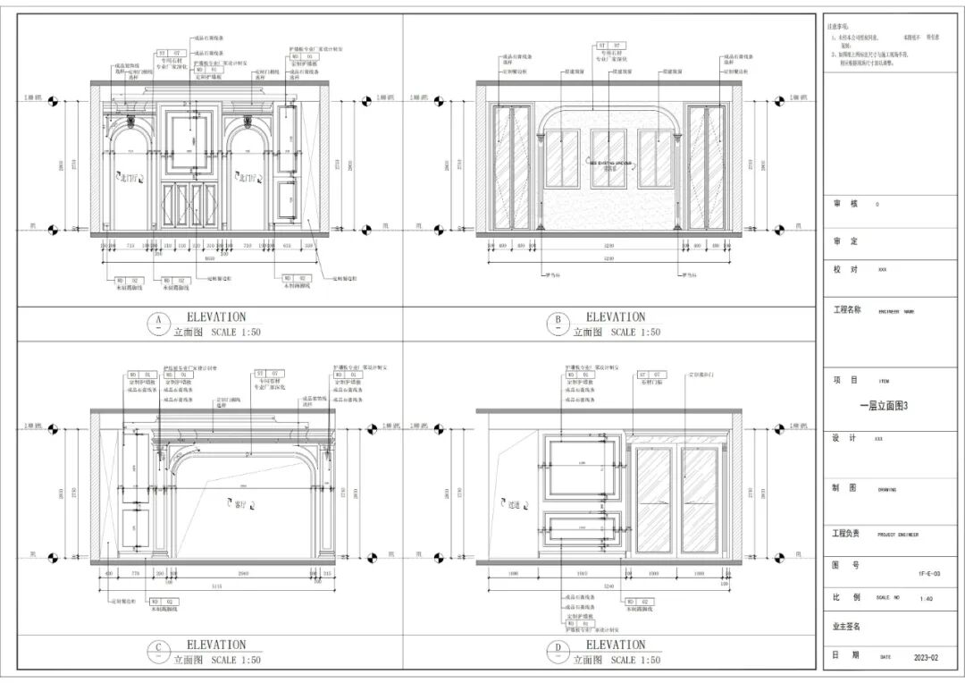
※立面(节选部分)
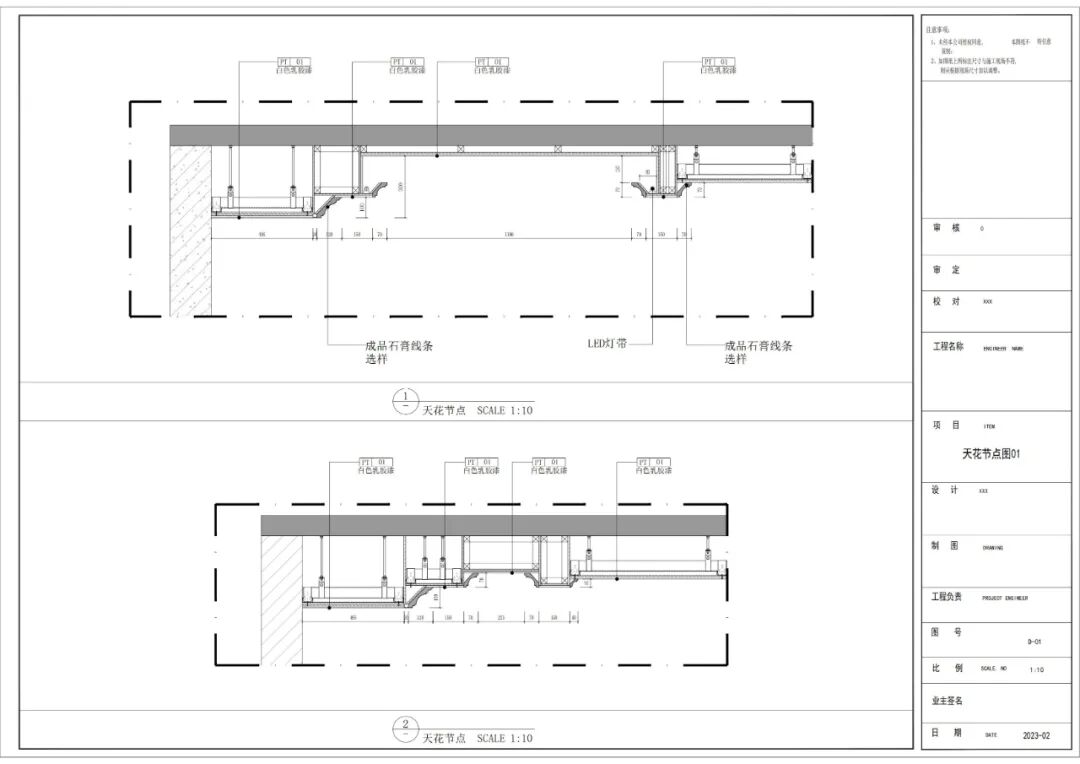
※大样图
(节选部分)
一品设计业务范围
「
一品酒店项目-效果图与施工图一体化案例
」
「一品办公项目-效果图与施工图一体化案例」
「一品D5动画-宴会厅动画漫游」
客服
消息
收藏
下载
最近





















