查看完整案例

收藏

下载
©
Ao.Archlab
项目是日本户外品牌
WildThings
在上海静安嘉里中心开设的一间小型服装零售店。面对仅有
60
平方米 的有限面积与商场对防火、选材、施工等多重规范的限制,设计团队提出了
“Urban Camp”
的概念:将户外生活的元素精炼、转译进城市商业空间中,打造一个紧凑却充满张力的
“
都市营地
”
。
This project is a compact retail space for the Japanese outdoor apparel brand WildThings, located in the Jing’an Kerry Centre in Shanghai. Faced with a modest footprint of just 60 square meters and strict regulations regarding fire safety, material selection, and construction standards in the mall environment, the design team proposed the concept of “Urban Camp”—a refined translation of outdoor living elements into a compact, tension-filled urban interior.
©
Ao.Archlab
设计的核心是空间中央的一个三角形构造体,形体灵感源自野营时常见的
帐篷或天幕结构。这一构件以
精细的金属结构打造,既在形式上呼应了户外意象,又在技术层面满足了商场对结构安全、防火、耐久等方面的苛刻要求。
该结构由
细长的梭形钢柱支撑,顶部为模数化分割的轻质铝板,结合线性灯具布置,在节制的构造逻辑下完成了展示照明所需的高照度与均匀性。整个构造体既是空间的焦点,又为衣物展示提供了清晰的组织线索。
The canopy is supported by slender, spindle-shaped steel columns, with a top surface made of lightweight modular aluminum panels. Linear lighting is integrated within the structure, ensuring high illuminance and uniformity required for merchandise display. The installation acts as both a spatial anchor and an organizing device for the clothing presentation.
©
Ao.Archlab
©
Ao.Archlab
尽管项目位于商场的地下层,自然采光缺失、结构压迫感强,但设计策略并非回避这些局限,而是主动引入户外常见材料,反向营造亲切的野营感:
墙面采用了粗粝质感的灰色火山岩板,营造出沉稳的包裹感;
同色系的灰色镜面在局部使用,隐性拉伸空间视觉,同时不过分跳脱;
隔墙采用金属笼网装入卵石,借用常见的边坡结构表达原始质感;
顶部以黑色钢丝纱网拉展,既遮蔽了商场原有的杂乱设备,又保留了通透开阔的空间高度;
地面则使用现浇混凝土结合石子嵌入,延续露营地的地面语汇。 这些材料在满足室内施工规范与防火性能的同时,也为使用者创造出一种
“
城市中的野外基地
”
般的真实体验。
Although located in the basement level of the mall—where natural light is ab
sent and the ceiling height is limited—the design intentionally introduces materials typical
of outdoor environments, creating a familiar and grounded “camp-like” atmosphere:
Walls are finished with textured gray volcanic stone panels, offering a sense of solidity and enclosure;
Gray tinted mirrors are used selectively to visually extend the space without creating dissonance;
Partition walls are made of metal gabion cages filled with river stones, borrowing from common landscape retaining structures;
Ceilings are partially covered with black wire mesh, concealing the complex mall infrastructure above while preserving a sense of openness and verticality;
Flooring combines cast-in-place concrete with embedded pebbles, evoking the tactile ground textures of a natural campsite. These materials not only satisfy commercial-grade fire and performance standards, but also contribute to a tangible, immersive experience of a “wilderness outpost within the city.”
@
Ao.Archlab
在功能上,储物、试衣与收银等辅助空间通过一个帆布装置整合完成。绿色帆布搭配红色钢骨结构,借用帐篷构造语言进行转译,使技术性结构带有轻盈柔软的包裹感。
帆布与金属、石材等硬质材料之间形成鲜明对比,同时也创造出一种富有户外精神与年轻张力的撞色语言,传达出品牌本身对自由、探索与个性化的价值观。
Storage, fitting rooms, and the cashier area are integrated into a single installation made from green canvas and red steel tubing, referencing camping tent construction techniques. The softness of the textile contrasts with the harder materials throughout the space, bringing a lightweight, adaptive quality to the auxiliary zones. The color contrast between the green canvas and red steel also injects youthful energy and visual tension, aligning with the brand’s identity centered on freedom, exploration, and individuality.
©
Ao.Archlab
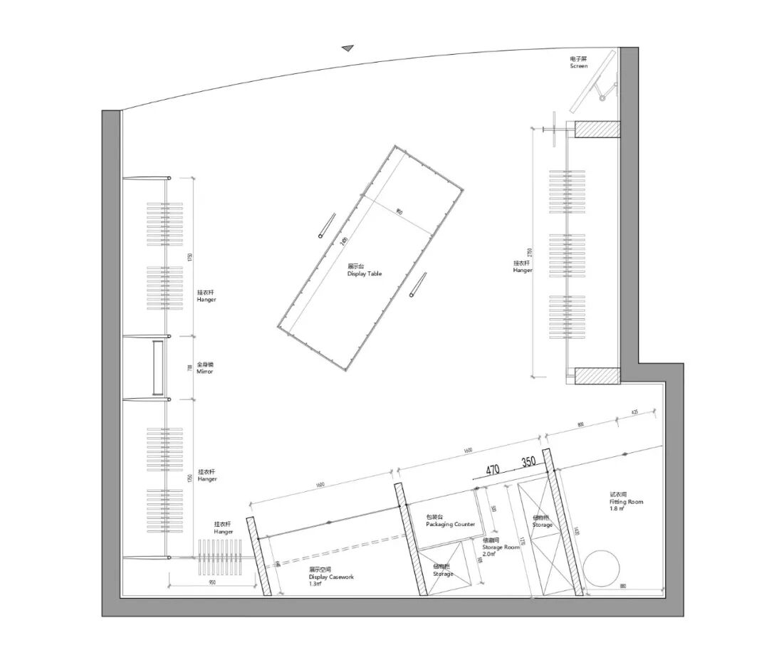
项目图纸
平面图
项目信息
名称:
都市营地 WildThings 上海静安嘉里中心店
面积:60平方米
项目所在地:上海市静安区
空间摄影:奥室建筑
项目团队:杨奡、詹梦婕、吴静雪、樊芷茜、京墨
Name: Urban Camp WildThings
Area: 60 square meters
Project Location: Jing’an District, Shanghai
Photography:
Ao.Archlab
Project Team: Ao Yang, MJ, Jingxue Wu, Zhixi Fan, Mo Jing
客服
消息
收藏
下载
最近










