查看完整案例

收藏

下载
该项目对一座位于巴塞罗那Eixample Esquerra区的原始三层建筑内的115平方米公寓进行了翻修。该建筑最初为底层加二层设计,1970年代进行过重大改建,新增了六层建筑,形成了如今的结构。这次不成比例的垂直扩展极大地影响了现有设计,因为如今公寓的结构墙体承担着过重且不成比例的负荷。因此,改造过程中不得进行任何结构性修改。
This project involves the renovation of a 115 m² apartment located on the principal floor of a mid-block building constructed in the 1930s in Barcelona’s Eixample Esquerra. Originally designed as a ground floor plus two-storey building, it underwent a major transformation in the 1970s with the addition of six extra floors. This out-of-scale vertical extension has strongly conditioned the current design, as the structural walls of the apartment now support an excessive and disproportionate load. For this reason, the intervention had to be carried out without any structural modifications.
▼空间概览,Overview © Simone Marcolin
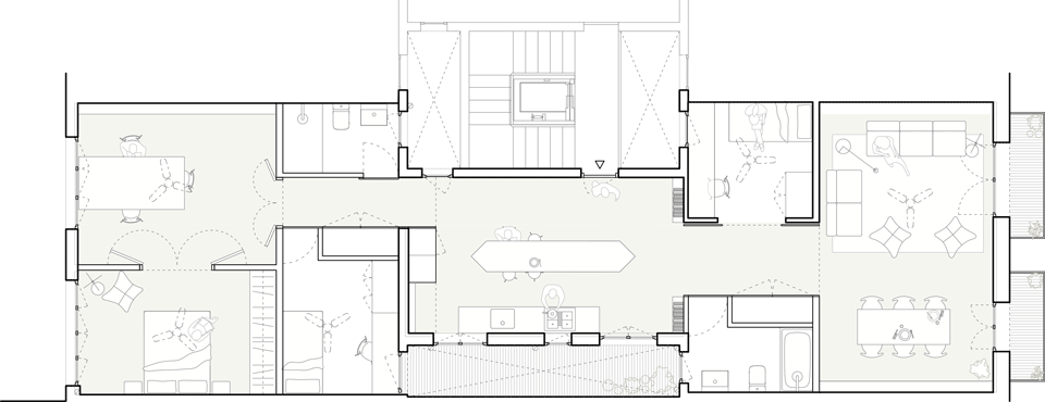
新的布局有着明确的目标:最大化两个立面之间的视觉与空间联系,增强自然采光与交叉通风。为此,公寓中央区域的所有非结构性隔墙都被拆除,创造出一个宽敞的过渡空间,作为两面朝向之间的缓冲区。
▼平面布局优化对比,Comparison of floor plan layout optimization © Metronom
The new layout is based on a clear intention: to maximize visual and spatial connections between the two façades, enhancing both light and cross ventilation. To achieve this, all non-structural partitions in the central part of the apartment were removed, creating a generous threshold space that serves as a transition between the two orientations of the home.
▼宽敞的过渡空间,A generous threshold space © Simone Marcolin
在厨房与公共区域(客厅面向Mallorca街,书房面向内院)之间,设计了几个“缓冲区”。这些过渡空间容纳了儿童卧室与两个浴室。在这些区域中,公寓原有的木门被精心修复与重新安置,形成了内部的“立面”,赋予流动空间深度与身份。
Between the kitchen and the common areas—the living room facing Mallorca street and the study facing the inner courtyard—a series of «buffer zones» are introduced. These transitional spaces accommodate the children’s bedrooms and two bathrooms. It is within these areas that the original wooden doors of the apartment have been carefully restored and repositioned, creating internal “façades” that give depth and identity to the circulation spaces.
▼流动的空间,Flowing space © Simone Marcolin
新配置的核心是厨房,作为公寓的社交中心,设计围绕定制的岛台展开,成为一个动态雕塑化的元素,邀请聚集与互动。厨房的家电与储物柜隐藏在连续的面板背后,营造出干净、简约、优雅的氛围,欢迎并鼓励日常生活的交流。
At the heart of this new configuration is the kitchen, conceived as the central social space of the apartment. Designed around a custom-made island, it becomes a dynamic, sculptural element that invites gathering and interaction. The appliances and storage units are hidden behind continuous paneling, resulting in a clean, neutral, and elegant atmosphere—one that welcomes and encourages daily living.
▼定制的岛台,The custom-made island © Simone Marcolin
▼岛台细部,The island details © Simone Marcolin
与恢复与再利用的理念相一致,原始水泥花砖得以保留。原本略显俗气的几何图案被拆解并重新组合成更抽象且现代的几何形式。这种策略保留了材料的记忆,同时赋予了其更新的统一表达。所有窗户均采用高效玻璃,外立面与庭院立面都进行了热隔离处理,以降低公寓的能耗需求。
Aligned with this approach of recovery and reuse, the original hydraulic floor tiles have also been preserved. The pre-existing layout, defined by a somewhat kitsch pattern, was dismantled and recomposed into a more abstract and contemporary geometry. This strategy retains the material’s memory while offering a renewed and coherent expression. All windows have been fitted with high-efficiency glazing, and both exterior and courtyard façades have been thermally insulated to reduce the apartment’s energy demand.
▼卧室,Bedroom © Simone Marcolin
▼卫生间,Bathroom © Simone Marcolin
该项目的关键手法之一是揭示并暴露原有的拱形砖砌与钢梁天花结构,这些部分此前曾被隐藏。此举与通过结构调整引入的新加强件共同作用,赋予了住宅原始的质感与空间特征。
A key gesture in the project was to uncover and expose the original vaulted brick and steel-beam ceiling structure, which had been previously hidden. This decision, along with the visible new reinforcements introduced through the redistribution process, brings a raw texture and spatial character to the home.
▼水泥花砖,The Hydraulic floor tiles © Simone Marcolin
色彩上,浴室瓷砖的色调选用与原地板的暖色调相协调。墙面、木工、岛台均采用灰色与棕色调,这一色调延伸至过渡的“缓冲区”。这种色彩的连贯性在房间序列中形成了压缩与释放的节奏,塑造出宁静而统一的空间体验。
Chromatically, the tones of the bathroom tiles were selected to harmonize with the warm hues of the original floor. Walls, carpentry, and the island unit follow a palette of greys and browns, which extends into the transitional “buffer” zones. This chromatic continuity creates a rhythm of compression and release along the sequence of rooms, shaping a calm and cohesive spatial experience throughout the apartment.
▼建筑外立面,Building facade © Metronom
▼定制岛台图纸,Drawings of the island counter © Metronom
▼门窗细部图纸,Detailed drawings of doors and Windows © Metronom
CREDITS
AUTHORS: Metronom
PROGRAM: Flat refurbishment
SURFACE: 115m2
CLIENT: Private
TEAM: Maria Amat, Albert Casas, Arnau Espona, Elsa von Mallinckrodt, Ludovica di Lernia
PHOTOGRAPHY: Simone Marcolin
CONTRACTOR: Triflex
COMPLETION DATE: June 2025
客服
消息
收藏
下载
最近





















