查看完整案例

收藏

下载
©
Simone Bossi
建筑立面在延续经典城市界面语汇的同时,呈现出一种逐步“减化”的过程,构成由厚重到轻盈的渐变表达。
感谢
Archiplan Studio
这座建筑位于
Carpi d
’
Adige
小镇已建成的城市肌理边缘。
▲
建筑外观
© Simone Bossi
这栋两层建筑沿纵向轴线重新定义了通往教堂的道路轴线,而在短边上则形成了面向小镇的入口立面。
▲
重新定义了通往教堂的道路轴线
© Simone Bossi
▲
面向小镇的入口立面
© Simone Bossi
低层建筑位于道路的对侧,通过退进的布置界定了公共空间,并因小花园的存在而得到进一步强化。
▲
建筑的后退重新定义了公共空间
© Simone Bossi
▲
重新界定了公共空间
© Simone Bossi
建筑立面在延续经典城市界面语汇的同时,呈现出一种逐步
“减化”的过程,构成由厚重到轻盈的渐变表达。
▲
室内空间
© Simone Bossi
▲
楼梯空间
© Simone Bossi
▲
二层空间
© Simone Bossi
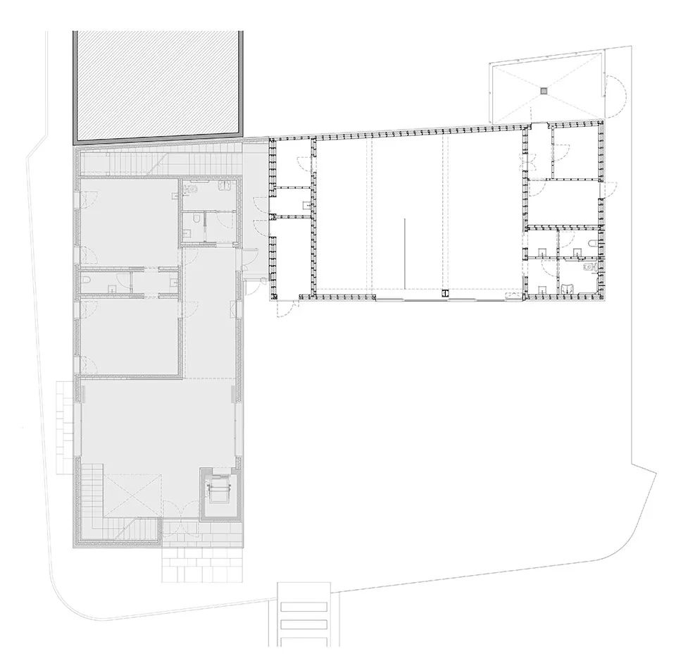
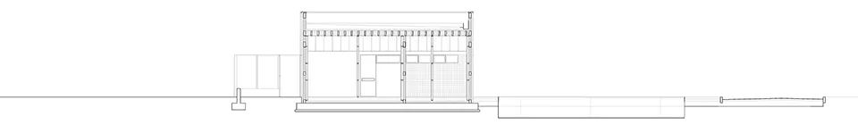
项目图纸
▲
场地平面
© Archiplan Studio
▲
一层平面
© Archiplan Studio
▲
二层平面
© Archiplan Studio
▲
三层平面
© Archiplan Studio
▲
立面
© Archiplan Studio
▲
剖面
© Archiplan Studio
客服
消息
收藏
下载
最近





































