查看完整案例

收藏

下载
项目信息/Project Info
项目名称:
Hot
el rakuragu
业主:
A.M Inc.
设计公司:
小大建築設計事務所 / kooo architects
设计范围:
建筑设计
完工日期:
2023年
建筑面积:
441.62㎡
项目地址:
東京都中央区日本橋本町1-7-9
设计团队
:
小嶋伸也,小嶋绫香,中村靖怡
摄影版权
:堀越圭晋/SS
城市缝隙中的设计
突围
项目位于东京日本桥,周围被东京典型的杂居大楼包围。场地没有像风景胜地那样的远景视野,且周边建筑在高度、宽度、材质以及开口形式上缺乏统一的设计逻辑。
为了打破都心狭小用地这一负面因素,我们关注城市建筑之间的缝隙,并以视线的穿透性为设计主题。在这块仅有 84 ㎡ 的狭小用地上,我们需在有限的空间内打造 14 间客房。
The project is located in Nihonbashi, Tokyo, surrounded by typical mixed residential buildings in Tokyo. The site does not have a long-range view, and the surrounding buildings lack a unified design logic in terms of height, width, material and opening form.
On a limited 84-square-meter plot in Tokyo’s central district, Kooo Architects focused on the "gaps" within the urban fabric to design Hotel Rakuragu—a 9-story hotel with open views despite its compact site.
空间策略
在东京的典型城市酒店中,为了最大限度地利用客房空间,通常不会特意设计阳台,而是通过房内用机械设备营造出稳定的环境。
通过观察周围建筑,即使在这个建筑密集的地区,我们也能够找到每个楼层可以轻松地向外开放的方向。每间客房均设有朝向不同方向的阳台,使客人可以从每层楼的每个房间欣赏到不同的景色。最终,
Hotel Rakuragu
呈现出看起来像是从垂直建筑中随机雕刻出来的独特的外观。
Unlike typical Tokyo hotels that omit balconies to maximize room space, Kooo Architects observed the surrounding buildings and oriented each floor’s openings toward urban gaps, creating balconies in varying directions.
Each room features a unique balcony design, allowing guests to experience diverse views from different floors. This approach resulted in a building that appears as a white cuboid carved with irregular voids, forming a rhythmic façade.
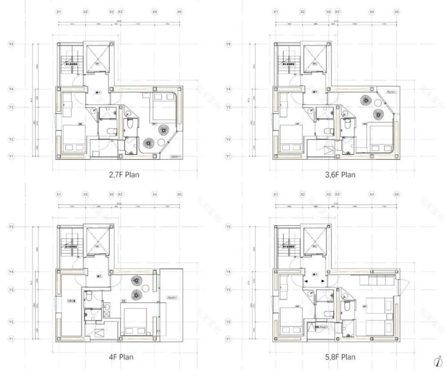
酒店的平面轴网
X
1-X4
上下
贯通,形成框架,保证建筑的经济性。在高效满足酒店客房数量的同时,我们通过修改各层末端单跨的结构(平面轴号
X4-X5
),实现了三种不同的阳台样式,为建筑立面创造了独特的表达。
The plan grid (X1-X4) was vertically connected to optimize cost efficiency. By modifying the single-span structure at the X4-X5 axis, three distinct balcony styles were achieved, balancing functional needs with architectural expression.
Hotel Rakuragu
特意将空间分配给室外空间,通过打造阳台,您可以感受到自然的风和光,并且它具有允许自然通风的被动设计。开口采用
Low-E
玻璃,即使是给人以开放感的大开口,也可以通过缓解夏季的炎热和提高冬季的供暖效率来改善室内舒适度。这家在冠状病毒大流行期间设计规划的酒店,可以让您同时感受到的室内有质感的墙壁和外部环境的光线。
The
terrace
integrate passive design principles, enabling natural ventilation and light through Lo
w-E glass.
This balances openness with thermal comfort, mitigating summer heat and improving winter heating efficiency—a critical consideration during the COVID-19 pandemic design phase.
该建筑的一大特色是其结构形式,外部形状看上去就像是一个被雕刻出来的白色长方体。阳台上没有柱子,以避免遮挡客人的外部视野。
The building’s iconic form uses a steel rigid-frame structure with diagonal braces instead of conventional column-and-beam systems. This allows flexible column placement and minimizes visual obstructions on balconies.
酒店的立面富有韵律感,每层楼左右两侧的阳台有些雕刻成三角形,有些阳台覆盖整个开间。为了实现这种形状,我们选择了带斜撑的刚性框架结构,而不是典型的带柱和梁的结构。这使我们能够在一定程度上自由地排列柱子以适应平面。
The facade has a rhythmic design, with balconies on both the left and right sides of each floor. Some balconies are triangular, while others span the entire bay. To achieve this design, we used a rigid frame structure with diagonal braces instead of the traditional column-and-beam structure. This approach allowed us to arrange the columns more flexibly, creating the desired space.
Hotel Rakuragu
标志性
的形态是面向城市景观的阳台,同时结构也可以让客人看到其他城市酒店所没有的东京的多面性。
The signature feature is a balcony that offers a view of the city. The structure also provides guests with unique perspectives of Tokyo, which are not typically available in other city hotels.
除了采用带斜撑的钢框架结构从而可以自由地改变平面和立面的同时,我们也追求最大限度地利用室内空间。柱和梁的横截面积保持较小,这座九层钢结构建筑的基本梁深度为
300
毫米,柱直径为
150
至
200
毫米。由于柱子的横截面积较小,因此可以隐藏在墙内,从而允许自然光沿着内墙不受干扰地照射。客房墙面采用弧形设计,形成与室外连续的封闭式室内空间,营造出宽敞的感觉。
Columns and beams are compact (beam depth: 300 mm; column diameter: 150–200 mm), hidden within walls to maximize natural light penetration. Curved walls in guest rooms blend indoor and outdoor spaces, enhancing spatial continuity.
客房
体验
:
触觉与光影
客房内部的特点是无缝空间,弯曲的弧形墙壁。我们在墙壁上使用了硅藻土壁纸。
硅藻土壁纸的微孔肌理与曲面墙体形成漫反射光环境,
让客人在房间感受到柔和的光线,给人一种宽敞的感觉。室内光线充足且舒适,封闭的室内空间与外部直接相连。
Seamless spaces with curved walls and diatomaceous earth wallpaper create a soft, diffused light environment. The microporous texture of the wallpaper and wall curvature enhance both visual and psychological comfort.
由于浴室在房间中占据了较大的面积,我们认为在设计布局时非常重要。但考虑到日本中央区有很多办公室的情况,有必要考虑确保从外部空间看不到浴缸。为此,我们决定设计一个新布局,将淋浴间等功能放置在远离开口的区域,反而是将洗脸盆移到外面,以减少幽闭感。
提升小尺度空间的心理舒适度,
同时确保功能性和设计方面的良好设计。
Bathrooms are strategically placed away from openings to ensure privacy (critical in Chuo Ward’s office-dense area). The washbasin is relocated outside the bathroom, reducing spatial confinement while maintaining functionality.
结语
我们不希望任意地创造出引人注目的外观设计,而是专注于确保“阳台”的概念能够为建筑创造标志性的外观,并且不同类型的阳台能够直接为酒店创造均衡的房间组合。
用小小的努力解决很多问题并将其转化为价值的方法是日本巧妙利用小居住空间的一种方式,我们认为这种设计将提供真正感受到东京的住宿体验。
Rather than pursuing overtly striking aesthetics, Kooo Architects focused on the "
Terrace
" concept to shape the hotel’s identity. Variations in balcony designs directly correspond to room types, achieving a balanced mix.
This project exemplifies Japan’s ingenuity in transforming spatial constraints into value, offering a stay experience that authentically reflects Tokyo’s urban density.
▽
小大建築設計事務所地址:
东京:
〒52-0035
東京都目黒区自由が丘3丁目14-8
上海:长宁区定西路1207号6F
Instagram:koooarchitects
客服
消息
收藏
下载
最近






















