查看完整案例

收藏

下载
©
AXEL DAHL
Studio Vincent Eschalier设计的建筑将访客置于真实旅程的核心,穿插着不同空间体验的层次感。玻璃屋顶下的空间、广场、A栋的透明性、馆顶以及第四层屋顶结构下的空间,都是这种独特空间概念的体现。
感谢
STUDIO VINCENT ESCHALIER
Studio Vincent Eschalier
重新构思了一个四栋建筑的综合体,呈现出一项透明的项目。该工作室的设计方式突出了现有建筑及其历史,同时通过大面积的楼板、多个生活区域和绿色户外空间,展现出现代感。
▲
街景立面
© AXEL DAHL
该建筑位于一条拥有折衷建筑风格和工业遗产的街道上,位于圣
-
安布鲁瓦兹和拉
-
罗凯特这两个充满活力的街区之间。建筑最初由享有盛誉的
Gaveau
钢琴工厂于
1850
年代建造。之后,
Gaveau
的工作坊和商店被
Legrand
鞋类制造商所取代。
▲
立面近景
© AXEL DAHL
49 rue Servan
被打造成一个由四栋连接建筑组成的综合体,提供
3440
平方米的工作空间和
445
平方米的绿色户外空间。屋顶露台已被改建为一个生活和工作空间。一个位于玻璃屋顶下的广场可容纳
100
人,充满了顶光。
OSESAM
是该项目的业主。
▲
户外空间
© AXEL DAHL
光线与绿色:关注用户福祉的工作空间
Studio Vincent Eschalier
的设计方法注重寻找合适的几何形状和视角,理解现有建筑并发挥其优势。工作室自豪地让场地的历史得以展现。建筑的类型和几何形状因此指导了这个复杂体的设计,设计上从东到西贯穿透明性。第一栋建筑——一座新建建筑——俯瞰着
Rue Servan
街。其外立面呈现工业风格,黑色金属门窗和巴黎盆地产的浅色石材基座相得益彰。
▲
俯瞰玻璃屋顶
© AXEL DAHL
▲
屋顶露台
© AXEL DAHL
▲
屋顶露台
© AXEL DAHL
▲
屋顶露台近景
© AXEL DAHL
整体设计被其裸露的木结构所柔化,这些木结构从街道上可见。空间得到了充足的自然采光。建筑及其体量被一座不对外开放的绿色屋顶所加冕,这有助于减少场地的碳足迹。三栋翻新过的内建建筑则展现出更为亲密的氛围。访客通过一条绿树成荫的庭院进入。室内完全重新设计,使用浅色矿物材料以捕捉光线,并突出空间的交叉光照特性,以及裸露的结构和技术元素。第三栋建筑具有一个馆顶,是一个真正的露天会议区。这种新的流动路径,既是工作空间也是生活空间,完全以木材设计,并受益于绿色植物的装置。用户可以绕过两个显著的玻璃屋顶,这些屋顶为不同楼层之间创造了视觉联系。第一个玻璃屋顶,通过其几何形状,包含了广场。第二个玻璃屋顶连接了最后的几栋建筑,通向一个充满光线的展厅。
▲
屋顶下方空间
© AXEL DAHL
▲
阶梯空间
© AXEL DAHL
▲
阶梯空间近景
© AXEL DAHL
▲
室内看向天窗
© AXEL DAHL
Studio Vincent Eschalier
设计的建筑将访客置于真实旅程的核心,穿插着不同空间体验的层次感。玻璃屋顶下的空间、广场、
A
栋的透明性、馆顶以及第四层屋顶结构下的空间,都是这种独特空间概念的体现。每个地方都呈现了独特的空间理念。然而,所有空间通过重复使用原始的现有材料——尤其是裸露的混凝土、木材和钢铁——紧密相连。
▲
木结构
© AXEL DAHL
▲
干式木材
-
金属工艺
© AXEL DAHL
▲
木材质近景
© AXEL DAHL
可持续的重构
现有体量得到了尊重并最大化利用。该项目推广干式木材
-
金属工艺,并现场再利用材料,以减少碳排放。整个项目从设计之初就着眼于能效,采用了地热能、外部保温、新型门窗和节水设备。
▲
其他室内材质
© AXEL DAHL
▲
混凝土楼梯
© AXEL DAHL
绿色表面和开放地面无处不在,有助于调节区域的热量并促进生物多样性。在传统与冒险之间,
Vincent Eschalier
建筑与设计工作室雕塑出强大的空间,使用粗犷的语言和精致的细节。工作室于
2009
年在巴黎成立,以其创作的复杂性和大胆性脱颖而出。多学科团队的工作既受高标准的指导,又充满了创作超越时间的雄心。从私人飞机的内部设计到现代公寓和定制工作空间,再到回收铝制门把手的设计,
Studio Vincent Eschalier
的创作跨越多个领域,主要包括建筑、室内建筑和设计。
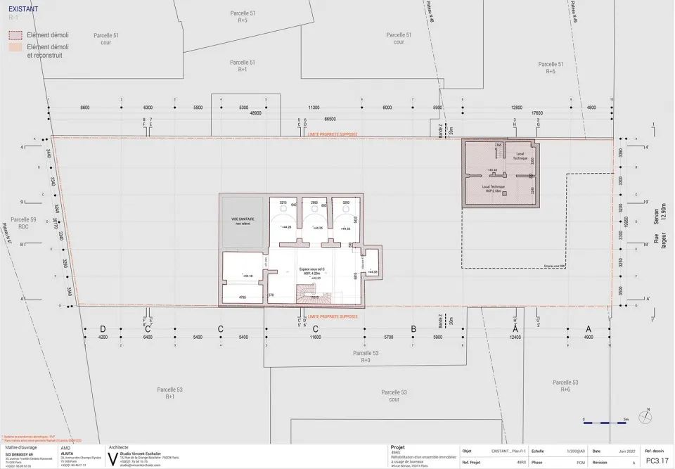
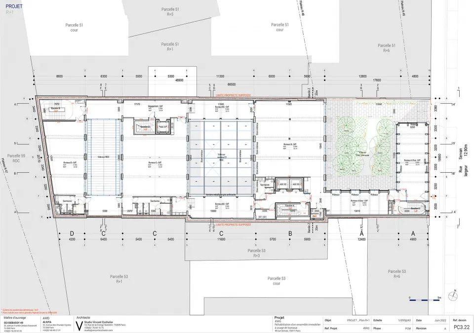
项目图纸
▲
施工图
© STUDIO VINCENT ESCHALIER
▲
剖面图
© STUDIO VINCENT ESCHALIER
LOCATION: FRANCE
–
PARIS
DESIGNER: STUDIO VINCENT ESCHALIER
PROJECT YEAR: 2025
PHOTOS BY AXEL DAHL
客服
消息
收藏
下载
最近








































