查看完整案例

收藏

下载
©
Jason Mann
作为惠灵顿过去二十年来规模最大的公共投资项目,塔基纳不仅展示了城市的远见与可持续承诺,也通过空间叙事传达文化精神,既面向未来,也致敬过往。
感谢
Studio Pacific Architecture
T
ā
kina
是新西兰惠灵顿全新建成的会议与展览中心,为这座城市的文化与经济版图带来了深远的变革。该项目由本土建筑事务所
Studio Pacific Architecture
设计,其独特造型汲取自惠灵顿的海洋环境、多变气候以及毛利神话,尤其是关于毛伊鱼首——
Te Ūpoko-o-Te-Ika-o-M
ā
ui
(毛伊之鱼的头部)的传说,这一神话塑造了该地区的地貌。
▲外观概览
© Jason
Mann
▲立面夜景
© Jason Mann
项目位于国家博物馆
Te Papa Tongarewa
对面,进一步巩固了惠灵顿市中心的市民与文化核心地位,为国际会议与展览提供了一处世界级场所。除了引人注目的建筑形象之外,塔基纳也是新西兰首座获得
Green Star 5
星级绿色建筑设计认证的会议中心,树立了可持续建筑的行业标杆。其营运碳排放量比同类建筑减少
60
–
70%
,通过高效节能系统和雨水回收装置有效降低环境影响。建筑还采用隔震结构以增强抗震性能,并通过架高地面楼层以应对未来可能的洪涝风险。
▲项目位于国家博物馆
Te Papa Tongarewa
对面
© Jason Mann
▲立面近景
© Jason Mann
▲入口夜景
© Jason Mann
▲露台
© Jason Mann
建筑内部的材质选用温润自然,从象征大地之母
Papat
ūā
nuku
延伸至象征天空之父
Ranginui
,强化了空间与土地之间的精神联系。一个贯通
Cable
街与
Wakefield
街的公共大厅进一步提升了城市的步行连通性和流动性。
▲入口
© Jason Mann
▲上层大厅
© Jason Mann
▲室内空间
© Jason Mann
▲扶梯与中庭
© Jason Mann
▲会展大厅入口
© Jason Mann
作为惠灵顿过去二十年来规模最大的公共投资项目,塔基纳不仅展示了城市的远见与可持续承诺,也通过空间叙事传达文化精神,既面向未来,也致敬过往。
▲电梯
© Jason Mann
▲室内空间
© Jason Mann
▲会展大厅
© Jason Mann
▲楼梯细部
© Jason Mann
▲细部
© Jason Mann
项目图纸
▲
0A
层轴测图
© Studio Pacific Architecture
▲
1A
层轴测图
© Studio Pacific Architecture
▲
2A
层轴测图
© Studio Pacific Architecture
▲底层平面图
© Studio Pacific Architecture
▲
0A
层平面图
© Studio Pacific Architecture
▲二层平面图
© Studio Pacific Architecture
▲
1A
层平面图
© Studio Pacific Architecture
▲三层平面图
© Studio Pacific Architecture
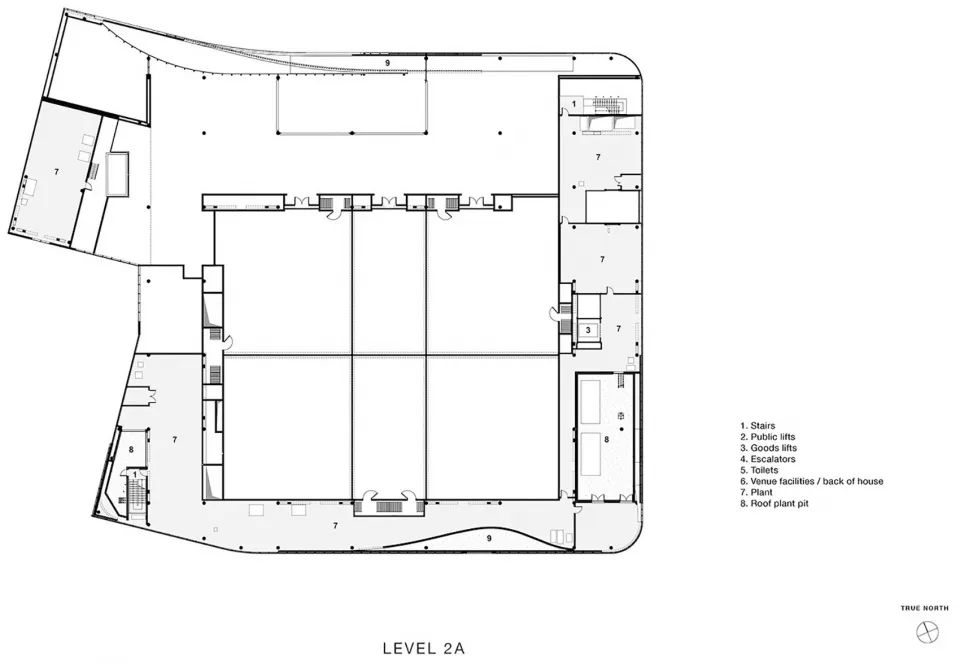
▲
2A
层平面图
© Studio Pacific Architecture
▲屋顶平面图
© Studio Pacific Architecture
▲立面图
© Studio Pacific Architecture
Details
Project size: 18000 m2
Location: Wellington, Wellington, NZ
Site size: 5500 m2
Completion date: 2023
Building levels: 6
Credits
Studio Pacific Architecture
Architect: Jason Mann
Photographer: Jason Mann
客服
消息
收藏
下载
最近







































