查看完整案例

收藏

下载
SKYnoa为H&M首尔圣水洞打造的全新概念空间,打破传统,将零售,艺术与文化相融合,邀请顾客在其中自由探索,搭配并创造属于自己的造型。H&M以首尔为出发点,打造出兼具国际传播力与社交影响力的品牌体验平台。通过这一空间,H&M的宣言 “A Stage for one and for all” 得以具象呈现,它不仅是时尚的舞台,更是自我表达的文化现场。
圣水洞曾是工业重镇,如今已成为首尔最具年轻活力的文化与创意聚集地之一,汇集了概念店、画廊、咖啡馆与国际品牌快闪。SKYnoa从街区中随处可见的大型广告牌与剧院帷幕汲取灵感,以布料包覆建筑的外立面,营造出若隐若现的神秘感。幕布立面象征着舞台的开启,邀请来访者走上属于自己的风格舞台。设计在保留原有建筑立面的同时,赋予其H&M式的当代新貌。首层采用半透磨砂玻璃围合,激发好奇心的同时使行人可隐约窥见室内陈列。外侧设有混凝土长凳,巧妙地将室内体验延伸至街头。
▼首层采用半透磨砂玻璃围合
主入口以H&M经典“&”符号造型呈现,区分于大众化门店设计的同时,宣示品牌正从“YOLO(You Only Live Once)”转向更理性,更精致的“YONO(You Only Need One)”高质量生活态度。H&M 品牌红调的楼梯犹如剧场的幕间休息区,是连接前后章节的过渡空间,营造出温暖而具有文化共鸣的氛围同时提供了打卡区。
▼红调的楼梯犹如剧场的幕间休息区
室内设计如同一场连贯的戏剧旅程,每一层皆是探索个人风格的“新一幕”。首层设计灵感为灵活可变的舞台,陈列着H&M精选商品。空间中央的高速护栏被重塑为雕塑与商品展示为一体的装置,与镜子表面的巨型雨刮器相呼应,将圣水洞的工业历史重新演绎。外部设有隐蔽的蓝色汽车装置花园,向街区的汽车修理历史致敬。裸露天花板保留建筑原貌,兼具功能与叙事性,营造出街头感与玩味并存的都市氛围。
▼蓝色汽车装置花园
▼首层陈列空间
▼标志性的红点缀空间
二层以“衣橱”为灵感,木质模块化陈列单元将空间分割为多个主题“衣柜”,分别展示不同品类的关键单品,设计融合趣味性的零售策略与视觉叙事。另一侧空间受到韩服纱质的轻盈感启发,邀请顾客在空间中自由探索、搭配、组合,如同行走在一个安静的步入式衣橱中。空间中央的大型织物装置同样以韩服流苏为灵感,在工业肌理之中注入柔和的文化意象。
▼木质模块化陈列单元
▼大型织物装置以韩服流苏为灵感
▼大型织物装置以韩服流苏为灵感
三层则聚焦于“个性化”体验。以“For You, By Me”为主题,当地时装社媒达人和KOL精心搭配的造型在此陈列,空间被转化为一个亲密的自我表达与社群互动场所。中央试衣间打破了传统零售空间设计并成为三楼的核心区域,形成如T台般的动线,周围商品围绕其呈现。镜面墙体增强空间的沉浸感与互动性。试衣间外的每一侧都可单独为创作者及活动呈现多元而鲜活的H&M叙事。
▼陈列细部
▼镜面墙体增强空间的沉浸感与互动性
▼试衣间细部
SKYnoa以现代设计为手法,续写当地历史并打造出属于H&M的沉浸式文化空间 – 一个能让时尚消费者探索,试验和自我表达的地点。
▼店铺夜景
▼一层平面
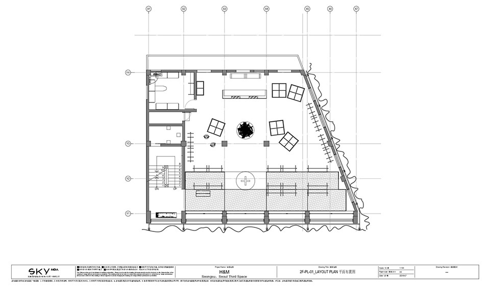
▼二层平面
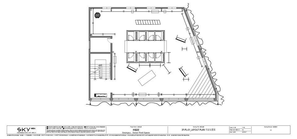
▼三层平面
项目名称:H&M首尔圣水洞
项目类型:室内设计 商业空间
设计方:SKYnoa
公司网站:
项目设计:SKYnoa
完成年份:2025
设计团队:SKYnoa
项目地址:302-37 Seongsu-dong 2 ga, Seoul
建筑面积:845.96㎡
摄影版权:H&M
客户:H&M
感谢楼主的分享!!!
客服
消息
收藏
下载
最近




















































