查看完整案例

收藏

下载
©
Gerber Architekten
作为沙特首个地铁系统的重要枢纽,由盖博建筑设计的STC地铁站是四大换乘主站之一,是一个集合地铁换乘和商业空间的交通枢纽综合体。整座建筑宛如一片从地面跃然浮起的沙丘,悬桓在这座现代化首都的大地之上。
感谢
Gerber Architekten
作为沙特首个地铁系统的重要枢纽,由盖博建筑设计的
STC
地铁站是四大换乘主站之一,是一个集合地铁换乘和商业空间的交通枢纽综合体。整座建筑宛如一片从地面跃然浮起的沙丘,悬桓在这座现代化首都的大地之上。它不仅以一个开放通透的形象回应城市,也结合公共广场、多项交通策略,引领着城市出行方式的转变。盖博建筑突破性地引入自然光,为基础交通设施营造出人与自然和谐共生的空间体验。
▲
项目概览
© Gerber Architekten
01.
沙特首个地铁系统核心枢纽
利雅得的地铁系统是沙特阿拉伯首个地下公共交通枢纽。在这座现代化首都,过去的利雅得出行高度依赖私家车。从
2012
年开始,一个总长约
177
公里、包括
80
余个站点的全新地铁网络开始兴建,标志着该国城市交通模式的重大变革。由盖博建筑设计的
STC
地铁站正是全市六条地铁线路中的四大换乘站之一。因此这个项目承担了一种使命
——
需要确保它能够鼓励人们乘坐地铁,影响市民的出行习惯。
▲
外景
© Gerber Architekten
注:
STC
地铁站是利雅得地铁系统中四大换乘站之一,除了由盖博建筑设计的
STC
地铁站,其余三个换乘站点分别由
Snøhetta
、扎哈
·
哈迪德建筑事务所和
Omrania
设计,各以不同的建筑语言与空间策略回应场地与功能,共同构成沙特首都地下公共交通网络的关键性空间节点。
STC
地铁站位于阿卜杜勒
-
阿齐兹国王路、阿卜杜拉国王路和法赫德国王路三条重要城市大道的交汇处,是城市中交通最繁忙的区域之一。
在利雅得整个地铁系统中,
STC
地铁站承担了其中两条线路
——1
号线(蓝线)与
2
号线(红线)的换乘功能。这两条主线在此以垂直方式交汇,具有战略性地位。
▲
项目区位
© Gerber Architekten
地理上,
STC
地铁站又位于核心商业与行政中心
Al-Mursalat
区,周边遍布大量写字楼、企业总部与购物中心。其中,中东最大的电信运营商沙特电信公司
(
简称
STC)
总部便坐落于此,并于
2018
年获得该站的冠名权,
STC
地铁站由此得名。
▲
STC
地铁站与不远处的城市核心区
© Gerber Architekten
从项目意义、枢纽网络到区位背景,最终盖博建筑采用了一种高度理性且技术导向的设计方法。既通过营造温暖友好的空间氛围、充足的自然采光,来降低乘客从地面进入地下的心理
“
门槛
”
;同时以
“
沙丘
”
意象回应沙漠地貌,整座建筑仿佛从大地之上浮现的一块山岩,跃然成为醒目的城市地标。
▲
鸟瞰地铁站
© Gerber Architekten
▲
鸟瞰站前广场
© Gerber Architekten
02.
大地之上的沙丘与绿洲
整座
STC
地铁站如同一片悬桓在大地之上的沙丘。盖博建筑从利雅得周边的断崖地貌中获得灵感,将岩层地质纹理转化为立面几何图案,并以参数化设计精确定义曲面形态。雕塑般的形态呼应沙漠景观,这一设计让新的交通设施与阿拉伯地域文脉和谐共生。
▲
地铁站正立面
© Gerber Architekten
▲
标志性屋顶受启发于沙漠岩层地貌
© Gerber Architekten
▲
立面近景
© Gerber Architekten
▲
标志性屋顶近景
© Gerber Architekten
同时这又是一片轻盈的
“
都市绿洲
”
。地铁站建筑仅占地块的有限区域,以释放出更多地面为大型公共广场提供空间,创造出一片沙漠之中的公园绿洲。室内外的地面采用同种石灰岩铺装,也弱化了空间的边界。
▲
地面开辟为城市公共广场
© Gerber Architekten
而在沙丘风貌的屋顶之下,高达
11
米的通体玻璃幕墙围合出入口与商业区域,营造出一个从外部进入地铁站的过渡性空间。玻璃幕墙不仅使建筑整体更加轻盈,也为入口区域引入充足自然光,提升了空间的明亮与开放感。
▲
屋顶之下以玻璃幕墙围合出入口
© Gerber Architekten
这片看似轻盈、充满诗意的屋顶背后是一套高度复杂的建造系统,是数字化设计与工业建造的融合之作。为实现标志性的沙丘造型,盖博建筑深度应用
BIM
技术,全程紧密投入整个
BIM
技术周期。从设计阶段开始与不同专业紧密协同,反复测试模型检查;再至施工阶段,全面支持钢结构搭接、放样指导等各个环节,才得以落定这片柔和轻盈而又坚固的标志性屋顶。
▲
屋顶特征也延续至大厅天顶,形成连续沙丘风貌
© Gerber Architekten
通过参数化设计,盖博建筑精确定义了屋顶的曲面形态、结构支撑关系以及大量单元模块尺寸,确保设计意图的精准传达与施工可行性。整个屋顶采用预制玻璃纤维增强混凝土(
GRC
)面板系统,这些预制单元按
BIM
模型数据加工完成,运抵现场后如拼图般完成组装。
▲
BIM
参数化建造过程
© Gerber Architekten
▲
地面停车场
© Gerber Architekten
03.
空间结构创新
:
引光入地
在沙漠高温与地形下设计地铁站,整个项目无疑面临一些特殊挑战。为此,盖博建筑的整个策略十足创新:引光入地,让地下空间同样享有日光。这引向了一个超越传统地铁站的空间结构:光线深入地下,技术系统则被置于屋顶。
▲
入口空间
© Gerber Architekten
两条地铁隧道在此垂直交汇,将整个站体划分为四个对称的
“
象限
”
。在设计上,将每个象限设为一个高达
50
米的中央
“
柱体
”
,以此支撑整个建筑结构。而自动扶梯围绕柱体布置,引导乘客进入地下站台层。通过引入的自然光照亮,光线穿透扶梯与不同楼层,最深可达地下近
30
米。这种采光设计也摆脱了传统地铁站的封闭感,让首次体验地铁的市民更好适应地下空间。
▲
日光贯穿扶梯天井,部分引入站台层
© Gerber Architekten
因沙漠地带特殊的气候条件,整座地铁站需配备大型空调系统以及多种技术设备。为此,盖博建筑创造性地将技术设备整合于屋顶
10
米高的箱形结构内,整个箱体尺寸约为
140
米
x100
米,位于地铁线交叉点正上方。将技术设备设在屋顶,而非埋设在地下
——
这一策略也有效减少了地下工程量。
▲
前厅与售票处
© Gerber Architekten
04.
方案进化:从竞赛概念到落地实现
STC
地铁站的设计方案历经了多轮优化与迭代。在
2012
年赢得设计竞赛的方案中,盖博建筑构思了一个极具想象力的概念:一个仿佛漂浮于城市之上的屋顶公园。这一流动起伏的曲面屋顶,不仅呼应了沙特文化中的飞毯意象与地貌,将公园景观与技术设施巧妙集于一体,更通过独特的形态、空间及视线联系,赋予地铁站这一公共设施更多公众属性与价值。
▲
站台
© Gerber Architekten
然而,要将这先锋概念落地于复杂的大型交通枢纽项目中,无疑面临着巨大挑战。最终建成的方案,其外在形态虽与最初的竞赛概念呈现显著不同,但打造一个开放通透、无缝连接城市环境的核心设计立意,始终坚定不移。最终,落地方案是对所有实际功能需求、复杂场地条件、技术可行性和经济性考量的集中回应。此外,作为沙特全新地铁系统,
STC
地铁站也应用了多种智能导视技术。为此,设计为导视系统预留了清晰的空间结构。站台配备屏蔽门系统,并设有实时信息显示屏与语音播报系统提示列车班次,提升乘客的出行效率与体验。
▲
夜览
© Gerber Architekten
当
STC
地铁站以开放通透的形象回应城市,作为枢纽,也通过一系列举措真正实现
“
畅通无阻
”
:
·
人流分离:地铁乘客通过两侧落客区直达地下交通层,商业访客经由公共广场进入零售空间
·
整合公共交通:地铁站两侧为公共交通落客区,满足地铁乘客直达地铁站台层;
·
连接停车场:地铁站周边设有多达
25
处停车场,有效规划和组织与停车场的往返路线
近年来,盖博建筑通过
STC
地铁站、萨尔曼国王科学绿洲及
Aljazira
银行等重要项目,深度参与了利雅得的城市发展进程。这些项目彰显了事务所在城市转型中的积极角色,及其对建筑公共价值的持续追求。
项目图纸
▲
总平面图
© Gerber Architekten
▲
首层轴测图
© Gerber Architekten
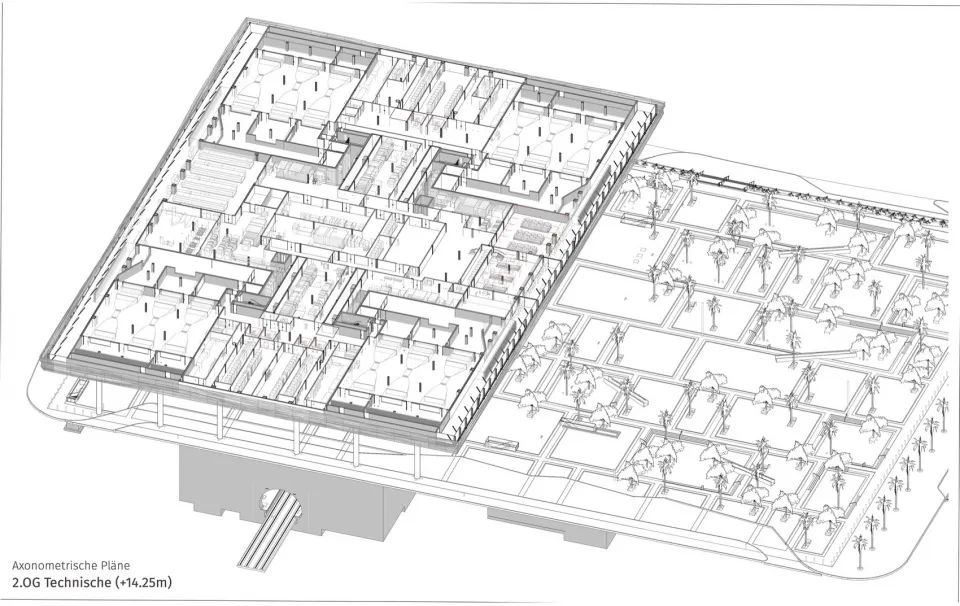
▲
二层轴测图
© Gerber Architekten
▲
三层轴测图
© Gerber Architekten
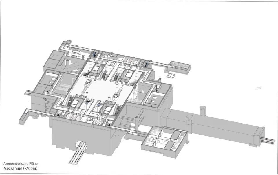
▲
夹层轴测图
© Gerber Architekten
▲
红线
( 2
号线
)
站台层轴测图
© Gerber Architekten
▲
蓝线
(1
号线
)
站台层轴测图
© Gerber Architekten
项目信息
沙特利雅得
STC
地铁换乘枢纽
业主
: BACS Consortium;
沙特利雅得城市发展建设厅
设计竞赛
: 2012
一等奖
建设时间
: 2015-2025
建筑面积
: 44,420 m²
用地面积
: 31,020 m²
客服
消息
收藏
下载
最近








































