查看完整案例

收藏

下载
©
窦俞钧
设计中注重在地自然景观的互动性和体验性,建筑的布局、开窗与自然环境高度匹配,同时采用符合结构模数的门窗体系等,满足了结构、构件、材料的最优模数适配。体系系统地解决了草原建筑的文化传承、品质提升等问题,改善草原旅居环境。
感谢
阁尔建筑
乌兰哈达火山地质公园位于内蒙古自治区乌兰察布市察哈尔右翼后旗乌兰哈达苏木境内。公园内集聚了草原火山群、熔岩地貌及堰塞湖景观等,被誉为天然的
“火山博物馆”,是一处极具特色的自然景观。项目位于乌兰哈达火山地质公园北侧牧民住房院内,由客房、餐厅、咖啡厅、接待中心及服务用房组成,为游客提供住宿、餐食、休闲、娱乐等服务。
▲
项目概览
©
窦俞钧
建筑采用分散式布局方式,整体打散为七栋,住宿五栋,餐饮一栋,接待中心一栋,有效减弱了体量,保持与牧户住房的协调性,同时增加了游客体验自然的机会。
▲
建筑采用分散式布局
©
窦俞钧
▲
增加了游客体验自然的机会
©
窦俞钧
住宿区
——杆式蒙古包衍生的居住空间:提炼传统蒙古包的建造智慧,结合草原文旅的现代需求和在地资源,设计研发了适用于草原文旅的绿色建筑体系——杆式蒙古包。该体系有传统蒙古包的穹顶空间特性,也满足了现代生活空间的物理性能,同时根据不同的需求自由组合、重组出多样的弹性空间。
▲
住宿区爆炸图
©
阁尔建筑
▲
杆式蒙古包衍生的居住空间
©
窦俞钧
▲
居住空间内部
©
窦俞钧
设计中注重在地自然景观的互动性和体验性,建筑的布局、开窗与自然环境高度匹配,同时采用符合结构模数的门窗体系等,满足了结构、构件、材料的最优模数适配。体系系统地解决了草原建筑的文化传承、品质提升等问题,改善草原旅居环境。
▲
模数化立面图
©
阁尔建筑
▲
注重在地自然景观的互动性和体验性
©
窦俞钧
▲
建筑的开窗
©
窦俞钧
餐饮区
——杆式蒙古包衍生的公共空间:项目有效地利用杆式蒙古包体系的建造逻辑与装配适宜技术,塑造了长方形的公共空间。为了应对气候特征,采用交叉双坡屋顶,设置高侧窗,确保了通风、排水、排雪的功能。材料选用集成木和火烧木、火山石等在地环保材料和可循环利用材料,减少了能源消耗,降低了建筑材料成本和运输成本。装配适宜技术缩短施工周期,降低施工成本,同时确保了空间品质和保温隔热性能,提高建筑的能源利用效率。
▲
餐厅建造过程
©
阁尔建筑
▲
餐饮区域
©
窦俞钧
▲
餐饮区域内部空间
©
窦俞钧
接待区
——原有羊圈改造的服务空间:原有牧户的羊圈进行改造,保留了原有的布局和体量,加固结构并增设了保温、供暖等,提升了房屋的物理性能与品质,为整个民宿区提供接待、厨房、卫浴等服用功能。
▲
项目鸟瞰
设计研发出适宜在地文化、自然环境、当代需求的新型建筑体系,力争实现对环境友好、低碳、可持续发展的草原文旅社区,提高草原旅居环境品质。
项目图纸
▲
总平面图
©
阁尔建筑
▲
住宿区平面图
©
阁尔建筑
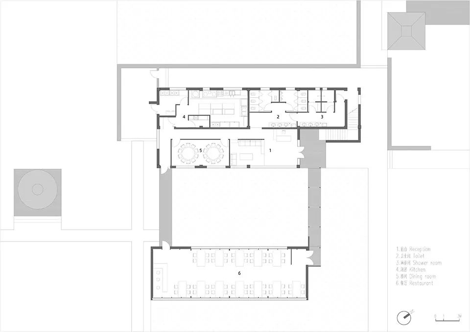
▲
接待中心
+
餐厅平面图
©
阁尔建筑
▲
东立面图
©
阁尔建筑
▲
住宿区剖面图
©
阁尔建筑
项目名称:乌兰哈达火山無热宇宙草原新宿
项目地点:内蒙古乌兰察布市察哈尔右翼后旗
设计单位:阁尔建筑
建设单位:海南百新途投资有限公司
设计时间:
2024
年
1
月
建成时间:
2024
年
7
月
摄
影
师:窦俞钧
客服
消息
收藏
下载
最近



































