查看完整案例

收藏

下载
©
王策
风和日丽,倚靠在院落中,手握一杯卡蒂姆,听着街道车水马龙,树叶飒飒作响,水面涓涓细流。此刻,气味咖啡这栋被唤醒的老宅成为了保山生活的形容词。
感谢
拾号建筑
项目概况
保山,是全世界咖啡的重要产区之一,伴随着产业的蓬勃发展,精品咖啡馆如雨后春笋般破土而出。气味是深耕本地多年的老品牌,他们相中了一栋四十多岁的老宅作为第三家门店。
▲
项目外观概览
©
王策
老宅占地不到三分,是典型的当代西南民居,主体是木构的两层简易框架,坐西朝东,东面呈打开状,其余三面通过砖墙抗剪并承担竖向荷载,主体南侧并置了梯形的砖混结构副楼。
▲
老宅改造前
©
拾号建筑
▲
老宅改造后
©
王策
设计策略
用地位于市区核心位置,我们认为这个店的姿态不应该是张扬的,应该谦逊且平和,适宜地整理和介入才是设计的内核。初到场地时,老宅内部已被石膏板和乳胶漆包裹的严严实实,首要任务就是把这些过渡装饰的表皮拆除,将木屋架和红色砖墙自信地裸露出来。这样一来,老宅主体原有的瓦、木、砖便自上而下、由内向外地回归了它本来的模样。接着将其余外墙部分刷白,形成背景板,恢复原样的这部分便自然跳脱出来,成为用地中当之无愧的主角儿。最后在整理出来的老宅中介入适当金属元素,使其不失旧容貌的同时,焕发新的精气神。
▲
老宅主体成为主角儿
©
王策
老宅的整理是城市层面的把控,而咖啡馆的氛围拿捏会影响顾客到店的感受和体验。虽然原始场地的标高已经高出街道
1.4
米了,但东侧道路的车流人流非常大,所以朝东的建筑和院落仍然会被城市的喧嚣所干扰。好在建筑前方有几株高
20
多米的大树,在这天然的自然庇护下,应当去强化建筑和庭院的静谧感,才能照顾到造访的人们。
▲
院前有大树庇护
©
王策
先在基地东侧边界拉通一面长矮墙,不仅遮蔽住外部对内院的直接视线,也和北、西两侧围墙以及建筑主体共同形成了叠落的层次关系。
▲
外部矮墙遮挡街道视线
©
王策
▲
拾级而上
©
王策
接着在内院中心布置一层水面和一株四季桂,这对组合既照顾了建筑、庭院、大树之间的关系,也强调了整个场域的氛围立场。
▲
院落概览
©
王策
▲
院落里的水面强调场域氛围
©
王策
▲
细部
©
王策
咖啡的操作布置被合理地安排在一层的
“回”字型吧台里,吧台中心位置是咖啡机,方便制作常规意式咖啡,东侧为迎客点单区,南北两侧为客座区,面对北客座区的吧台用于制作手冲咖啡,面对南客座区的吧台是制作特调咖啡,同时将两边客座区抬高,这样客人在坐下时能与咖啡师视线平行,得到最舒服的交互状态。
▲
回字型吧台
©
王策
▲
抬高的客座区
©
王策
▲
二层空间
©
王策
▲
旧房新生
©
王策
▲
二层空间细部
©
王策
▲
旧的整理和新的介入
©
王策
风和日丽,倚靠在院落中,手握一杯卡蒂姆,听着街道车水马龙,树叶飒飒作响,水面涓涓细流。此刻,气味咖啡这栋被唤醒的老宅成为了保山生活的形容词。
▲
通往二层的楼梯
©
王策
▲
二层露台
©
王策
项目图纸
▲
改造前一层平面图
©
拾号建筑
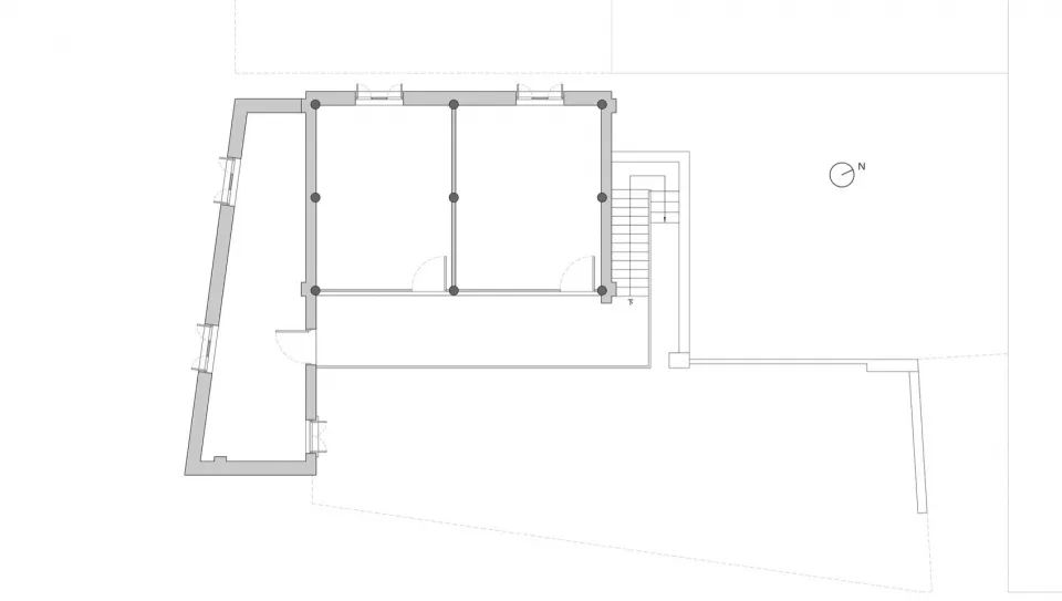
▲
改造后一层平面图
©
拾号建筑
▲
改造前二层平面图
©
拾号建筑
▲
改造后二层平面图
©
拾号建筑
项目名称:气味咖啡
项目地点:云南省保山市隆阳区太保南路
10
号
项目面积:
160
平米
设计时间:
2024.09-2024.10
完成时间:
2025.02
设计公司:拾号建筑
公司网站:
设计团队:周诗皓,李金航,吴雨桐
空间摄影:王策
客服
消息
收藏
下载
最近





































