查看完整案例

收藏

下载
©
Sanden+Hodnekvam Architects
该项目是位于Gjøvik的Kallerud校园扩建计划的一部分,旨在回应学生公寓不足以及校园运营部门对办公与工坊空间的新增需求。现有学生住房体系中,单人公寓严重短缺,而该校区学生平均年龄偏高,对此类住房的需求尤为迫切。
感谢
Sanden+Hodnekvam Architects
该项目是位于
Gjøvik
的
Kallerud
校园扩建计划的一部分,旨在回应学生公寓不足以及校园运营部门对办公与工坊空间的新增需求。现有学生住房体系中,单人公寓严重短缺,而该校区学生平均年龄偏高,对此类住房的需求尤为迫切。
▲
远观
© Sanden+Hodnekvam Architects
▲
外观
© Sanden+Hodnekvam Architects
▲
周边环境
© Sanden+Hodnekvam Architects
▲
由周围建筑看项目
© Sanden+Hodnekvam Architects
我们并未在本项目中引入多样化户型,而是将整个校园作为整体进行考量,力求在不增加项目复杂度的前提下,通过校区层面的规划实现多样化住房。在本项目中,重复布置的
96
个单元中仅包含两种户型:无障碍单元和标准单元。所有单元均配备独立卫浴、厨房以及结合起居与睡眠功能的生活空间。
▲
雪天远景
© Sanden+Hodnekvam Architects
▲
雪景
© Sanden+Hodnekvam Architects
▲
雪景
© Sanden+Hodnekvam Architects
▲
公寓立面
© Sanden+Hodnekvam Architects
▲
外观
© Sanden+Hodnekvam Architects
▲
入口
© Sanden+Hodnekvam Architects
▲
雪景
© Sanden+Hodnekvam Architects
建筑整体由两部分组成:一侧为三层低楼体,另一侧为六层高塔楼,下方设有一层嵌入地形的地下空间,用作停车、办公室及运营配套。塔楼作为校园轴线的终点,能从校区多处望见,具有标志性意义。整栋建筑共包含
96
套小型公寓,均配独立厨卫。各楼层设有宽敞的共享空间,塔楼一层还设有供全校使用的共享设施,包括洗衣房、咖啡厅和多媒体放映室。贯穿全楼的共享楼梯鼓励学生间的非正式交流。
▲
楼梯
© Sanden+Hodnekvam Architects
▲
楼层平台
© Sanden+Hodnekvam Architects
每个居住单元包括一个小玄关、配备炉灶、洗碗机与冰箱的小厨房、一张带储物功能的内置床,以及一张可转换为长椅的定制书桌和搁板。
1.5
米×
2.4
米的大尺寸窗户为紧凑的室内空间引入充足自然光。窗间设置竖向饰条以遮挡外部遮阳百叶,同时为空间立面增添层次感。
▲
分析图
© Sanden+Hodnekvam Architects
▲
学生公寓内部
© Sanden+Hodnekvam Architects
▲
细部
© Sanden+Hodnekvam Architects
建筑采用混合木结构体系,由交叉层压木、胶合木
和传统木构框架共同构成,旨在降低材料用量、减少温室气体排放并提升建造成本效益。主要承重结构为
CLT
内墙、楼梯井与电梯井,外墙则采用胶合木柱。预制的木构立面模块安装于建筑外侧,外部覆以未经处理的松木板,并辅以铝制细部构造与泛水系统。该建筑在温室气体排放方面较挪威标准减少了
40%
。
▲
室内施工过程
© Sanden+Hodnekvam Architects
▲
施工过程
© Sanden+Hodnekvam Architects
项目图纸与模型
▲
分析图
© Sanden+Hodnekvam Architects
▲
区位图
© Sanden+Hodnekvam Architects
▲
总平面图
© Sanden+Hodnekvam Architects
▲
底层平面图
© Sanden+Hodnekvam Architects
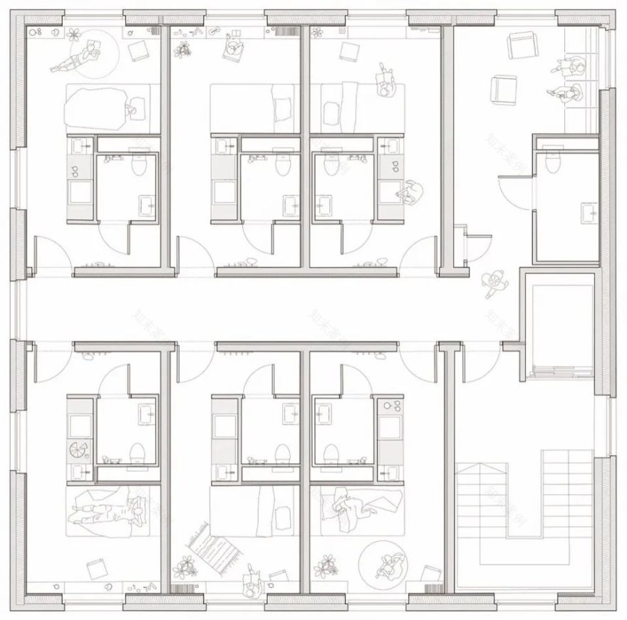
▲
公寓层平面图
© Sanden+Hodnekvam Architects
▲
立面图
© Sanden+Hodnekvam Architects
▲
剖面图
© Sanden+Hodnekvam Architects
▲
细部结构
© Sanden+Hodnekvam Architects
Facts
Architect: Sanden+Hodnekvam Architects
Collaborator: MDH Architects
Title: Kallerud Student Housing
Consultants: Woodcon, Sweco, GK, Spenncon, Eltera, Multiconsult, Feste Landskap
Client: SIT
Program: Student housing, maintainance areas offices
Location: Gjøvik, Norway
Size: 4400sqm
Status: Completed
Year: 2021-2024
Photos: Sanden+Hodnekvam Architects
客服
消息
收藏
下载
最近











































