查看完整案例

收藏

下载
©
仲刚
校园设计着重建筑与自然交错穿插的剖面关系,开放地面和连续屋顶保证了每个相叠的功能组团都有充足的户外空间,创造出立体庭院和穿插的户外活动,成为深圳新一代的高密度垂直复合校园原型。
感谢
王維仁建築設計研究室
石厦小学设计的挑战,是在多层高密度的条件下,维系一个合宜的空间尺度,调控建筑与自然的交错,让小孩与院落、大树与草地一起成长。设计利用层层上升的台阶,形成立体院落空间,期望深圳未来校园的开放,能将社区市民从城市广场经由大树院落,一路带到屋顶草坡,迈向都市合院的立体校园与城市。
▲
项目视频
©
直角建筑摄影(胡康榆)
▲
都市合院与城市空间
©
张超
▲
建筑鸟瞰
©
仲刚
▲
建筑鸟瞰
©
仲刚
▲
合院建筑、操场与城市
©
张超
▲
校园与街道
©
张超
立体院落
设计面对面积需求、层高和场地限制的挑战,以多元形式的户外空间贯穿垂直的功能划分,上层为行政办公,中层为教学组团,下层为公共功能。中层的教学空间从基本的班级单元开始,结合走廊共享空间形成班群。三个楼层组团叠加,低年级靠近操场,高年级靠近天台。上层是连续屋顶坡道和台阶,可以容纳花圃菜地、草地广场、剧场跑道。下层地面穿廊和挑空联系地下一层的礼堂、乐器、图书、游泳及体育馆。地面院落与架高廊道、开口和天窗为地下提供充足的自然采光。
▲
学习群组
+
空间层级
©
王维仁建筑设计研究室
▲
大树院落
©
张超
▲
教学院落
©
张超
▲
大树院落
©
张超
▲
庭院鸟瞰
©
王维仁建筑设计研究室
▲
大树院落与平台
©
张超
上升大树
设计在校园四个院落种植四棵大树,把绿色带到更高的楼层,树下平台或大台阶形成学习与活动空间,也带来遮荫改善微气候。校园设计着重建筑与自然交错穿插的剖面关系,开放地面和连续屋顶保证了每个相叠的功能组团都有充足的户外空间,创造出立体庭院和穿插的户外活动,成为深圳新一代的高密度垂直复合校园原型。
▲
大树院落:三维校园
©
王维仁建筑设计研究室
▲
大树院落
©
张超
▲
台阶坡道
©
张超
▲
台阶坡道
©
直角建筑摄影(胡康榆)
▲
院落鸟瞰
©
直角建筑摄影(胡康榆)
▲
大树院落
©
仲刚
▲
都市合院
©
张超
▲
檐下空间
©
王维仁建筑设计研究室
爬升草坡
建筑上层是连续屋顶坡道和台阶,可以容纳花圃菜地、草地广场、剧场跑道。坡道顺着
S
字形迂回上升,在西北角到达最高点之后,开始往东北角缓缓下坡,成为连续的回路。同学们在屋顶的慢跑或散步,配合缓缓上升的建筑形式,享受草坡花园与迂回上升的景观变化。
▲
连续的坡道,
Continuous ramp
©
王维仁建筑设计研究室
▲
草坡屋顶
©
张超
▲
草坡屋顶上的花圃菜地
©
直角建筑摄影(胡康榆)
内外光线
图书馆在斜坡屋顶下层,利用长型高空间曲折的天花,配合大台阶和落地窗的阅览书架,透过南侧墙体的大小开窗,让移动的光影彰显小孩的身体尺度;艺术馆架在东侧五层的连桥上,配合窗边旋转调整的遮阴展板,成为校园院落大尺度框景的建筑整体。
▲
公共空间
©
张超
▲
图书阅览
©
张超
▲
体育馆
©
张超
▲
游泳馆
©
直角建筑摄影(胡康榆)
▲
夜景
©
王维仁建筑设计研究室
项目图纸
▲
模型
©
王维仁建筑设计研究室
▲
总平面图
©
王维仁建筑设计研究室
▲
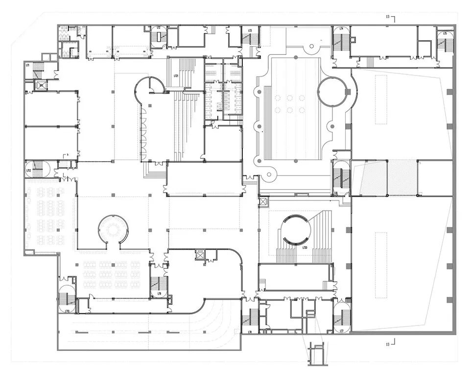
负一层平面图
©
王维仁建筑设计研究室
▲
一层平面图
©
王维仁建筑设计研究室
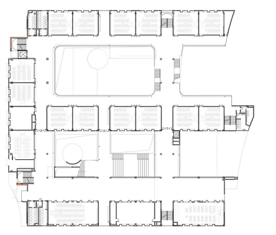
▲
二层平面图
©
王维仁建筑设计研究室
▲
剖面图
©
王维仁建筑设计研究室
▲
屋顶花园
©
王维仁建筑设计研究室
▲
院落、坡道、屋顶
©
王维仁建筑设计研究室
项目名称:石厦小学:都市合院校园
项目类型:学校
设计方:王维仁建筑设计研究室
公司网站:
项目设计:
2018
完成年份:
2021
设计团队:王维仁、钱健石、林晓钰、刘凯旋、明玉洁、洪伟梁
项目地址:深圳市福田区
建筑面积:
34,110
㎡
摄影版权:直角建筑摄影(胡康榆)、张超
合作方:深圳市和域城建筑设计有限公司
客户:深圳市福田区石厦学校、深圳市福田区建筑工务署
/
教育局
客服
消息
收藏
下载
最近




















































