查看完整案例

收藏

下载
弄潮儿—西田城立面更新改造
▼潮涌新生的城市转角 Vedio @直译建筑摄影
01 潮涌新生
|
Tidal Rebirth
旧建筑原为海宁老城中心的商业综合体——正翔商业广场,曾是海宁发展历史中最繁华的商业场所之一。基地位于海宁市联合路与文苑路交叉口。原本的方形界面,缺乏标识性的立面,以及弱化的入口引导性,都限制了场地活力的展现。
The
original
building used to b
e a commercial complex in old town center of Haining, called
Zhengxiang
Commercial Square
,
which was one of the most prosperous commercial places in the
urban development.
The site is located at the intersection of
Lianhe
Road and Wenyuan Road in Haining City
. The
square layout,
the
lack
of a
distinctive facade , and
the weak
entrance guidance all hindered
the space from
showcas
ing
its vitality.
▼商场原状
Original condition before renovation
▼区位图 Location
设计以将海宁独有的“潮”文化,从传统的江潮意象,转译为立面空间语言,场所与景观手段。
Basing on the conception of“Tide”,we extract cultural elements and translate the unique "tide" culture of Haining from the traditional imagery of the river tide into the language of facade and space,into the strategy of place-making and landscape.
▼场地改造策略 Strategy of site revolution
一个规则的四方形体量通过表皮包裹缠绕、扭转层叠、交织切分,营造出时尚动感的新“潮”玩社区商业。通过这一转变,我们不仅重塑了社区商业中心的外观,使得老城中心的社区商业能在这一轮城市更新的浪潮中实现“潮涌新生”。
After
renovation, we not only reshape the appearance
,
but also
activate community to
realize the "
Tidal Rebirth
"during the process of urban regeneration.
▼改造后沿街立面 Renovated street-facing facade
02 重新定义的城市转角
|
Redefined Urban Corners
设计突破原有流线规划限制,将原有分散于北侧与西侧两个入口合并,重新定义商业主要入口界面,营造活力入口与城市界面。
To breaks through the restrictions of the original route, the design merges the two original entrances located on the north and west sides into one,redefines the main commercial entrance interface, and creates a vibrant entrance and urban interface.
▼主入口的退让空间 The setback area for the main entrance
突破原有建筑、结构限制,设计将原本单层的入口空间挑空为2层的室外空间,增加积极的灰空间。新社区商业建筑的入口,通过其双层高的体量为城市空间赋能。
Breaking through the limitations of the original architecture and structure,the scheme transforms the originally single-story entrance space into a two-story outdoor space, adding an active in-between space. It is the entrance to the new community's commercial building but also empowers the urban space with its double-height volume.
03流转的立面细节
|
Details of a
F
lowing
B
uilding
F
acade
外立面由扭转折叠的水平元素构成,构成统一设计语言应用于立面布局及细节中。以海宁潮、浪潮之势,形成聚合、曲折、起伏的空间格局,增强了海宁地域历史文脉的延续,又带来整洁而又流畅的观感。
The exterior facade is composed of horizontally twisted and folded elements, forming a unified design language applied to the layout and details of the facade. I
nspired by the Haining Tide and the momentum of the waves,
they
create a spatial pattern that is aggregated, sinuous, and undulating, enhancing the continuity of Haining's regional historical and cultural context, while also providing a clean and smooth visual experience.
▼流动的立面
Flowing facade
▼ 模数铝板扭转
Twisted modular aluminum panel
西田城立面改造是动感且又克制。
水平扭转的动感铝板,由模数化的铝板幕墙系统形成起伏流动的外观。
如同一江潮水相互拍打,随而穿插交融。
The façade renovation is dynamic yet restrained. The dynamic aluminum panels, which twist horizontally, form an undulating and flowing appearance through a modular aluminum curtain wall system. It's like the interplay of tidal waves, interacting and merging with each other.
04 旧城新生的实践与探索 |Practice & Exploration
赋能旧城存量,需要去平衡和突破多元关系。它不是单一的改造,而是需要链接场地梳理、空间突破、业态活化、景观整合等多方因素。园舍设计亦将不断从建筑空间与景观场地的角度,去尝试突破束缚与限制的创作,实现进一步整合专业边界的实践。
To empower urban stock,we need to balance and break through diverse relationships. It's not just a simple renovation but integrates multiple factors such as site organization, spatial innovation, business revitalization, and landscape coordination. Ys Design continuously attemptes to get a creation that break through constraints and limitations from the perspective of architectural space and landscape site, to achieve a practice that further integrates professional boundaries.
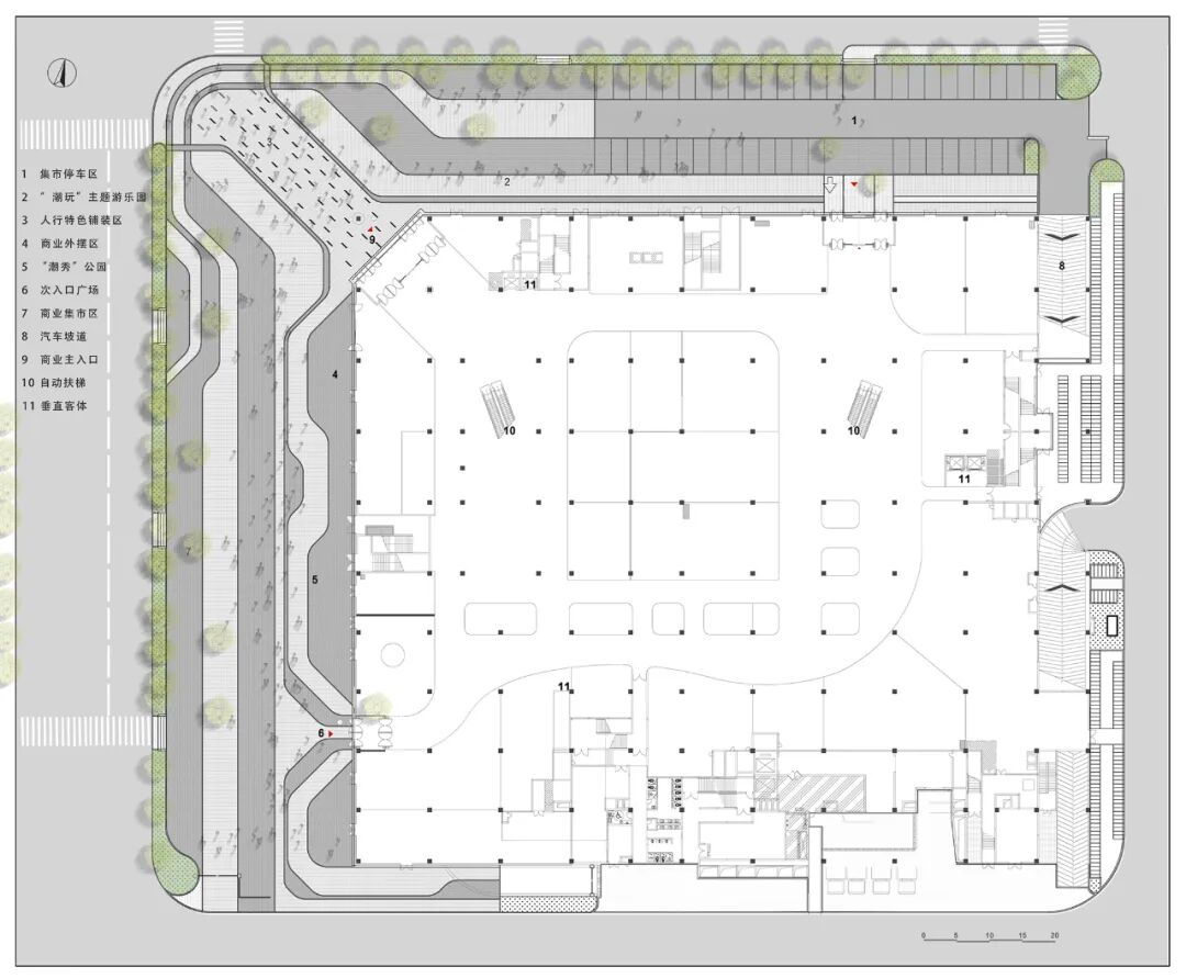
05 相关图纸 |Drawings
▼ 首层平面图 Ground Floor Plan
▼ 入口细节构造,Entrance Construction
▼ 入口细节构造 Entrance Construction
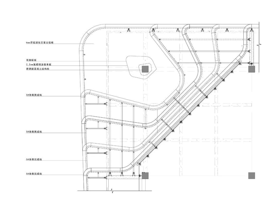
▼ 铝板表皮构造 Aluminum Panel Facade Construction
杭州园舍建筑景观设计有限公司
项目名称:海宁西田城立面更新改造
项目类型:城市更新,商业立面改造
项目地址:浙江海宁
设计时间(起迄年月):
2022.02-2022.10
建设时间(起迄年月):
2022.10-2023.08
用地面积:
23000平方米
建筑面积:
49657.2㎡
设计单位:园
·舍设计
主持合伙人
:蒋蕾蕾 应王波
设计团队:曹蓦、
樊昊、余奎、
贾深凯
、王澄钰
、葛枭淳
项目地址:浙江海宁
合作方:浙江联建工程设计有限公司
景观设计:园舍设计
室内设计:五行建筑
照明设计:蓝典照明
幕墙设计:杭州嘉威幕墙装饰有限公司
运营单位及业主:海宁西田商业管理有限公司
项目摄影:
玲古传媒,园舍设计
项目摄像:
直译建筑工作室
ONE DESIGN
客服
消息
收藏
下载
最近














