查看完整案例

收藏

下载
©
马元
引水入园、景观渗透:面向酱园港,形成六条视线通廊,校园景观与水景相互渗透,空间疏密有致,实现水景价值的最大化利用和一河两岸的城市最佳形象。
感谢
同济大学建筑设计研究院
概况
为整合职教资源,优化教育布局、提升城市能级,浙江海盐于酱园港畔征地513.5亩,建设中职园区(融合原有海盐商贸学校、理工学校,容纳6000人)、高职园区(嘉兴职业技术学院海盐学院,容纳3000人)、体育中心(“两馆一场”:即一个3500固定座位外加1500活动座位的体育馆、1个游泳馆、一个7000固定座位体育场)一体化的职教中心。
▲一体化的学习聚落——核心区鸟瞰
© 马元
难点
• 职教中心由中职园区、高职园区、体育中心三部分组成,如何打造共享的一体化校园?
• 如何延续海盐“千年古县、江南水乡、滨海新城”的城市胜景?结合周边环境打造怎样的校园核心空间?
• 如何创造共享交流、集约高效的建筑空间?
• 如何在低成本的条件下创造地域风格的校园建筑?
• 体育中心如何兼顾校园使用与社会共享?
▲用地
© TJAD
▲项目用地
© TJAD
▲规划设计
© TJAD
理念
设计从以人为本切入,遵循生态本底的原则,通过人文景观的物化落位,紧扣教育理念的创新趋势。提出“引水拥园、古韵新貌、校城联动、未来校园”的概念,力求创造一个以人为本、自然共生、面向未来、产教融合的校园新典范。
▲江南园林的现代演绎——核心区总体
© 马元
策略
一、中高一体 职教聚落
资源共享的一体化校园:中、高职共处一个校园,校园规划以湖为核、以水为脉、以园为实,共享公共实训中心及体育中心及核心景观,形成一体化的职业教育中心。共享实训资源区设置于中、高职园中央,涵盖公共实训中心及预留教学实训、配套设施。
▲
教
学楼设计
© TJAD
▲产教融合的公共实训中心
© 马元
二、水乡古韵 拥园入校
引水入园、景观渗透:面向酱园港,形成六条视线通廊,校园景观与水景相互渗透,空间疏密有致,实现水景价值的最大化利用和一河两岸的城市最佳形象。
▲引水拥园——校园核心水景
© 马元
园林演绎:借鉴园林设计中对景、借景等造景手法,以“明理湖”景观核为中心,通过礼仪纵轴与景观横轴构建空间骨架,形成“曲水流觞、拥园入校”的校园格局。景观湖借鉴南北湖“湖中有岛、岛中有塔”的造景手法,以海盐人文为导向,融合礼仪广场、滨水岸线等现代特色开放空间,打造古今交融、时尚活力的滨水人文景观带。
▲资源共享的校园
© 马元
三、集约共享 内外皆趣
理实一体、共享交流:根据职业教育的特点,强调理实一体的教学空间,打造室内外学习交流空间,通过屋面、退台、开放内院、中庭等方式,连接景观与教学交流空间形成景观共生、充满活力的内外学习空间。
▲有机生长的学习聚落——中职教学楼
© 马元
书山意向:图书馆以“书山云台”为意,形体如同错动堆叠的书本,形成一系列交错的室外景观平台。建筑立面被行云流水般的竖向格栅环绕,展现“科技之云”的立意。
▲书山云台——高职图书馆
© 马元
科技之窗:功能楼以“科技之窗”为设计理念,以螺旋咬合的形体构成富有张力的建筑形象,正对中职教学区主轴线自然形成“窗口”的意象。利用形体的进退形成错落有致的虚实关系,营造出丰富的平台空间体验。
▲科技之窗——中职功能楼
© 马元
▲富有张力的中职功能楼
© 马元
通达共享的活动平台:教学楼通过阶梯教室、屋面、连廊、室外楼梯等形体的灵活组合,形成通达共享的活动平台,营造交流融合的开放活动场所。
▲开放的活动平台——中职教学楼
© 马元
自由灵动的下部空间+高效集约的上部空间:教学楼1层布置合班教室、交流空间等公共性较强的空间, 2-5层集中布置教室,高效集约,利用建筑形体的化整为零和灵活转动,营造有机生长的“学习聚落”。
▲理实一体的中职实训楼
© 马元
▲建筑细部
© 马元
园林化的院落空间:高低错落的建筑体块与风雨连廊共同围合出尺度宜人、富有趣味的庭院空间,让师生仿佛置身江南园林之中。
▲园林化的教学楼庭院
© 马元
开放交流的室内公共空间:利用门厅、休息区、讨论区等营造开放的非正式交流空间。
▲开放共享的中职功能楼门厅
© 马元
▲自主开放的高职阅览室
© 马元
四、活力复合 校城共享
体育中心面向校园与城市,实现校城融合。体育中心双模式设计,教学时段满足校内课程+实训的需求,非教学时段兼顾商业赛事承办、市民健身中心、大型活动场地的使用。
▲体育中心功能流线分析
© TJAD
▲校城共享的体育中心
© 马元
▲海盐之钻——体育馆
© 马元
▲富有韵律的体育馆立面
© 马元
▲多功能使用的体育馆
© 马元
体育馆与体育场以”海盐之钻”为共同语言,通过棱角分明的折面造型形成视觉对话。通过屋顶平台实现人流互通,共享配套空间,组织成为一个有机的整体。
▲结构形式的呈现——体育场
© 马元
▲室外体育场
© 马
元
▲体育场回望
© 马元
五、严控成本 江南校园
地域校园:采用现代建筑建构手法,墙面浅灰与深灰搭配,呼应江南水乡粉墙黛瓦的传统建筑意象。利用阶梯教室的抬升,自然形成曲折灵动的天际线,恰似逐水而居的江南民居,恣意悠然。
▲开放自由的校园环境
© 马元
形体控制低技降本:本项目造价异常紧张,设计以“适用经济”为原则,控制建筑体型系数、窗墙比等,采用仿石和仿金属涂料替代常规幕墙,局部采用木色格栅,降低装饰成本,最终建筑造价约3500元/平方米。
项目图纸
▲总平面图
© TJAD
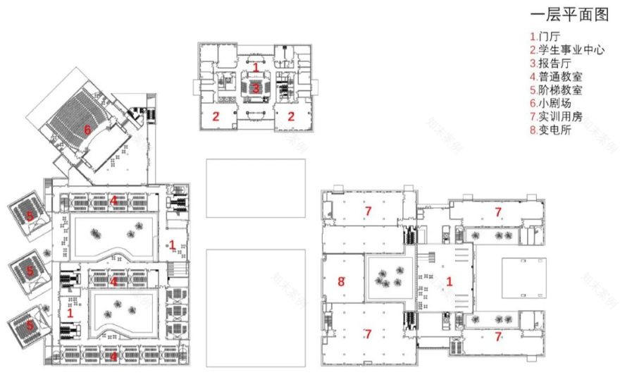
▲中职教学实训一层平面图
©
TJAD
▲中职教学实训二层平面图
© TJAD
▲体育中心一层平面图
© TJAD
▲体育中心二层平面图
© TJAD
▲体育中心剖面图
© TJAD
▲体育中心剖面图
© TJAD
项目名称:浙江海盐职教中心
项目类型:教育建筑
设计方:同济大学建筑设计研究院(集团)有限公司
设计总负责人:王文胜、周峻
建筑设计:李增军、王超、叶雯、郭志滨、卢西、柳珊、邱金宏、程熠、庄凯明、陈奕、李娟、徐戈、陈帆
结构设计:阮林旺、张涛、高磊、孔庆宇、赵宇杰、廖萍、吴瑶、宇露、李璐
给排水设计:黄倍蓉、李意德、蒋一锋、杨帆、董亚文、陈铭
暖通设计:曾刚、许烨、李昊翔、年元明、陶涛
电气设计:程青、孙立安、沈国庆、李建华、陆扬
景观设计:丛凤庆、徐国平
项目地址:浙江,嘉兴,海盐
建筑面积:约27万㎡
摄影版权:马元
客服
消息
收藏
下载
最近











































