查看完整案例

收藏

下载
©
Keishin Horikoshi
东西方向上塑造出开阔而延展的空间的同时,在南北方向引入错层结构,将不同高度的水平面嵌入建筑中。我们尝试将这些由高低差产生的空隙视为光线、风以及人的流动路径,以此来打造一个舒适宜人的居住环境。
感谢
小大建筑设计事务所
这是一栋坐落于自然环境优越之地的住宅,面朝樱花树成荫的步道(原为小川后改为暗渠),拥有良好的视野、通风和采光条件。为了回应业主“每天在日出中醒来,仰望天空,感受自然光和风”的愿望,我们对住宅的构成进行了深入思考。
▲
坐落于自然环境优越之地的住宅
© Keishin Horikoshi
▲
路口视角
外观
© Keishin Horikoshi
▲
拥有良好的视野、通风和采光条件
© Keishin Horikoshi
▲
整体立面
© Keishin Horikoshi
考虑到住宅南侧紧邻绿道与樱花林,设计中力求最大程度地向南开敞。同时,受日本北侧斜线高度限制的影响,北侧建筑需相对降低高度。于是我们意识到,在南北方向上设置不同的层高是一种合理的建造方式。
▲
受日本北侧斜线高度限制的影响,北侧建筑需相对降低高度
© Keishin Horikoshi
▲
外观及景观
© Keishin Horikoshi
▲
外观入口及阳台
© Keishin Horikoshi
▲
立面细部
© Keishin Horikoshi
东西方向上塑造出开阔而延展的空间的同时,在南北方向引入错层结构,将不同高度的水平面嵌入建筑中。我们尝试将这些由高低差产生的空隙视为光线、风以及人的流动路径,以此来打造一个舒适宜人的居住环境。
▲
立面细部
© Keishin Horikoshi
▲
外观入口及阳台俯瞰
© Keishin Horikoshi
▲
窗户细节
© Keishin Horikoshi
▲
立面入口&景观细部
© Keishin Horikoshi
玄关铺设了天然小石的土间空间,与室内无缝连接,细致而温馨地迎接家人和来客。
▲
玄关铺设了天然小石的土间空间
© Keishin Horikoshi
▲
玄关空间
© Keishin Horikoshi
▲
玄关与艺术品
© Keishin Horikoshi
▲
玄关柜子与艺术品
© Keishin Hori
kosh
i
▲
柜子细部
© Keishin Horikoshi
正面设置了一扇由手工精心拼贴而成的漆涂和纸门扉,并配以经过名栗加工(Naguri)的把手。以楮纸制成的和纸涂上漆后,不仅展现出独特的质感,还提升了强度,随着时间的使用更能展现出深厚的风味。
▲
一扇由手工精心拼贴而成的漆涂和纸门扉
© Keishin Horikoshi
把手则是由栗木与胡桃木两种木材交替拼接成六角形,再施以名栗加工,使其在不同角度展现出丰富的表情,同时也带来富有趣味的握持触感。
▲
经过名栗加工的把手
©
Keishin Horikoshi
▲
関守石
© Keishin Horikoshi
从玄关上来之后,地板采用了经过名栗加工的实木材料,不仅在视觉上呈现质感,更通过脚下的触感传递出归家的安心感。
▲
入户的土间空间与室内无缝连接
© Keishin Horikoshi
▲
地板采用了经过名栗加工的实木材料
© Keishin Horikoshi
▲
地面及墙面细节
© Keishin Horikoshi
楼梯处柔和的自然光从北侧上方洒入,贝松实木的踏板、铜色的扶手以及工匠细心缠绕的藤制扶手的质感,共同营造出温馨柔和的空间氛围。
▲
贝松实木的踏板、铜色的扶手以及工匠细心缠绕的藤制扶手的质感
© Keishin Horikoshi
▲
楼梯
© Keishin Horikoshi
▲
楼梯处柔和的自然光从北侧上方洒入
© Keishin Horikoshi
▲
楼梯空间
© Keishin Horikoshi
▲
楼梯空间仰视
© Keishin Horikoshi
▲
楼梯细节
© Keishin Horikoshi
▲
楼梯与画
© Keishin Horikoshi
▲
洗手台与楼梯
© Keishin Hor
iko
shi
居住中最长时间使用的客厅、餐厅和厨房(LDK)被安排在二楼南侧,面向樱花林道,拥有超过13米的宽阔开口。
▲
面向樱花林道,拥有超过13米的宽阔开口
© Keishin Horikoshi
▲
东西方向上塑造出开阔而延展的空间
© Keishin Horikoshi
▲
在南北方向引入错层结构
© Keishin Horikoshi
▲
错层空间
© Keishin Horikoshi
▲
居住中最长时间使用的客厅、餐厅和厨房(LDK)被安排在二楼南侧
© Keishin Horikoshi
为了让五口之家宽敞自在地生活,我们设计了无柱结构空间。通过不在大梁的垂直方向设置小梁,来自北侧天窗的自然光能够柔和地洒满天花板,使整个空间在一天中都能充满自然光线。
▲
为了让五口之家宽敞自在地生活,我们设计了无柱结构空间
© Keishin Horikoshi
▲
我们尝试将这些由高低差产生的空隙视为光线、风以及人的流动路径
© Keishin Horikoshi
为了实现最大12米跨度(客厅餐厅跨度为7.7米)的木结构无柱设计,采用了将105×270毫米的大梁夹着半割的60×240毫米梁,按910毫米的间距组成剪刀式桁架(Scissors Truss);在与其垂直的天窗部分则设置维尔恩德尔桁架(Vierendeel truss)。通过这种设计,水平力由同时作为饰面层的屋面板承担,从而形成了无小梁、结构规整且坚固的大屋顶。
▲
客厅餐厅跨度为7.7米的木结构无柱设计
© Keishin Horikoshi
▲
通过不在大梁的垂直方向设置小梁
© Keishin Horikoshi
▲
105×270毫米的大梁夹着半割的60×240毫米梁,按910毫米的间距组成剪刀式桁架
© Keishin Horikoshi
在环境设计方面,建筑结构通过檐口和墙体遮挡阳光直射,具备充分的隔热性能,最大化利用自然通风和自然采光,以被动式节能设计为基础。
▲
来自北侧天窗的自然光能够柔和地洒满天花板,使整个空间在一天中都能充满自然光线
© Keishin Horikoshi
▲
楼梯与错层
© Keishin Horikoshi
▲
厨房与餐厅
© Keishin Horikoshi
▲
餐厅与厨房
© Keishin Horikoshi
▲
厨房细部
© Keishin Horikoshi
一、二楼南侧均设有大面积开口,引入南北方向稳定流动的风,同时结合重力通风原理,开启屋顶顶部的天窗,形成从一楼吸入风的气流,实现自然通风效果。在寒冷季节,设计通过吸取屋顶顶端积聚的暖气,送至一楼窗下及浴室等较冷区域,使暖气在整个房屋内循环流动。
▲
客厅与阳台无缝衔接
© Keishin Horikoshi
▲
餐厅看向阳台
© Keishin Horikoshi
在客厅、餐厅和厨房(LDK)与室外之间设置了无缝连接的露台,拓展了起居空间的延展性。保持面向樱花林的开放视野的同时,也设计了可调节视线遮蔽的窗帘,以满足夜间对隐私的需求。白天透光的布料随风轻盈飘动,夜晚则通过增加布料密度形成不透明的隔断,使露台与LDK融为一体的空间感得以延续。
▲
LDK空间
© Keishin Horikoshi
▲
LDK空间与阳台
© Keishin Horikoshi
浴室紧邻露台布置,脱衣室和浴室内也能洒入柔和的自然光,并且设计让人能够感受到微风。通过将浴室楼层降低于露台水平,有效阻隔了来自绿道的视线,同时保证了较高的天花板高度,使蒸汽能够顺畅上升并排出,避免积聚。
▲
较高的天花板高度,使蒸汽能够顺畅上升并排出,避免积聚
© Keishin Horikoshi
▲
浴室紧邻露台布置,脱衣室和浴室内也能洒入柔和的自然光
© Keishin Horikoshi
▲
卫浴空间与阳台
© Keishin Horikoshi
▲
通过将浴室楼层降低于露台水平,有效阻隔了来自绿道的视线
© Keishin Horikoshi
▲
保持面向樱花林的开放视野的同时,也设计了可调节视线遮蔽的窗帘
© Keishin Horikosh
i
▲
无缝连接的露台拓展了起居空间的延展性
© Keishin Horikoshi
浴室采用十和田石与桧木,展现出丰富的肌理与色彩层次,并散发自然的芬芳。在沐浴时打开窗户,让四季之景随风入室,营造出一个能够温柔包容身心、予人疗愈的场所。
▲
浴室采用十和田石与桧木
© Keishin Horikoshi
三个孩子的学习区并未作为独立的封闭房间设置,而是安排在跳层下沉约70厘米的空间中。这样既通过腰墙将其与客厅、餐厅和厨房(LDK)分隔开来,又能让空气流通与氛围得以在家庭成员之间共享,营造出既有区隔又连通的学习环境。
▲
腰柜分隔错层空间
© Keishin Horikoshi
▲
室内遍布自然素材,营造出充满工匠手工温度的空间
© Keishin Horikoshi
▲
自然材料打造的柜子
© Keishin Horikoshi
▲
柜子细部
© Keishin Horikoshi
▲
与其垂直的天窗部分则设置维尔恩德尔桁架
© Keishin Horikoshi
▲
通过腰墙将其与客厅、餐厅和厨房(LDK)分隔开来
© Keishin Horikoshi
▲
三个孩子的学习区安排在跳层下沉约70厘米的空间中
© Keishin Horikoshi
▲
LDK看向学习空间
© Keishin Horikoshi
业主是一位随着日出而起、日落而眠,生活与自然紧密相连的人,因此将卧室布置在朝阳温暖照射的东侧。障子柔和地扩散晨光,质感丰富的硅藻土墙面环绕,使自然光温柔地包裹整个房间。
▲
走廊与卧室
© Keishin Horikoshi
▲
卧室内部空间
© Keishin Horikoshi
▲
障子柔和地扩散晨光,质感丰富的硅藻土墙面环绕
© Keishin Horikoshi
在充分享受外部自然环境恩惠的同时,室内遍布自然素材,营造出充满工匠手工温度的空间。我们希望这所房子能随着岁月沉淀出独特的质感,见证家人宽厚而温暖的成长。
▲
整体夜景
© Keishin Horikoshi
▲
立面夜景效果
© Keishin Horikoshi
▲
夜景入口视角
© Keishin Horikoshi
▲
阳台夜景
© Keishin Horikoshi
▲
入口玄关
© Keishin Horikoshi
▲
夜间阳台
© Keishin Horikoshi
▲
白天透光的布料随风轻盈飘动,夜晚则通过增加布料密度形成不透明的隔断,使露台与LDK融为一体的空间感得以延续
© Keishin Horikoshi
▲
夜间LDK空间
© Keishin Horikoshi
▲
夜间LDK空间与阳台
© Keishin Horikoshi
项目图纸
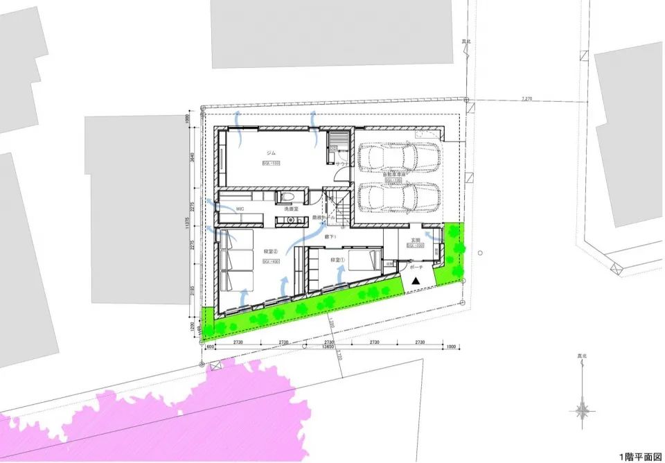
▲
一层平面图
© 小大建筑设计事务所
▲
二层平面图
© 小大建筑设计事务所
▲
东西向剖面图1
© 小大建筑设计事务所
▲
东西向剖面图2
© 小大建筑设计事务所
▲
南北向剖面图1
© 小大建筑设计事务所
▲
南北向剖面图2
© 小大建筑设计事务所
场地:東京都目黒区
主要功能:住宅
用地面积:135㎡
建筑面积:265㎡
业主:個人
设计:小大建筑设计事务所 + 磯田和明
负责人:小嶋伸也・小嶋綾香・中村靖怡・板倉知也(元所員)
施工:株式会社渡辺富工務店
構造设计:浜田英明建築構造设计
設備设计:Y.M.O. 合同会社
照明设计:Daisuki light Inc.
造園:石正園
窗帘:fabricscape
摄影:Keishin Horikoshi/SS
客服
消息
收藏
下载
最近
































































































