查看完整案例

收藏

下载
©
GWP Architects
为适应岭南气候的特点,在建筑外立面上GWP设计了一种模块化的表皮系统,根据日照分析布置 7 字板块遮阳系统,形成了独特的立面模块化。通过控制模块的组合方式,形成东疏西密的合理遮阳方式,保证室内自然采光并可减少太阳辐射,实现高效的节能控制。
感谢
GWP Architects
“玩心之家,创造快乐”设计构想
三七互娱全球总部大厦(37 Interactive Entertainment Headquarters)项目位于广州琶洲核心CBD区域,琶洲区位优势明显,与珠江新城、广州国际金融城隔江相望,构成广州中心城区经济发展“黄金铁三角”,未来将成为广州创新经济发展核心引擎。目前该区域已经成功引入阿里巴巴、腾讯、三七互娱、南方复星、唯品会、国美、小米、YY、科大讯飞等一大批人工智能与数字经济的龙头企业,并着力推进打造世界一流的数字经济示范区。
▲三七互娱全球总部大厦实视频
© GWP Architects
地块位于琶洲西区琶洲大街西北侧,北临城市绿地和华邦国际中心,东侧为三一重工总部大厦,北侧300 米为琶醍啤酒文化创意区。GWP设计团队深度剖析三七互娱“玩心创造世界”企业文化内核,构筑“玩心之家,创造快乐”设计概念,将企业文化 LOGO 分解重构,贴合在建筑体量之上,定制 7 字板块,呼应“三七互娱”的特点,在趣味中体现独特性。以其创新的外立面构造和内部空间,传递出公司的使命和理念。
▲一江两岸黄金三角圈
© GWP Architects
▲概念手稿
© GWP Architects
▲设计概念与概念生成分析
© GWP Architects
▲三七互娱全球总部大厦
© GWP Architects
定制化的空间组织根据互联网类企业和人才团队的需求,GWP设计团队创造丰富多元的空间体验和场所互动。在建筑二层设置了连廊与周边建筑进行连接,并在建筑的高中低区各设置了特色公共空间。同时,为适应企业对空间利用的灵活需求与不定期的功能转换可能,设计一套模块化的平面体系,制定出办公模块、会议模块和活动模块等,满足各种个性化功能需求与自由组合。
▲各区特色公共空间示意图
© GWP Architects
▲功能分析图
© GWP Architects
▲三七互娱全球总部大厦大堂
©矩陣
特色空间均匀分布于总部各楼层,提升使用者体验,增强归属感。其中,低区的协作交流文化空间以阶梯形式连系三层通高空间,营造出更宽广的空间尺度,保证了空间的实用性和吸引力。中区的健康运动楼层设置了一条环形慢跑跑道,为企业员工提供开放健康的运动活动场所。
▲三七互娱全球总部大厦室内
©矩陣
▲三七互娱全球总部大厦室内
©矩陣
多功能厅以光线设计增强了空间的延伸感,人们穿行在其中,体验未来感的会议空间;可作为大型会议、演播与运动场地进行使用的多功能厅,空间灵动的布局可适应不同的活动需求,激发活力。
▲三七互娱全球总部大厦室内
©矩陣
▲三七互娱全球总部大厦室内
©矩陣
“多维”的绿化体系
为了提供舒适健康的办公环境,GWP设计团队将立体绿化360°螺旋型从下至上覆盖整个建筑,以立体绿化延续城市绿意,在高中低区分布不同的空中花园,以建筑语言续写城市生态足迹,调节微气候,降低热岛效应。裙楼屋顶延伸周边场地的绿化景观,精心营造一个充满亲和活力与社交互联的休憩之园;顶层屋顶花园可品赏极致全方位江景视野,精致生态绿植的布置,通透开阔视觉空间,使它从一众办公楼中脱颖而出。
▲立体绿化分析图
© GWP Architects
模块化表皮节能设计
为适应岭南气候的特点,在建筑外立面上GWP设计了一种模块化的表皮系统,根据日照分析布置 7 字板块遮阳系统,形成了独特的立面模块化。通过控制模块的组合方式,形成东疏西密的合理遮阳方式,保证室内自然采光并可减少太阳辐射,实现高效的节能控制。疏密的组合也展现出立面灵动的变化,在提升建筑节能的同时赋予了美学的魅力。
▲模块化表皮示意图
© GWP Architects
▲三七互娱全球总部大厦仰视视角
© GWP Architects
▲三七互娱全球总部大厦立面近景
©
GWP Architects
首层公共开放空间
在建筑首层让出公共架空空间,连通地块北侧公园绿地与骑楼空间。24 小时全天开放实现公共人行动线灵活性。在公共架空空间中,布置艺术楼梯、文化展示栏、城市艺术品摆放区、公共无障碍电梯厅、公共配套商业等公共服务设施,实现公共效益最大化,用开放共享空间反馈城市。
▲分析图
© GWP Architec
t
s
▲三七互娱全球总部大厦– 底层架空
© GWP Architects
“玩心之家,创造快乐”建设过程
GWP团队作为项目的建筑全过程总负责,及担任项目效果品质管控单位,统筹协同多专业推进工作,从质量、效率、成本、服务等方面进行全过程的把控。
▲夜景
© GWP Architects
质量优
建筑设计总控板块,对结构、设备、幕墙、泛光、绿建三星、装配式六大专业节点介入设计把控。如结构专业上选用国内规模最大的单专业甲级结构设计事务所RBS,在结构专业上提前介入超高层建筑方案设计当中,在设计整体的合理性、安全性、经济性上给予支撑,保障项目顺利推进。在设计中根据项目场地条件,北侧角柱让开江景视野。
▲街景
© GWP Architects
在设备设计上,以建筑带领各设备专业,共同优化方案,充分论证各系统选型利弊,保证方案落地品质。遇到关键系统选型,将会以专题形式,明确优缺点、成本及专业意见,服务客户做决策。在电梯设计上,为客户推演了20+方案运力模拟,全面平衡运载率和经济性 ,选取最优解方案。
▲三七互娱全球总部大厦效果图与实景图对比
© GWP Architects
在幕墙专业、泛光专业上,担任项目招标过程技术审查与技术顾问,严格把控招标图纸与精细还原方案程度,严格审核实体落地样板,反复验证现场实施效果。在装配式专业上,以最优化成本要求,现场指导施工人员正确安装预制组件。在绿建三星上,绿色建筑初步得分评估86 分,满足绿色建筑三星预认证要求。GWP团队以建筑专业为主体,统筹协调各细分专业,在图纸落地精细化制作中做到高质量,在精细化审核招采过程担任技术顾问,保证实施单位的质量,通过以上综合审核确保超高层优质的质量。
▲街景
© GWP Architects
效率优
项目从2020年10月项目投标,2021年3月项目启动会、方案定稿、方案深化、方案初步设计约四个月完成方案设计,并达到总包招标标准。在过程中GWP团队提前研究琶洲片区总师审批逻辑,总结快速审批方法论,多次提前对接和现场沟通,及时完成总师要求以促进加快流程。2021年8月全面交接施工图并同步进行项目动工仪式,综合地上、地下分两段报批开工的条件,提前介入支持基坑施工图,促进项目进度加快实现。通过高效的设计把控及合理的节点配合,在经历海珠区疫情影响进度两个月后,预计结构封顶及竣工时间比前期计划提前了约3个月,推进效率优于琶洲片区 90% 的项目。
▲三七互娱全球总部大厦
© GWP Architects
成本优
在成本控制上,GWP团队会针对重点专项充分论证,以专业态度协助客户选型;对重点材料做出清晰对比,保证品质的前提下有效控制成本。同时充分了解规范要求,以最低成本满足相关规定。如在塔楼外框柱选型上,充分考虑材料用量、每层占用面积、施工工期、对装配式措施的影响后,综合推荐钢管混凝土柱为最优方案;地下对塔楼柱选型进行精细化成本控制,节省地下塔楼柱成本约 8%;地下室楼盖方案在综合考虑土方成本、材料成本、施工质量等因素后,推荐无梁楼盖方案。在幕墙方面由行业前三的优质幕墙单位施工,通过对各类材料优缺点及成本直观对比,提供专业意见,经过方案深化阶段的优化,主要系统及材料没有变化的情况下,节约投资超 2000 万等。
▲立面细部
© GWP Architects
服务优
GWP 团队为三七总部提供全方位优质服务,成立三七项目专项小组,全专业全方位响应各阶段需求;建立 24 小时沟通群,及时高效解决项目疑问及突发情况;遇客户疑问及突发情况,承诺 2-3 天内以专题报告的形式作出解答或给出解决方案。GWP团队通过全过程精心设计服务与协调,促进项目按计划高效率开展各环节工作,保障工期按计划加快进行。通过对效果细化设计严控成本,比客户预期计划成本节省将近10% 工程费用。并全程协调对接政府和总规划师,得到政府各部门(规划局、住建局、发改委、区政府、管委会等领导)一致好评,并获得客户书面感谢信致谢表扬。
▲三七互娱全球总部大厦灯光效果
© GWP Architects
目前,三七互娱全球总部大厦已获得2022年意大利A Design Awards设计大奖、2021年美国MUSE建筑设计奖、2021年巴黎DNA设计大奖、2021年澳大利亚布里斯班设计奖、2021年中国REARD全球地产设计大奖等多项国内外知名建筑奖项。
▲三七互娱全球总部大厦灯光效果
© GWP Architects
总师审查贯穿整个方案报审阶段全程,GWP设计团队通过对总师意见的专业理解,合理化的提出可行的建议,综合平衡客户诉求,在能通过总师审查的原则下,尽可能为客户争取最大利益 ,顺利通过总师审查工规证阶段。建成后,三七互娱全球总部大厦将以其创新的外立面构造和内部空间为特色伫立在琶洲核心CBD区,传递出企业的使命和理念。
项目图纸
▲总平面图
© GWP Architects
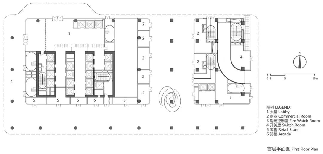
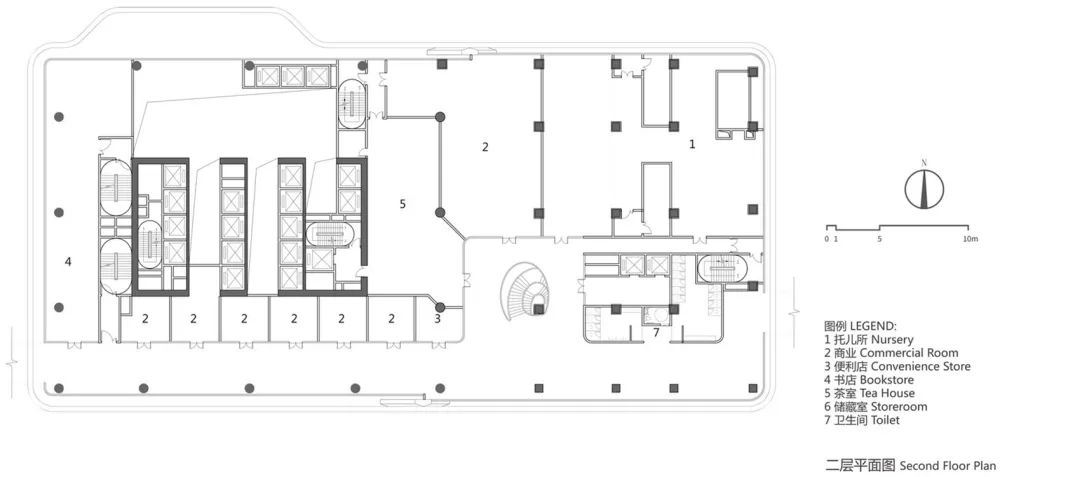
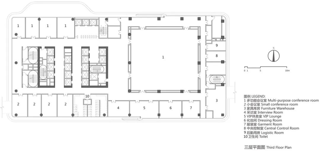
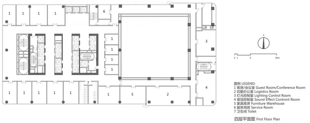
▲一至四层平面图
© GWP Architects
▲办公层平面图
© GWP Architects
▲立面图
© GWP Architects
▲剖面图
© GWP Architects
项目名称:三七互娱全球总部大厦
项目位置:中国,广州
用地面积:6427㎡
建筑面积:95315㎡
项目阶段:已建成并投入使用
建筑设计单位:GWP建筑事务所
景观设计单位:广州山水比德设计股份有限公司
室内设计单位:矩陣縱橫設計股份有限公司
施工图设计单位:广州市设计院集团
结构及装配式设计单位:广州容柏生建筑结构设计事务所
设备设计单位:艾奕康咨询(深圳)有限公司
幕墙设计单位:武汉凌云建筑装饰工程有限公司+史倍思建筑科技(广州)有限公司
绿建设计单位:广东省建科建筑设计院
灯光设计单位:广州名至照明发展有限公司
建筑设计团队:张国威(主创)、王平、黄学
客服
消息
收藏
下载
最近













































