查看完整案例

收藏

下载
©
陈曦工作室
在保持简洁、现代的整体基调前提下,塑造出多样的空间体验,为不同功能、部门和场景打造各自独特的记忆点,与申昊机器人基于多种环境设计高适应性机器人的创新工作以及“工业大健康”的发展目标相呼应。
感谢
峪作建筑
本项目坐落于杭州市余杭区义桥工业园,处于杭州主城区西侧,与杭州未来科技城相邻。建筑场地位于工业园东南侧,西侧和北侧均为已开发建设企业生产性用房的工业用地,南侧紧依山体,东侧则是尚未开发的农田,周边环境呈现出工业与自然交融的独特风貌。
▲项目鸟瞰
©陈曦工作室
▲项目鸟瞰
©陈曦工作室
项目业主申昊科技是一家专注于机器人技术研发和生产的公司。此次项目旨在整合申昊科技的研发团队与资源,为其机器人科技的研发、测试、展示、交流、生产和加工等环
节,构建一流的设施与场所,全力营造开放且创新的科技园区文化。
▲建筑外观
©陈曦工作室
场地被划分为两个主要功能区域:东侧建筑用于办公和研发,西侧建筑则用于生产制造。两栋主体建筑通过3-5 层的连廊相互连接。
▲建筑外观局部
©陈曦工作室
多样化的机器人测试场地以及机器人的运行和测试是申昊研发设施中独具特色的空间元素。设计团队巧妙地利用这一元素,提出以连续抬升的测试场地来组织室内空间,构建了全场景测试体系,从模拟复杂地形的立体轨道、高度还原变电站环境的专业测试舱,到精密控制的水下测试池,为轨道机器人、变电站检测机器人、水下机器人的研发测试提供一站式专业场所。同时打造开阔的开放性场域,为使用者创造更多偶遇与互动的机会。
▲机器人测试水池
©DONG IMAGE
▲机器人测试水池和玻璃栈道
©DONG IMAGE
▲连廊
©陈曦
工
作室
室内设计的灵感源于地球上丰富多样的自然环境和地貌特征。根据不同的功能需求,设计方案从海洋、沙漠绿洲、宇宙、热带雨林、草原、冰川等多种自然环境中汲取意象。
▲建筑之间的天空
©
DONG I
MAGE
▲主入口
©陈曦工作室
▲主入口
©DONG IMAGE
在保持简洁、现代的整体基调前提下,塑造出多样的空间体验,为不同功能、部门和场景打造各自独特的记忆点,与申昊机器人基于多种环境设计高适应性机器人的创新工作以及“工业大健康”的发展目标相呼应。
▲主入口门厅
©
DON
G IMAGE
▲北侧连续露台
©DONG IMAGE
▲中庭空间
©陈曦工作室
▲二层展厅空间
©DONG IMAGE
▲轨道机器人测试场地
©DONG IMAGE
▲机器人测试水池(地下室)
©陈曦工作室
▲办公空间
©DONG IMAGE
▲办公空间廊道
©DONG IMAGE
▲报告厅室内
©DONG IMAGE
在空间打造方面,本项目着重打造多样的室内场景,将趣味性作为整体空间设计的重点,鼓励探索和交流。设计上尽可能地将自然环境元素引入室内,丰富使用者的体验,激发大家探索建筑的兴趣,促进各部门之间的沟通交流。通过营造如同草原般开阔的共享空间,打破传统办公空间的单调,让员工在舒适且富有创意的环境中工作,从而提升工作体验。
▲夜景外观
©陈曦工作室
项目图纸与模型
▲模型
©峪作建筑
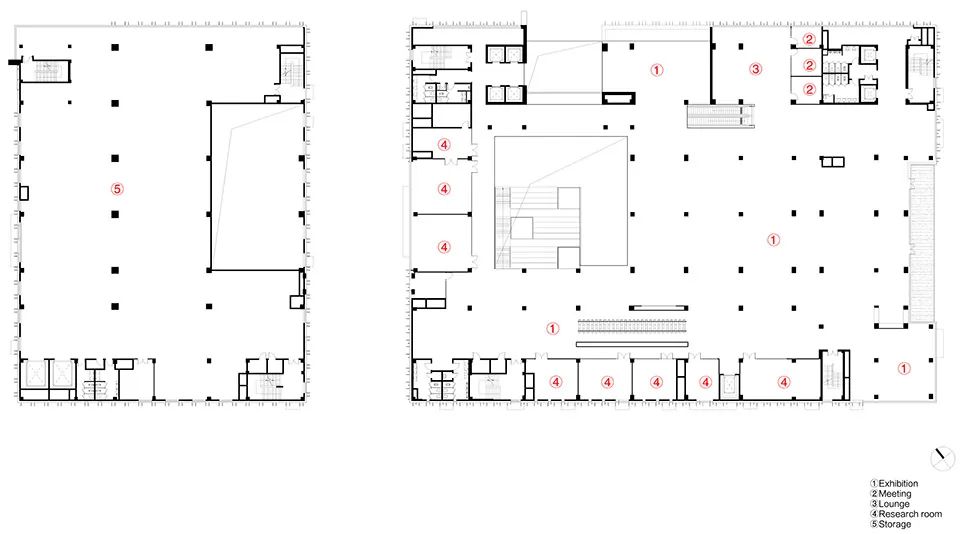
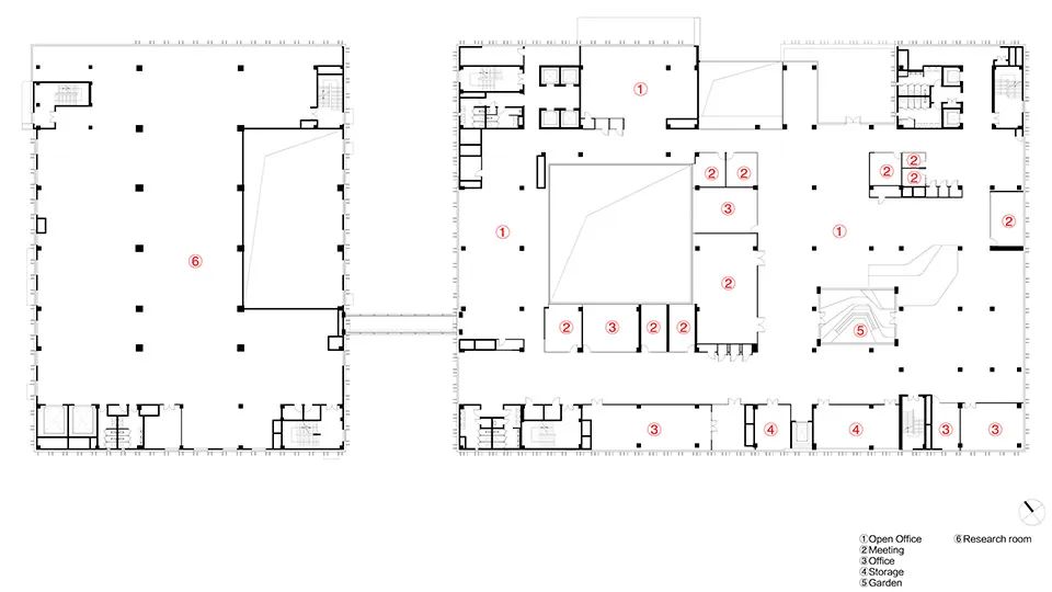
▲一层平面图
©峪作建筑
▲二层平面图
©峪作建筑
▲三层平面图
©峪作建筑
▲四层平面图
©峪作建筑
▲立面图
©峪作建筑
▲剖面图
©峪作建筑
项目名称:申昊科技总部园区
项目类型:建筑+室内
项目地点:浙江杭州
建成状态:建成
设计时间(起迄年月):2021-2022
建设时间(起迄年月):2022-2024
用地面积(平方米):15654
建筑面积(平方米):51969
设计单位: YUZO Design 峪作建筑 (建筑+室内设计) + 浙江华宇工程设计集团(施工图深化)
设计团队:杨瑾婷,周姚熠,马婧妍,陆昀皓,卢玉婷,邵昺磊,吕哲,乐露青,马睿远, 周璐瑶
其他参与单位:
建筑设计:YUZO Design 峪作建筑
室内设计:YUZO Design 峪作建筑
建筑施工图深化设计:浙江华宇工程设计集团
结构、暖通施工图深化设计:浙江华宇工程设计集团
景观施工图深化设计:浙江华宇工程设计集团
施工:浙江耀华建设集团有限公司
业主:杭州申昊科技股份有限公司
摄影师:陈曦工作室
摄影师: DONG建筑影像(DONG Image)
撰文:周姚熠
客服
消息
收藏
下载
最近







































