查看完整案例

收藏

下载
序章:与海洋的对话
当太平洋的风掠过灵山湾,
一座致敬海洋的生命体正在觉醒。
历时八载精雕细琢,
【世茂悦海】
终以"自然雕塑"之姿,
为青岛点亮一座永恒的美学灯塔。
(项目由世茂集团北部区域山东片区开发建设)
J-Studio
以大海为灵感
注入自然精艺的奥秘
赋予这个项目
“精形艺魄”的设计灵魂
现已全面完工
实景呈现 震撼来袭
▲
实景图
【世茂悦海】
位于国家4A级城市阳台风景区
青岛灵山湾第一海水浴场西侧
J-Studio
以"师法自然"为魂
铸就西太平洋岸线美学灯塔
1/ 美学革命:突破钢构的有机生命
🐚
会呼吸的建筑表皮
无数异形幕墙单元,没有重复的弧度
▲
实景图
穿孔铝板"气泡矩阵"随光线变幻
▲
实景图
晨昏时分投射出波光粼粼的光影剧场
▲
实景图
🌌
凝固的海浪韵律
• 顶层观景台360°环幕视野
▲
实景图
• 螺旋上升的空中连廊如潮汐轨迹
▲
实景图
2/ 自然启示录:建筑与海洋的基因共鸣
贝壳的数学之美
:主塔180m的螺旋上升曲线,精确复现黄金分割在鹦鹉螺壳中的生长逻辑
【世茂悦海】
因其独特的仿生贝壳造型
其幕墙节点数量是一般建筑的数十倍之多
丰富的构造既是功能的需要
亦能体现建筑的精细设计以及技术美感
浪花的凝固瞬间
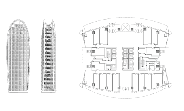
:项目三栋塔楼(180m / 100m / 80m)直面大海,迎接海风、海浪的洗礼并由高到低构成海岸天际线
潮汐的永恒韵律
:
每一处曲线都是海浪的数学解构。
整体造型由三维曲线包裹
在自然导师的指挥下,
近百条曲线奏出了
愉悦流畅且富有韵律的
“悦海乐章”
3/ 共生哲学:
BIM技术赋能的自然演化
生命周期数字化营造,让贝壳仿生肌理
,计算出精准曲线方案,实现传统CAD无法处理的三维双曲壳体
从概念草图到幕墙节点完美呈现
每一幕墙单元划分与室内精装模数同步演化
BIM
模拟确保每个曲面都"生长"在正确位置,
同步验证结构安全性和施工可行性
在BIM设计过程中,
建筑方
案可以突破以往建筑设计存在
的诸多限制,让设计师更敢于创新与突破
终章:与城市共生的永恒之光
这座建筑落成的意义,远不止于增添一座地标。它是一座
连接自然与城市的桥梁
,一个
唤醒美学感知的灯塔
,更是一份
献给未来的礼物
。
此刻,海风正轻抚过它的曲线,阳光在幕墙上流淌出金色的诗行。
▲
效果图
▲
实景图
项目名称:
世茂悦海
建设单位:
世茂集团北部区域山东片区
方案设计:
JSTUDIO 捷仕建筑规划设计(上海)有限公司
JSTUDIO
以设计赋能竞争力
创造更具影响力作品
往期爆款热文↓↓↓
在AI时代看手绘的逆袭,最朴素的方法竟成为设计的秘密武器
【捷仕文旅设计流量密码】—— 设计不一样的乡村文旅!古韵新风、奇幻自然、拙憨萌趣……
【捷仕文旅设计流量密码】—— 打造超越单一酒店影响力的绝美宿集
【捷仕文旅设计流量密码】 —— 圩美磨滩之唯美呈现
【捷仕文旅设计流量密码】 —— 将“童趣”做到极致
客服
消息
收藏
下载
最近









































