查看完整案例

收藏

下载
推开门,仿佛走进一个柔软而高级的梦境。既有诧寂风的宁静自然,又不失轻奢的精致艺术感。
The door opens to a soft, sophisticated dream—where wabi-sabi's quiet nature meets the artful refinement of understated luxury.
01
|
客厅
柔与力
的诗意平衡
整体空间干净柔和,米白色与原木色交织出自然的松弛感。家具
则
选用了饱和度较高的艺术款,瞬间点亮空间,
轻松
展现
轻奢的艺术感
。
The clean, soft space features a soothing blend of beige and wood. This serene backdrop is punctuated by bold, artistic furniture that instantly adds a luxurious pop.
特别值得一提的是,空间中
通过大量
弧线元素
的
运用,来弱化棱角的锋利感
,
——从
圆弧形的顶面
到墙面,再到软装搭配,每一处曲线都流畅轻柔,赋予家一种
优雅
与浪漫。
Notably, the abundant use of arcs softens the sharp edges. From the curved ceilings and walls to the furnishings, every flowing line adds elegance and romance to the home.
地面材质也暗藏巧思:
客厅
沿用了
卧室
的
木地板,餐厨区则选用易
清洁
打理的岩板材质,两者以一道优雅的弧形拼接。
既划分了功能区,也成为这个家一道不经意的风景。
A clever touch lies in the flooring: the living room continues with wood, contrasting the kitchen's easy-maintenance stone. An elegant curved junction divides the functional areas, creating an unexpected visual feature.
02|餐厨空间
5.4米宽厅,聚餐聊天都自在
厨房以开放式布局与餐厅贯通,形成总开间约
5.4米的宽阔明亮区域。中间布置了一座岛台,备餐、
切水果
、冲泡咖啡都非常方便,也自然成为家庭
互动、朋友聚餐
的核心区,让下厨时光不再孤单。
The open kitchen merges with the dining room into a spacious 5.4-meter zone. A central island simplifies food prep and serves as a social hub, turning meal prep into a social event.
所有柜体都做隐藏式设计,冰箱、蒸烤箱嵌入式处理。
一眼看去,整洁大气,储物能力却一点没少。
Featuring hidden cabinets and built-in appliances, the design achieves a clean, minimalist aesthetic without sacrificing storage space.
03|多功能书房
功能
灵活
多变
,
一室三用
这间房原本可作卧室,但业主更希望公共区域开阔一些。于是
设计师
把它做成可开可合的多功能间:打开是茶室,关上便是书房或独处小天地。
Designed as a flexible room with open/close options, this convertible space serves as a tea room when open and a study or private nook when closed.
两侧墙面做了整面收纳,还
贴心隐
藏了一张折叠床。亲友偶尔留宿,这里秒变客房
——功能与美观,这次不用二选一。
Full-height storage on both walls incorporates a hidden pull-down bed, allowing the room to quickly become an instant guest room without compromising its clean aesthetics.
04|主卧套间
像走进五星酒店般的流畅体验
主卧为女主人量身打造了充沛的收纳系统。除了独立衣帽间外,睡眠区对面特别设计了一整排衣柜,搭配四扇大气柜门,推开后所有衣物一目了然,日常挑选轻松便捷。
The master bedroom features ample custom storage, including a walk-in closet and a full-wall wardrobe with four large doors for effortless visibility and outfit selection.
整个空间
通过
“回字形动线”将睡眠区、衣帽间和主卫顺畅串联。
动线
中岛
背面也做了收纳
,真正将空间利用到极致。
The loop layout integrates the bedroom, closet, and bathroom. Storage on the back of the island exemplifies the design's focus on maximizing utility.
主卫台盆右侧预留了护肤品摆放区域,一切都是刚刚好的体贴。
To the right of the vanity is a built-in space for skincare products—a perfectly placed, considerate detail.
梳妆台被贴心
规划
在衣帽间内,护肤、换衣、化妆,动线流畅又私密。
Positioned inside the walk-in closet, the vanity enables a highly functional and private circuit for grooming and dressing.
05|次卧
飘窗巧变书桌,实用又省地
次卧空间通过巧妙设计实现功能升华。将飘窗
区域改造
为书桌,轻松实现学习与办公功能
,明亮又实用
。
实景镜头中亦可瞥见床头一侧的衣柜与开放的收纳格,整体延续简洁有序的风格,功能与视觉均兼顾得当。
Cleverly designed for maximum utility, this bedroom features a desk built into the bay window, creating a bright workspace. It also includes a wardrobe and open shelving, maintaining a clean and functional aesthetic.
06|阳台
下沉式花池休闲区,在家拥抱自然
阳台也延续了整个家的自然语汇,简洁、温暖
、
足够贴心。
The balcony extends the home's essence: simplicity, warmth, and thoughtful touches.
天空院子最大的亮点,莫过于下沉式花池阳台。
设计师
利用
60公分的高差,打造了一处环抱式沙发座。不论是围炉煮茶、独自小憩,还是与好友闲谈,在这里,时光仿佛都慢了下来。
花箱与绿植点缀景墙,让家里溢满自然气息
——这才是理想中家的松弛感
。
The master stroke of the Sky Courtyard is its sunken balcony. A 60cm level change allows for a built-in wraparound sofa, creating a spot where time stands still—ideal for tea, solitude, or company.
With planters gracing the walls, the space seamlessly integrates nature, achieving that coveted, relaxed feeling of home.
如果你也喜欢这种
自然松弛、
懂
生活的设计
,
欢迎随时约我们聊聊
Project Information
项目信息
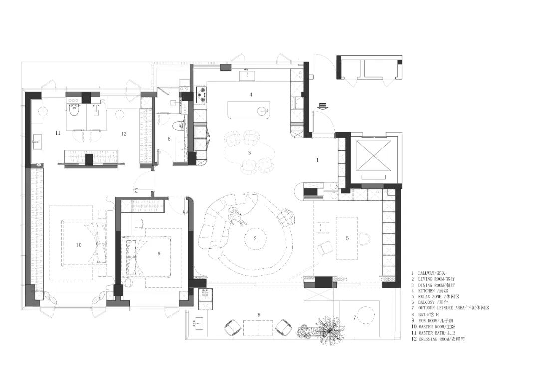
项目名称 | 天空院子
项目地址 | 浙江台州
项目面积 | 195㎡
项目设计 | 叶设计&大树精造
设计团队 |
王聪颖、
许小龙
施工团队 | 大树精造
项目摄影 | 单行线空间摄影—朴言
特别鸣谢 | 曼好家全屋定制、西班牙TAU岩板、
知汇名品地板美学馆、壹等艺国际涂装、中润
科技
—约克
VRF
王聪颖
叶设计设计总监
往期推荐
△四季辰院·心之所栖 目之所及
△四季辰院·解构阔达 自然共语
△江南墅·适从无拘 纯粹向往
△江南墅· 诗意栖居 安然静享
更多内容 / 敬请期待
FIND US
椒江总部
台州市椒江区中心大道远景中心2幢20层
TEL-400 185 5799
临海分部
台州市临海市湖滨壹号东面37-39号
T
EL-18957659915
仙居分部
台州市仙居县福应街道湖滨广场南大门
TEL-15167613287
客服
消息
收藏
下载
最近





























