查看完整案例

收藏

下载
“查看更多项目,申请成为会员,寻找设计师)已经运营了四年多的时间,平台上发布过的项目总额超
6
亿8877万
,项目对接成功率为
19%
。项目周期不一,建筑时间最长,室内和景观次之。目前陆续有一些会员接到的项目建成完工或者设计阶段完毕,我们由衷地为这些合作成功的会员和业主高兴。
期待做得更好,期待助您一臂之力。
本次介绍的项目是
集美勘察设计有限公司
在平台上接到的
瓦顶合院造项目
。
▲爬梯通向“鸽子窝”
© 孙海霆
▲架空卧室空间
© 孙海霆
设计师会员回访
集美勘察设计有限公司
,请设计负责人回答了在对接过程中的一些经历以及使用项目推介平台的体验:
1.
您在项目对接平台一年一共和多少个甲方有相当程度的接触沟通,最终接到了几个项目?
我们有选择性的对接了大概十个左右,最终合作成功的就是这一个。
2.
接到的项目是什么类型,设计费是多少?项目进展到了什么程度?该项目完成后除了设计费还给你带来了哪些你认为有价值的事情?
3.
从网络平台对接项目,在和甲方沟通的过程中是否遇到了一些不一样的问题?是如何克服的?
虽然是网络平台对接,我们尽量还是选择了北京本地的项目进行对接和面对面沟通,也都看过现场,然后进行双向选择的一个过程。
业主回访
1.
请问在决定设计公司之前您与多少家公司进行过比较深入的沟通?
沟通对比了5家公司。
2.
请问选中的设计公司的哪些优点或者特点是您中意的?
他们的作品风格和理念我们还是比较欣赏的,在前期面谈的过程里,设计师的沟通思路和观念比较贴合。
3.
项目展示
瓦顶合院
北京四合院新人居模式的探索
北京的四合院是北京最典型的北方民居形式,经历了八百多年发展,最终形成了四合院严格的空间聚落。而这种严格的空间序列是古代家庭社会等级秩序反应,无论是从几进几跨的王府大院还是单进的寒门小户,正厢分明,中轴对称的布局和建筑的结构形式都已定制了非常明确严格的制式。解放前后,四合院开始向杂院的方向演进,大府宅被拆成了单进院落,甚至在独院内东西厢房和南北房都住进了不同的人家,原来等级森严的阶梯式住宅逐渐变成了“社会性“住宅,没有了等级的结缔,同样生活在大杂院内的不同人家共享同样一个院子和一条胡同,这些公共空间确实拉近了居民的距离,但同样也剥夺了居民间的隐私,甚至很多基本的生活都不能保障。
▲屋顶下的庭院空间
© 孙海霆
无论是供大家族生活的整进院落还是被割裂成小间的大杂院,北京的四合院都已然不符合当代居民的生活状态。就现代人而言,对于邻里关系的需求已经产生了变化。对于曾经大杂院中的居民,每个家庭的私密性比起公共社交属性更被大家需要。共享空间应避免造成被动式的社交造成住户负担。项目是业主和设计师一道对北京四合院新的居住模式的探讨。虽然项目面积不大,但业主希望项目仍然有能力同时承载自己和朋友们同时居住,甚至多余的房间还可以对外长期出租。如同老友记那样的“群居”生活,需要公共的客厅空间,大家可以一起活动用餐,但又有自己的生活单元。
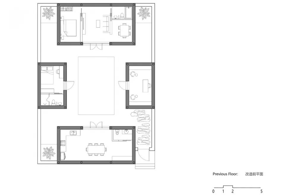
▲改造前庭院状态
待改造建筑是一套标准的一进的四合院,正房,倒座房位于南北两边,东西厢房分列两侧。而特别的是院子在早年间封了起来形成了室内空间。坡屋顶上面做了圈梁,然后在上面支起了木桁架用于支撑起阳光板的屋顶, 结构虽然简单,但却把原本室外的庭院变成了室内空间。高窗和半透明的阳光板同时保证了通风和采光。虽然这一举动完全改变了经典四合院的空间结构但却为改造创造了更多的空间可能。
▲建筑场地总图
© 集美建筑
项目位于天桥储子营胡同,出于对整体规划和周围邻里的尊重,建筑基本属于原拆原建并且保留了之前的高度。项目在原址上的翻建,设计最大限度的保留了四合院原有的布局和建筑形式,整个建筑拥有让人难以忽视的亲近感,带有可识别的城市与建筑的历史信息。同时又营造出了新的空间体验。
▲建筑山墙面室内外空间关系
© 孙海霆
通过置入的结构和屋顶,设计模糊了原有的庭院、室内和室外之间的边界,新营造的庭院与室内空间相融合,为室内带来了自然景观和充足的空气和自然光线。
▲建筑入口玄关空间
© 孙海霆
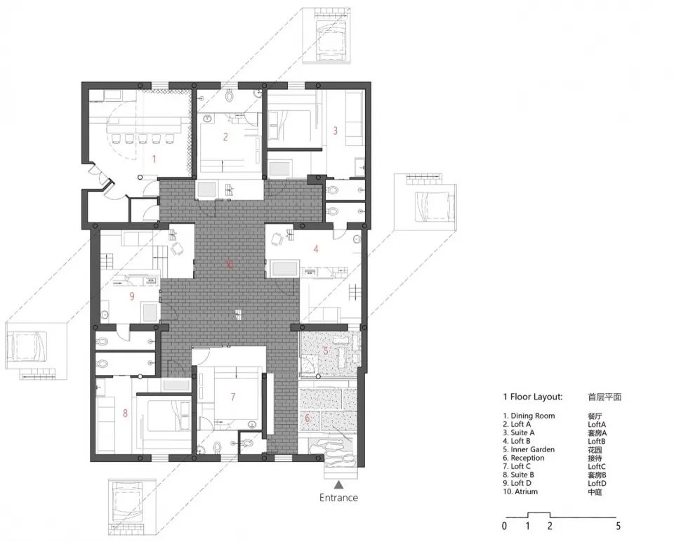
设计目标希望在仅仅二百平米的四合院内完成入口玄关、餐厅和6个独立居住单元。
▲首层轴侧图
© 集美建筑
项目沿用东南侧入口位置,形成组团的玄关空间。四面朝向均有生活单元分布,每一个跃层的户型都带有一个“鸽子窝”的独立空间。
▲“鸽子窝”层轴测图
© 集美建筑
▲屋顶层轴侧图
© 集美建筑
在相对局促的空间内把空间再次划分以满足不同功能需求,每个区域也不显得局促。南北房和东西厢房同样沿用了传统四合院砖木混合四梁八柱的建筑结构形式,而新植入的空间区域则采用钢结构和混凝土等现代结构形式。在原房屋上改造的部分保留原始结构,新建的空间采用现代结构。
▲新植入结构和现有建筑关系
© 孙海霆
这是新老建筑的共存,不同的时代,不同的结构被用来满足人们不同的需求。让居住者在享有现代居住环境的同时更能近距离的,解剖性的感受体验四合院建筑传统的构造形式。
▲新建屋顶之下
© 杨圣晨
天井向上看去,翻转的窗户好像好像不知去向的通道,阳光透过窗户的形状打在木板上,增加了很多趣味。
北京四合院中的庭院本身就是北方民居对自然气候的应对,然而封闭的院落如何还能延续这一关系也是建筑师要考虑的问题。项目位于二环内,城市空间拥挤,在地面空间很难与自然发生联系。随着城市的发展,城市空间被挤压,属于北京记忆的各种空间记忆也被压榨。成群结队盘旋在楼宇间的鸽队和鸽哨声也逐渐变成了人们的回忆。从小听鸽哨长大的建筑师对盘旋在城市上的鸽群有着特殊的情感,然而消失了多年的记忆在一次场地勘察时又被唤醒。储子营胡同平房屋顶上随处可见的鸽子房给出了答案。既然地面空间被挤压,我们便让空间突破屋顶的束缚。
翻转窗增加了人们的互动,形成了丰富的光影效果。窗户翻转成不同的角度,带给天井空间的光斑形状是不同的。
▲储子营胡同的鸽子窝 & 设计演化剖面
© 集美建筑
设计将原本的庭院空间分割并架起,从屋檐长出了“鸽子窝”,冲出了原有的屋顶,架设在这片“瓦海”之上的新空间是完全摆脱掉社会属性,属于个人的对话自然的独立空间。
▲通过爬梯能直接从房间进入到自己的“鸽子窝”中
© 孙海霆
推开“天窗”,像是爬到了房子的屋顶,但却仍然在室内。原有建筑瓦顶屋面有一部分也延伸到了室内。
▲“鸽子窝”
© 杨圣晨
北京的传统四合院建筑布局虽然受等级森严的空间秩序影响,但在四合院的屋顶上却是一片完全不一样的天地。像是久久憋住的一口气突然呼吸到了自由的空气,越过屋顶你会发现包围你的不再是墙砖灰瓦而是葱葱的古树,北京的高楼都被推到了远处二环之外,连成片的屋顶起伏的屋顶构了瓦片的海浪,让人难得能有机会享受这没有高楼遮挡的天空。
▲在不同标高上的“鸽子窝”
© 孙海霆
▲瓦上的房间
© 孙海霆
屋顶瓦上的空间就像是《邪不压正》中李天然和关巧红碰面的地方,北京四合院的屋顶是这城墙内少有的自由,浪漫,能放空一切的场所。于是这里成了这片胡同离天最近的地方,阳光空气水和胡同中的古树都比以往来的更近更直接。整个架空空间就像是吸收阳光的容器,阳光被吸收进来,经过反射、柔化、扩散到整个房子。
▲开窗方式
© 孙海霆
翻转窗增加了人们的互动,形成了丰富的光影效果。窗户翻转成不同的角度,带给天井空间的光斑形状是不同的。
▲“鸽子窝”空间和地面层的视线
© 孙海霆
被支撑起来的空间像是漂浮于屋檐之上,为庭院带来了有组织的阳光。在不同标高上的空间在保证私密的同时空间上也同样连贯,人们可以产生视线交流,这既增加了温馨感,空间也变得更连通了。
▲“鸽子窝”结构的嵌入
© 孙海霆
新建的“鸽子窝”用纯粹的几何形体架于屋顶。与原有的屋顶在视觉上形成了形体的穿插,青砖山墙及瓦当被包裹进室内。屋顶的采光玻璃面加上了半透遮光帘,将日光过滤成更加柔和的光线。这一系列的处理,将室内与室外空间的模糊,现代与传统建筑的对比与相同,明快与温馨氛围的营造,新与旧的关系变得暧昧。悬浮的“鸽子窝”由钢结构搭建,从结构上与砖木结构的建筑主体脱开。清晰的结构关系让原有的木结构也得以暴露出来。
▲悬挑结构
© 孙海霆
新合院延续了杂院的群居属性,但设计注重空间公共性和私密性的边界与过度。中央庭院既原四合院院落虽然变成了室内空间,但仍作为各居住单元的公共客厅使用,是各居住者的社交场所。每个住宅单元的客厅空间下沉了一段高度, 不仅让客厅和中庭空间产生了物理分隔,让客厅更加围合私密,又同时为夹层的卧室提供足够层高。卧室空间被架空与客厅之上,是最私密的空间。天窗的设置让空间不至于过于局促。
▲下沉客厅空间
© 肖莹
▲新旧材料的视觉反差
© 孙海霆
家具和柜体的设计都尽量暴露出四合院建筑的传统结构元素。
▲天窗下的“鸽子窝”反射了自然光
© 孙海霆
阳光从意想不到的角度照射进来,也同时形成了丰富的光影效果。
▲悬浮结构
© 孙海霆
餐厅吧台的位置横跨了正方西侧一间和西耳房两个空间。设计将新建的耳房和现状正方通过材料进行了视觉上的区分。白色水磨石和青砖将空间一分为二,黑与白,光滑与粗糙,简单与复杂从高度,肌理、立面材质、空间差异化几个不同的方面产生了对比。
▲新旧空间和材质
© 肖莹
在餐厅墙面我们设计原创了一种青砖墙体的砌筑方式,45度的排列方式让整个墙体更有质感,同时长短砖体的交错自然形成了酒架。
▲青砖墙体砌筑
© 肖莹
在耳房屋顶开设的半圆形天窗自然的引入光线,同时也让山墙和屋顶暴露在视野之下。餐厅作为项目第二个公共空间我们希望通过不同材质的对比表达出改造建筑新老结构和空间的项目迭代与融合。
▲天窗光影
© 孙海霆
这些传统建筑是城市发展的一部分,经过北京的的传统、气候、人文条件、时代政策等多方面因素影响演变成现在的形态。四合院变成了大杂院,对于北京人来说,四合院包含的更多的价值是情感价值和文化价值。在建筑中去寻找到建筑与城市之间的联系,调和新与旧的矛盾,将老建筑再利用使其焕发新的活力,可能是修旧如旧之外的一个思路。
▲改造前建筑平面
© 集美建筑
▲改造后首层平面
© 集美建筑
▲改造后屋顶平面
© 集美建筑
项目名称:瓦顶合院 —— 北京四合院新人居模式的探索
占地面积:290平米
建筑面积:360平米
设计单位:北京集美勘察设计有限公司
项目地点:北京储子营胡同
建成时间:2023年2月
设计团队:杨圣晨,向芯瑶,常江,王筝,张巽,陈汶佳
摄影:孙海霆 肖莹 杨圣晨
客服
消息
收藏
下载
最近







































