查看完整案例

收藏

下载
Life is like a journey
HOME
IS A HAVEN
推开门
奶油色的柔包裹身心
中古物件轻轻叩响记忆
连时光都慢下来
把平凡日子过成散文诗~
CASE / 重庆 · 玖悦兰亭
设计团队 / Design uint
无向空间设计
完工时间 / Design Time
2024年
面积 / Area
80m²
造价 / Price
25万
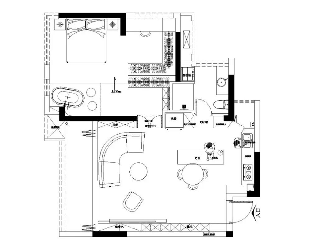
平面 / 结构
PLANAR STRUCTURE
向下滑动查看
设计思路
DESIGN IDEAS
我们想造的家,是能把「松弛感」实体化的容器。
以奶油色为底色,像给空间裹一层会呼吸的软糖,让柔和光晕漫进每个角落,把 “温馨” 二字融进空气里;再往这汪温柔里,撒一把中古「时光碎片」。
实景 / 展示
REAL PHOTOS
客厅
全屋以米白、奶白、浅杏为主色调,墙面带着微微暖调的奶油白,像给空间裹了一层蓬松的云。地面选浅棕原木色,踩上去仿佛踩着午后阳光晒过的旧木板,脚感和视觉都暖乎乎的。
拒绝花里胡哨的色块分割,让温柔感 360° 无死角蔓延~
随手撒点胡桃木 “惊喜碎片” ,棕调木纹往奶油色里一撞,瞬间给空间镶上温暖金边,简单到极致,却藏着 “less is more” 的高级感。
旧时光与温柔色的双向奔赴
厨餐厅
客餐厅拆除多余隔断,空间都融合在一起,把生活里那些 “必须、应该、不得不” 一并推倒。原本被分割得零碎的空间,重新连成一片温柔的场域,阳光能更自由地流淌,风也能无拘无束地穿堂而过。
卧室
把热带雨林搬进卧室,绿叶给奶油色空间添了几分生机。卧室里的下沉式浴缸区,用白砾石、石板路和大型盆栽造了个 “mini 森林浴场”,泡澡时听着树叶沙沙响,仿佛真的在山林里偷闲。
「自然植入」:把森林搬进家
卫生间
卫生间延续整体空间的配色逻辑,像把客厅的温柔 “复刻” 进来。每一寸巧思都藏着小心机,在这儿洗漱、淋浴,感觉连毛孔都在说 “好舒服”,分分钟把疲惫碾成渣。
往 期 精 选 回 顾
Case Review
客服
消息
收藏
下载
最近

































