查看完整案例

收藏

下载
Shenzhen Sany
Design
自然恬静
Natural and quiet
通透
明净
层次
色彩作为一种视觉语言
予以人不同的情感和意识
而软软糯糯的奶油色系
配色温柔
没有冲突的美
充满疗愈身心的力量
Color as a visual language gives people different emotions and consciousness. The soft and soft cream color combination is gentle and has no conflict. The beauty is full of healing power of body and mind.
「01」
舒适
如果说有一种颜色能让人平静下来
那我想一定是原木色了吧
来自自然之物所赋予的温润
包容性很强且随和
干净纯粹的美直击人心
不张扬、不高调 、不言不语
却能慢慢滋润心田
就像是慵懒午后
拿铁加上日光浴的味道
If there is a color that can calm people down, then I think it must be the color of a wood. It comes from the warmth given by nature. It is very inclusive and easy-going, clean and pure beauty that hits people's hearts. It is not ostentatious, not high-profile, and without saying anything, but can slowly nourish the heart. It is like the smell of a lazy afternoon latte and sunbathing.
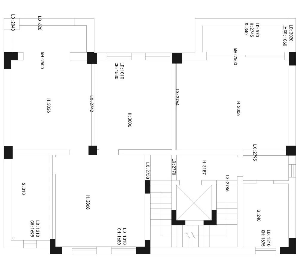
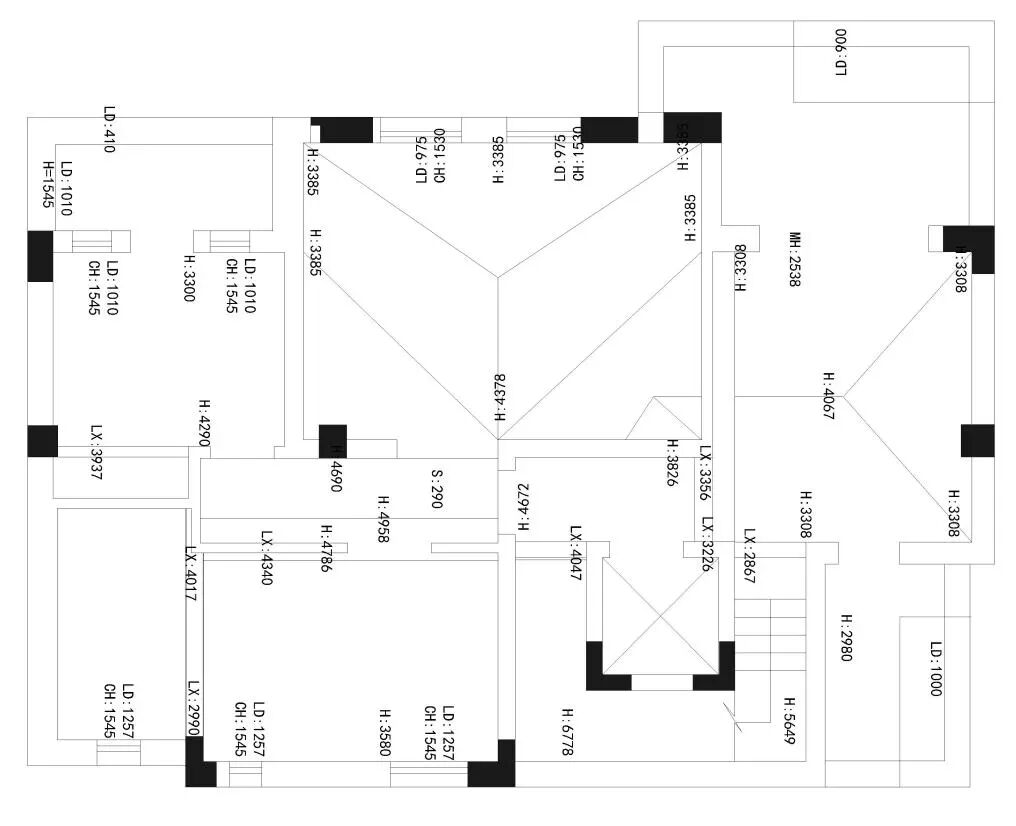
原始结构图&平面布置图
负一层
一层
二层
三层
-PROJECTINFOMATION-
项目信息
项目名称:香龙湾
项目位置:河南洛阳
项目面积:套内约600m²
设计公司:深圳叁一设计机构
主案设计:刘宜伟
Project name: Xianglong Bay Project location: Luoyang, Henan Project area: about 600m² Interior Design Company: Shenzhen Sanyi Design Organization Main Case Design: Liu Yiwei
深圳叁一设计机构 只为少数人服务
专业荣誉认可
:
2024 雅生 室内设计奖
2024-2025 上海国际设计周 致敬东方设计奖
2024-2025 上海国际设计周 新锐设计奖
2024-2025 上海国际设计周 别墅大宅设计奖
2024华为全屋智能设计大赛年度住宅类金奖
LHDA原点奢居设计大奖 2024年度至尊奖
LHDA原点奢居设计大奖 2024年度优胜奖
40UNDER40(河南)当代设计杰出青年(2023-2024)
2023中国大宅设计奖
2023CAMERICH年度优质案例奖
GPR中意设计金质奖·2023年度优胜奖
2023金住奖:(洛阳)十大居住空间设计师
2023中国大宅设计TOP100
2023金住奖-(洛阳)十大居住空间设计师
IS全球智能空间设计奖·2022年度优胜奖
客服
消息
收藏
下载
最近
































