查看完整案例

收藏

下载
沧州天成观澜二期
CANGZHOU TIANCHENG GUANLAN ERQI
沧州,中国
Cangzhou,China
我们应该为简单、美好、朴素的事物而工作,使其与人类和谐相处,有机地融入我们的生活。
——
阿尔瓦·
阿尔托
(
Alvar Aalto
)
几年来目睹之地产怪现象
设计之前
Before
一个行业的兴衰,其内在原因常常不是单向度的,曾经盛行一时的主流,却往往沦落为失败的主因。最近几年,
规模
导向的部分地产巨头危机频发,销售黯淡,他们称雄江湖20年的武功,纷纷失灵。
反观之下,一些小而美的房企,如
沧州天成
和商丘金沙等,却
频
频创造
现象级
的
奇迹
:
50%
以上
的市场占有率,比竞品贵
30%
的售价,开盘日光......
冰火两重天之下的反思
设计缘起
Origin
令人深思的首先是:这些高光,并没有出现在一直以精细领先的南方,而是
突现
在之前并不领先的中原腹地。
其次这些企业,并没有贩卖什么新奇故事和皮囊,他们只是默默地在埋
头苦干,以一种已经
罕见的
温情和敬意
,以一种
近乎
偏执的
品质信仰
。
他们的胜利,不啻于一针强心剂,似乎标志一个新时代的开始:该回归本质了。
深度洞察
“
Deep Insight
”
_
那么
住宅该往何处走?
到底要为客户创造什么?
是传统的视觉主导一切的霸权式空间?
还是强调身体经验和精神感知的活力空间?
经典建筑学的考虑住宅客户真的能感知得到吗?
规划 / 不从布局开始的设计
设计解读 Diagram
不知何时,住宅规划成了平面设计的竞技场,宏大叙事的规划总图,成了夸耀
“
好社区
”
的道具
,可住进去才发现:花园够大但不空旷,通风够顺但不吃沙,交通够快但不危险
......
这些才是生活的关键,但远远不是全部。
在观澜二期规划中,我们摈弃了二维平面构成的传统做法,把目光直接投向三维的空间本质,用光廊、风廊等减法元素去切割,让每个“虚空(场所)”令人愉悦,让每个“实体(建筑)”都被最好的光线、空气、绿意所包裹。
外部空间光谱
“
Spectrum of External Space
”
_
日照
谱线
在沧州这样一个典型的夏热冬冷地区,
我们首先想做到的,是
光线充足、但很柔和、均匀分布
,我们不再会为了总图
好看做规划,也不再会为了故事做规划。
实际上人真走在里面觉得舒服的社区,往往总图并不好看。
针对北方阳光入射角度小,
我们在东西地块,分别规划了8条光走廊,宽度20-35米,主要通过方位角导入光线,而不是高度角。这样
每一个庭院,都
能达到我们认知中
最佳的明暗状态:
一半在阳光之下,一半在阴影之下。
通风谱线
北方人
都懂
——
冬天暖气烘得嗓子疼,夏天暴雨前闷得像蒸笼。
别以为北方只靠暖气过冬,
自然通风需求不输南方。我们总图规划了6条风走廊,确保了
夏季东南风的畅通,在东西向尤其是角部,规划了一些低层建筑,冬季阻挡西北风,
春季减少沙尘侵扰,
夏季巧妙地不影响东南风畅行。
空间光谱
沧州正处在一个由
传统的熟人社会到半熟人社会的过渡之中,
我们认为必须留意到
他们对传统的依恋:喜好聚合、方整,忌讳零碎,忌讳
冲角等。
之前在北方,经常由于日照难度,造成巨大空旷的消极空间。
我们认为必须留意到:不要“过度打开”空间,必须保持“
D/H的最佳比例
”。
我们
用8
条光走廊,切割形成12个庭院,从大到小依次为:
加法形成的
向心序列
空间,减法形成的
聚合
空间,半围合形成的
阴角空间,
檐下领域形成
守望空间。均为“
天朗气清、惠风和畅
”的积极空间。
大与小
“
Large and Small
”
_
大地块我们忍住了,没有
夸大南北向间距,保持室内外1/10的空间模数,
做足东西向空间
设计
,
用若干条150米长大草坪,混合了多样性活动界面,略带随意地在
南北
向多次连接
,希望激发更多的偶发性活动。
小地块则曲折尽致,深得苏州园林的
意趣,形成更有松
驰感
的各种不确定
空间场景
。
巴塞罗那角
“
Barcelona Corner
”
_
在街道部分,我们不想重复现代主义饼干式切割的无趣空间,转过头向古典,吸取了巴塞罗那八边形街区的意趣,巧妙地采用了
45
度倒角设计
,以
“
小改动
”
实现
“
大优化
”
,
既美化街角、拓宽空间,助力车辆顺畅转弯与人流快速疏散,
又可兼作临时停车位有效缓解交通压力。
停车之鱼与熊掌
“
A Choice Between Two Desirables
”
_
非机动车轨迹多变
,通行混杂,已经变成了小区安全的更大威胁,为确保人车绝对分流,我们在山墙面和距离北面15米的区域,
增设
二道围墙
,
用1.8米的绿篱,背后隐藏铁丝网的做法,做到鱼和熊掌兼得:
停车便利+
完全的人行分流。
建筑 /自然主义与自然
设计解读
Diagram
不知何时,住宅建筑
成了表皮设计的竞技场,惊艳朋友圈成了检验“好房子”的标尺,
可住久了才发现:光线够亮但不晃眼,
外观够靓
但不会脏,
住的够久但不漏水,......这些才是日常生活的关键,但远远不是全部。
自然主义建筑
“
Naturalist Architecture
”
_
即使作为一个平面相同的建筑类型,是否可以尽量从人的本质需求出发做设计?
譬如是否可以由内而外去推敲每个窗户
,应该怎么开室内最舒服,而不是光为了“
公建化表皮
”去堆砌?
譬如是否可以尽量从“坚固实用”出发,去推敲每种材料,该怎么收边怎么交接,而不是光为了“文化符号”去表演?
肌肤之目
“
Eyes of the Skin
”
_
什么样的光线对人类最友好?
我们经常看到:不分青红皂白的玻璃幕墙和简单粗暴的落地
大
窗,室内迫于强烈的眩光,
拉着帘子开着灯
;室外则迫于强烈的光污染,眯着眼睛走路。
然而时至今日,即使普通住宅,我们也认为务必做到在室内各处,
打造能让人站在光线旁的场所。
弧度研究
“
Study on Curvature
”
_
什么样的弧度让人感觉最舒服呢?
客厅作为公共活动核心,60°-90°的弧度既能覆盖最舒适的水平视野范围,又不会导致空间重心分离;卧室是私密性空间,
30°-60°的
小弧度设计,通过自然的包裹感,获得人对“休憩安全感”的心理需求;书房是阅读工作的专注型空间,
50°-75° 的中等弧度能
平衡
“
视觉聚焦
”与“
间歇放松
”
的双重需求。
因此在
南向卧室,我们将飘窗设计成为优秀的光线过滤器,窗台抬高至600mm,进深加深至800mm,让光线反射扩散之后变成温和的间接光线;在客厅,则用角部微弧的落地大窗,形成有向心力的光线,通过1800mm的阳台折射之后,温和地照亮住宅的深处。而在都是间接光的北侧,则干脆都做直接对
外的平窗。
色彩问答
“
Color Q&A
”
_
当冷色
调在“伪
公建住宅
”
上肆意蔓延之时;或者土豪金、香槟色,被土豪们满墙
“
贴金
”之时
,我们依然希望能跳出这两种极端,用泛暖的
珍珠母贝白和局部勾勒的鎏光金来调和玻璃与金属的冷硬感,以达到一种自然雅致的状态。
城市性格与建筑语言
“
Character and Language
”
_
运河和功夫孕育了沧州刚柔并济的城市性格。在高层的建筑语言中,
我们尝试用
硬朗的勾边线条和柔和的弧形倒角回应这种性格;而在低层合院则更多使用延伸感的建筑语言,
以水平向延伸的线条上下勾连,一气呵成,
用外在的“动”
与合院内在的“静”做对比,回应这座运河和尚武之城一柔一刚的城市性格。
实施/坚固、实用、美观
材料解读 Diagram
维特鲁威提出的“坚固实用”被忽视很久了,所以在各种“
伪豪宅
”上,“
平替
”材料大行其道,譬如过度模仿石材的涂料类,占据了三四线城市大约70%的外立面,开裂、漏水等问题一直困扰着大家。
相对涂料类一般
10
年的使用寿命,我们更倾向
面砖,耐脏防水,耐久性强,使用寿命可达
30
年以上,尤其适合沧州雨水集中、风沙大的气候;此外,面砖自然细腻的肌
理
,远非平替材料
一张虚假的表皮
可比。
三级线脚体系
“
Three - level cornice
”
_
应对
EPS
线脚的脱落问题,我们设计了一个三级线脚体系方案。阳台(一级线脚):线脚用铝板替代,安装更加牢固;飘窗(二级线脚):取消可踏面
EPS
线脚,贴深灰色面砖丰富层次。北面平窗(三级线脚):上下线脚用深灰色面砖代替,利用面砖的竖贴和颜色做变化。
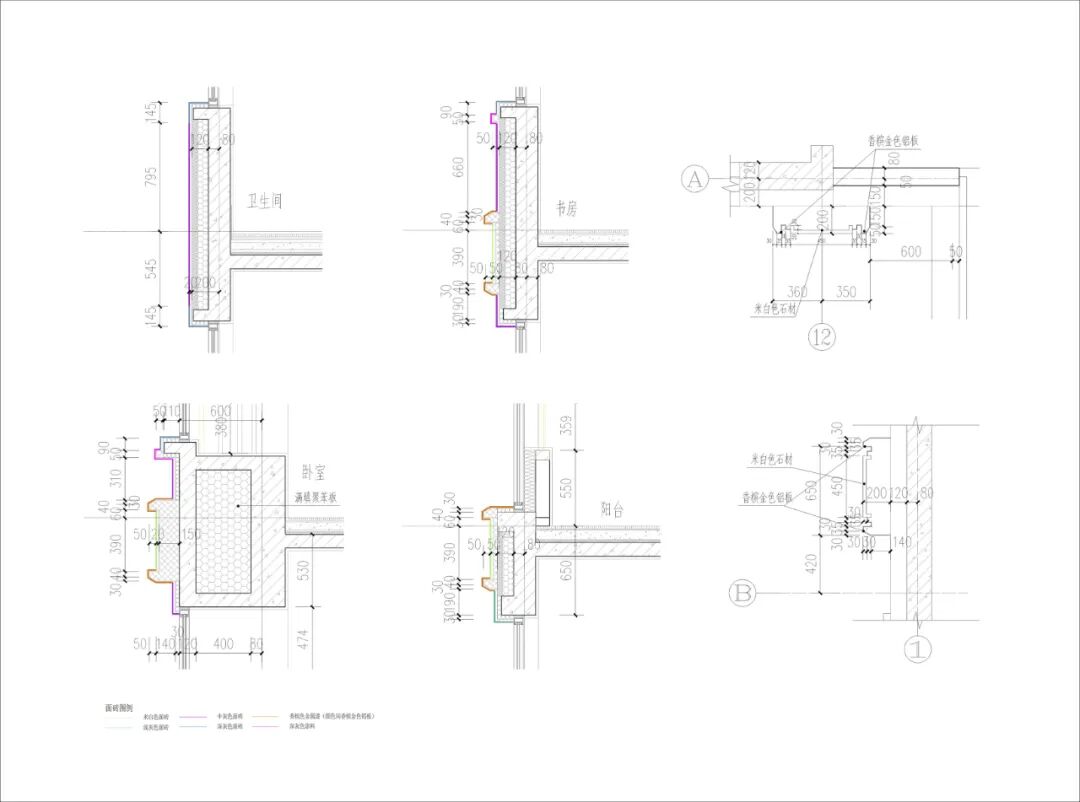
◎高层
大样图
一次质感的形成
“
Formation of
primary
”
_
我们选用的是哑光无釉炻瓷通体砖,开始想让其表面经过
3D
喷墨打印及喷砂处理,做到石材质感,但多次试验之后,均感觉纹理夸张。
后来经过超
20
次的模花出样,最终选择了小凹凸面的纹理,
质感丰富,肌理自然。此外,我们又在表面加了一层薄薄的釉面层,增加防水和耐污性能。
二次质感的形成
“
Formation of secondary
”
_
在常用的
45x145mm
、
45x195mm
、
60x240mm
等面砖规格里,最终选用了
45x145mm
的小规格。这尺寸带着日本人看重的手工温度,不像大尺寸工业化材料的冰冷感;铺贴后视觉上更显细腻精致,而且小规格面砖适配施工模具,能更好地实现外立面上的弧线造型。
◎
面砖材料样板
面砖规格和分缝
“
Specification and jointing
”
_
面砖以
12
皮砖组成一个施工模块(单皮尺寸:
145mm×45mm
),单皮之间缝宽
5mm
;为减少整砖切割,我们反复推敲模块的排列方式和分割尺寸;在十几次的方案比选后,最终将竖向分缝定在
10mm;
层间分缝定在
20mm
,强化腰线层次。
◎
面砖分缝图
面砖的色彩梯度
“
Color gradient
”
_
如果要让一个人的眼部显得炯炯有神,除了一双明亮的眼睛之外,还得有精致的眉毛来勾勒,弯曲的睫毛来烘托,此外,还需要柔和的眼影来过渡。
面砖的和谐梯度亦是同理。
◎
面砖材料样板
在精心挑选的4种面砖中:最亮的米白色占50%,铺出温润的大面;最暗的深灰色占25%,勾勒力度;
中灰色占15%,烘托质感;最浅的浅灰色占10%,好比眼影,柔和过渡。
此后我们投入大量时间,耐心推敲灰度的梯度搭配。经过10余次
多时段实地试验
,
9度
梯度差
的方案整体和谐,
过渡自然。
不仅足以应对强光下的视觉混淆,
弱光里对比也足够
。
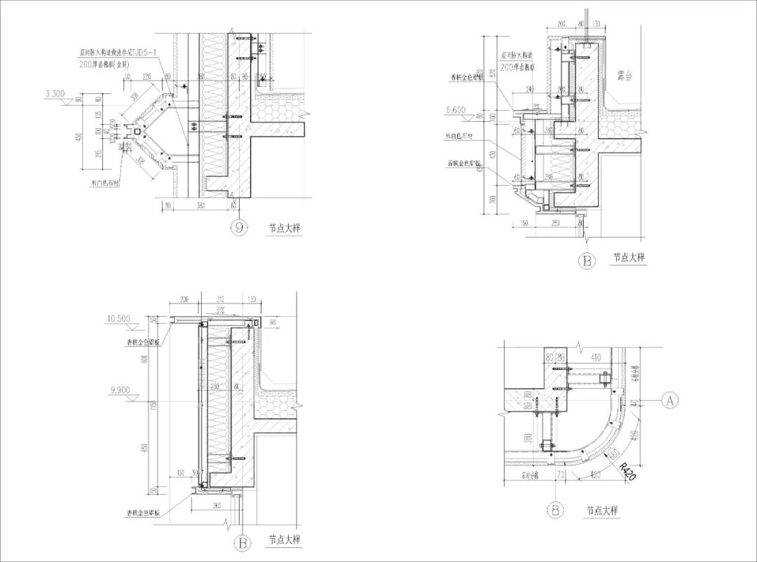
◎合院大样
图
项目档案
项目名称:
沧州天成观澜二期
建设单位:沧州天成房地产开发有限公司
设计单位:上海睿风建筑设计咨询有限公司
项目地点:河北 沧州
建筑面积:
228541.34
㎡
景观设计:
DDON 笛东设计
幕墙设计:
河北润华工程建筑设计有限公司
施工图设计:
河北晶程建筑设计有限公司
建筑摄影:
何炼
建筑摄影工作室
免责声明:
客服
消息
收藏
下载
最近







































