查看完整案例

收藏

下载
In Istanbul, BOStudio has transformed a 165㎡ space into Parlak Dental Clinic—where aesthetics and functionality blend seamlessly. The design rejects the cold sterility often associated with medical spaces, instead using rounded walls and continuous lighting to craft a fluid, calming sequence from entrance to treatment rooms. These soft curves dissolve rigid boundaries, guiding visitors intuitively along the main axis, while every detail works to ease dental anxiety, turning a routine visit into a more relaxed experience.
在伊斯坦布尔,BOStudio 事务所将一处 165 平方米的空间改造为 Parlak 牙科诊所 —— 这里,美学与功能性实现了无缝融合。设计摒弃了医疗空间常有的冰冷刻板,转而运用圆润墙面与连贯照明,打造出从入口到治疗室的流畅、舒缓动线。这些柔和的曲线消解了生硬界限,引导访客沿主轴线自然穿行,而每一处细节都在努力缓解看牙焦虑,让一次常规诊疗变成更为放松的体验。
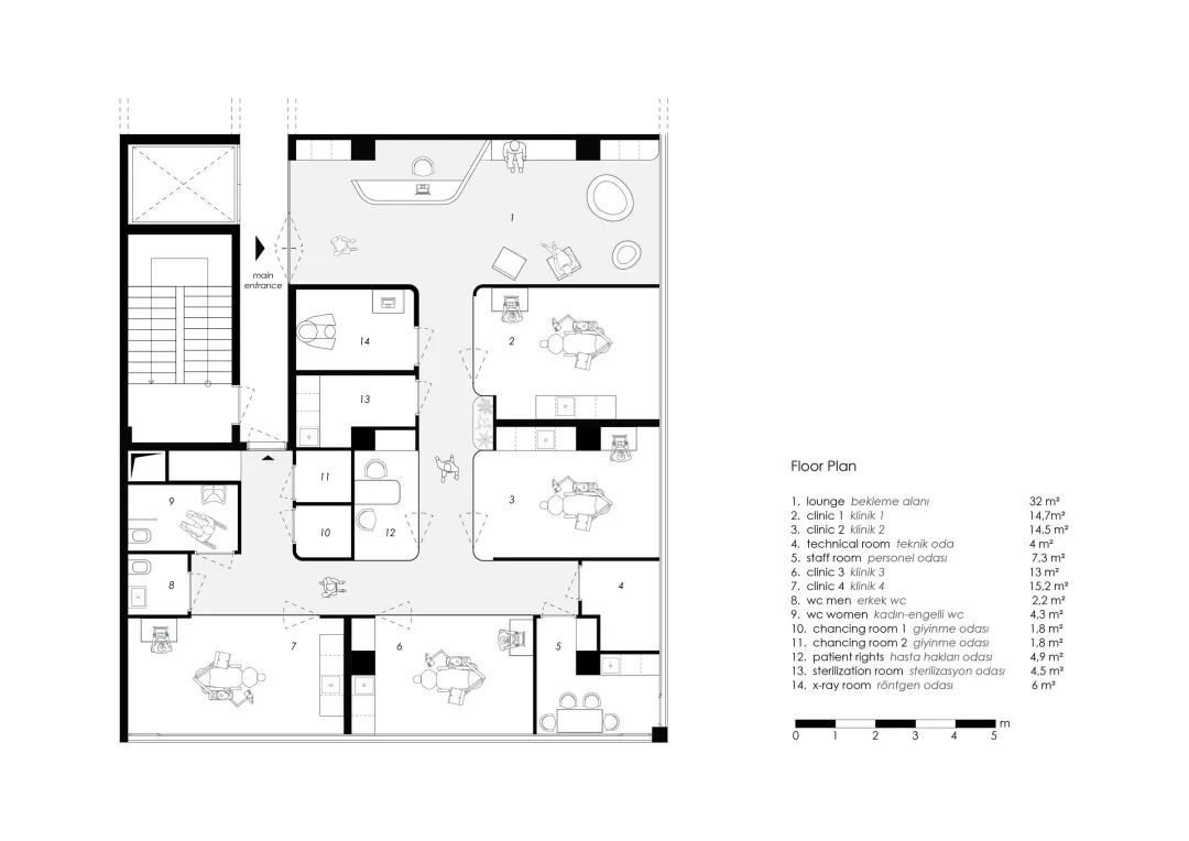
The clinic’s layout balances efficiency with comfort: treatment rooms line the façade, soaking up natural light and fresh air to create a bright, open atmosphere for patients. On the opposite side, sterilization, radiology, and staff areas are tucked away—ensuring privacy for both patients and medical work, while keeping operations smooth. This separation isn’t just practical; it’s empathetic: patients don’t encounter medical equipment or staff-only spaces, reducing feelings of unease and keeping focus on care.
诊所布局在效率与舒适度间找到了平衡:治疗室沿外立面排布,充分接纳自然光与新鲜空气,为患者营造出明亮开阔的环境。另一侧则巧妙安置了消毒室、放射科与员工区域 —— 既保障了患者隐私与医疗工作的私密性,也让诊疗流程更顺畅。这种功能分区不仅实用,更饱含同理心:患者不会撞见医疗设备或员工专属空间,减少了不安感,让注意力能集中在诊疗本身。
Lighting here is more than a functional tool—it’s an architectural language that shapes the space. Concealed lights and custom ceiling elements weave together to guide circulation: follow the soft glow, and you’ll move naturally from reception to waiting area to treatment room. White walls and glossy lacquered doors enhance a sense of sterility and quality, but the warm light keeps the space from feeling cold. It’s a thoughtful balance—bright enough for medical precision, gentle enough to soothe nervous patients.
此处的照明远不止是功能性工具,更成为塑造空间的建筑语言。隐藏式灯具与定制天花板元素相互配合,引导着动线:循着柔和的光线,你会自然地从接待区过渡到等候区,再进入治疗室。白色墙面与亮面烤漆门强化了洁净感与品质感,而温暖的光线则避免了空间显得冰冷。这种巧妙平衡 —— 亮度足以满足医疗操作的精准需求,柔和度又能安抚紧张的患者 —— 尽显设计巧思。
Furniture design adds to the clinic’s light, elegant vibe. Every piece—from reception desks to waiting chairs—appears slightly detached from the floor and walls, creating a sense of lightness that softens the medical setting. Sit in the waiting area, and you’ll notice the chair’s gentle curves and supportive cushioning, small comforts that make the wait feel shorter. These details don’t just look good; they work to put patients at ease, turning a clinical space into one that feels welcoming.
家具设计进一步提升了诊所轻盈雅致的氛围。每一件家具 —— 从接待台到等候椅 —— 都看似轻微 “悬浮” 于地面与墙面之上,营造出的轻盈感柔化了医疗场所的严肃感。坐在等候区,你会留意到椅子柔和的曲线与有支撑性的软垫,这些细微的舒适感能让等待时光显得更短。这些细节不仅美观,更切实地让患者放松下来,将一处诊疗空间转化为充满亲和力的场所。
Green tones are the clinic’s emotional anchor, defining its visual hierarchy and calming atmosphere. Different shades of green appear in waiting areas and along circulation paths—soft sage by the reception, deeper emerald near treatment rooms—each hue tailored to the space’s mood. Green evokes nature and tranquility, a subtle reminder of growth and healing that eases anxiety. It’s a quiet yet powerful choice: amid the white and light, the green feels like a breath of fresh air, making Parlak Dental Clinic not just a place for treatment, but a haven for comfort.
绿色调是诊所的情感核心,既确立了视觉层次,也营造了舒缓氛围。不同深浅的绿色出现在等候区与动线沿途 —— 接待区的柔和鼠尾草绿,治疗室附近的深祖母绿 —— 每种色调都与空间氛围相契合。绿色象征着自然与宁静,含蓄地传递出成长与治愈的意象,缓解着焦虑情绪。这是一个低调却有力的设计选择:在白色与浅色调的衬托下,绿色宛如一缕清新气息,让 Parlak 牙科诊所不仅是诊疗之地,更成为一处舒适的庇护所。
△平面图
编辑:
夏边际
撰文:豆宝宝
校改:吴一仁
编排:布忠耀
本文素材图片版权来源于网络,
如有侵权,请联系后台,我们会第一时间删除。
建筑 | 室
内 | 设计 | 艺
术
商务联络
客服
消息
收藏
下载
最近



















