查看完整案例

收藏

下载
Restructuring and Vertical Extension on Rue du Docteur Finlay: How to Combine Parisian Heritage with Lightweight Construction to Revitalize an Office Building.
在杜克特·芬莱街,一座三段式屋顶如同太阳升起时缓缓抬起,逐渐扭转,向着相邻屋顶对齐。它被置于两座屋脊之间的空隙中,项目自定义为一个宽阔的玻璃结构,重新诠释了传统的巴黎屋顶。
On Docteur Finlay street, a tripartite roof lifts up as the sun rises, and gradually twists so as to align with the neighboring roofs. Inserted in an empty space caught between two roof gables, the project defines itself as a wide glass structure, reinterpreting the traditional Parisian roof.
▼项目俯瞰,a view from bird view © Yohann Fontaine
▼建筑立面,building facade © Yohann Fontaine
之前露台的封闭需要拆除原立面上部的墙体,以为首个办公空间腾出空间,并在悬挑的夹层楼上增设第二层。在上半部分带有丝网印刷的玻璃屋顶下,两个办公楼层与街对面的住宅单位形成了对话关系,保持了因距离而不显突兀的和谐。
▼设计草图,sketch © Yohann Fontaine
▼改造草图,sketch © Yohann Fontaine
The closure of the previous terraces requires the dismantling of the former facade’s upper wall, in order to provide room for the first office space and to insert a second level on a cantilevered mezzanine floor. Under the glass roof, of which the upper part is silk-screened, the two office floors are brought into dialogue with the residential units across the street, maintaining a non-intrusive relationship given the distance separating them.
▼从外立面看新增的办公楼层,new office floors see from the building’s exterior façade © Yohann Fontaine
十九根胶合层压木材构成了三坡屋顶,定义了该建筑的体量。屋顶的上坡部分在整个跨度内保持不变,而两个下坡的倾斜度逐渐变化。框架采用西蒙尼Résix®方法组装,预制化设计将现场施工时间缩短至仅两天。
Nineteen glue-laminated timber elements form the three-sloped roof which defines the volume. The upper slope stays unchanged along the entire span of the roof, while the two lower slopes progressively alter in inclination. The framework is assembled in accordance to the Simonin Résix® method, and its prefabrication allowed to reduce the on-site construction time down to two days.
▼十九根胶合层压木材构成了三坡屋顶,three-sloped roof © Yohann Fontaine
该项目展示了Atelier Quinze-Vingts致力于寻找最相关建筑解决方案的决心,同时优先考虑快速执行和资源节约。建于1970年代的建筑扩建与所有楼层的热能和能源改造同步进行。该项目正在城市街区的核心区域展开,计划建设一个新的植被立面:增加了四层木框架结构,适度、精准并留有空间地扩展现有结构。该项目发起了三重转型:彻底的石棉清除、深度能源改造和结构性升高,所有工作都在已占用的场地上进行。
The project demonstrates Atelier Quinze-Vingts’s commitment to finding the most relevant architectural solution while giving priority to a rapid execution and the economy of all resources. The extension of the building, built in the 1970s, goes hand in hand with the thermal and energetic renovation of all its levels. The operation is being pursued in the heart of the block where an additional planted elevation is to be built: four timber-framed levels have been added, extending the existing structure with restraint, precision, and breathing space. The project initiates a threefold transformation: complete asbestos removal, deep energy renovation, and structural elevation, all carried out in an occupied site.
▼简洁的工作空间,minimalist design workspace © Yohann Fontaine
▼室内的光影互动,light & shadow effects © Yohann Fontaine
这座升高的建筑立足于一个预先存在的结构网格(规律且合理),并将其节奏与完全预制的模块化系统相结合。每一层由木框架单元构成,这些单元在工厂生产后仅用几天时间即可安装完成:高效、节材、静音的施工舞蹈。此结构严谨符合巴黎消防队的严格标准:结构、外立面和内部完全采用裸露木材,局部以隐蔽的钢筋加强,确保支撑同时不破坏整体和谐。
The elevation rests upon a pre-existing structural grid (regular and rational) whose rhythm it adopts to anchor a fully prefabricated modular system. Each level is made up of timber-frame units, manufactured off-site and installed in just a few days: a choreography of efficiency, material economy, and silent construction. This structural rigour meets the strict standards of the Paris Fire Brigade: structure, façades, and interiors are entirely in exposed wood, punctuated here and there by discreet steel reinforcements that ensure bracing without disturbing the overall harmony.
▼完全采用裸露木材,entirely in exposed wood © Yohann Fontaine
▼玻璃窗内侧室内空间,The soace beneath the glass roof © Yohann Fontaine
与现有结构的对话不是一个姿态,而是显而易见的选择。新立面延续了原有构图的逻辑:木材的使用带来了温暖、纹理和逐渐变化的特性。项目并非增加,而是延续。项目的屋顶则展现了绿化和可达性:一个悬浮的景观——既是一个低调的瞭望台,又是一个热储蓄池。
Dialogue with the existing is not a gesture, but an obvious choice. The new façade continues the logic of the original composition: the use of wood brings warmth, texture, and an evolving character. The project does not add — it extends. Crowning it all, a green and accessible rooftop unfolds a suspended landscape — a discreet belvedere and a thermal reservoir alike.
▼建筑立面细节, exterior facade details © Yohann Fontaine
这座升高的建筑也是一种宣言:体现了富有责任感、丰盈且有度的建筑理念。项目获得了HQE和BREEAM认证,尽可能使用生物基材料,现场清洁且碳足迹可控——它扎根于现实,同时通过对手段优雅性的坚定信念而充满活力。它表达了一个深刻的信念:建筑不能再与生态智慧和可逆性逻辑分离。
This elevation is also a manifesto: that of a committed, fertile, and measured architecture. HQE and BREEAM certifications, biobased materials wherever possible, a clean site and controlled carbon footprint — the project is grounded in the real, yet animated by unwavering faith in the elegance of means. It expresses a deep conviction: that building can no longer be separated from ecological intelligence and the logic of reversibility.
▼夜览, exterior facade details © Yohann Fontaine
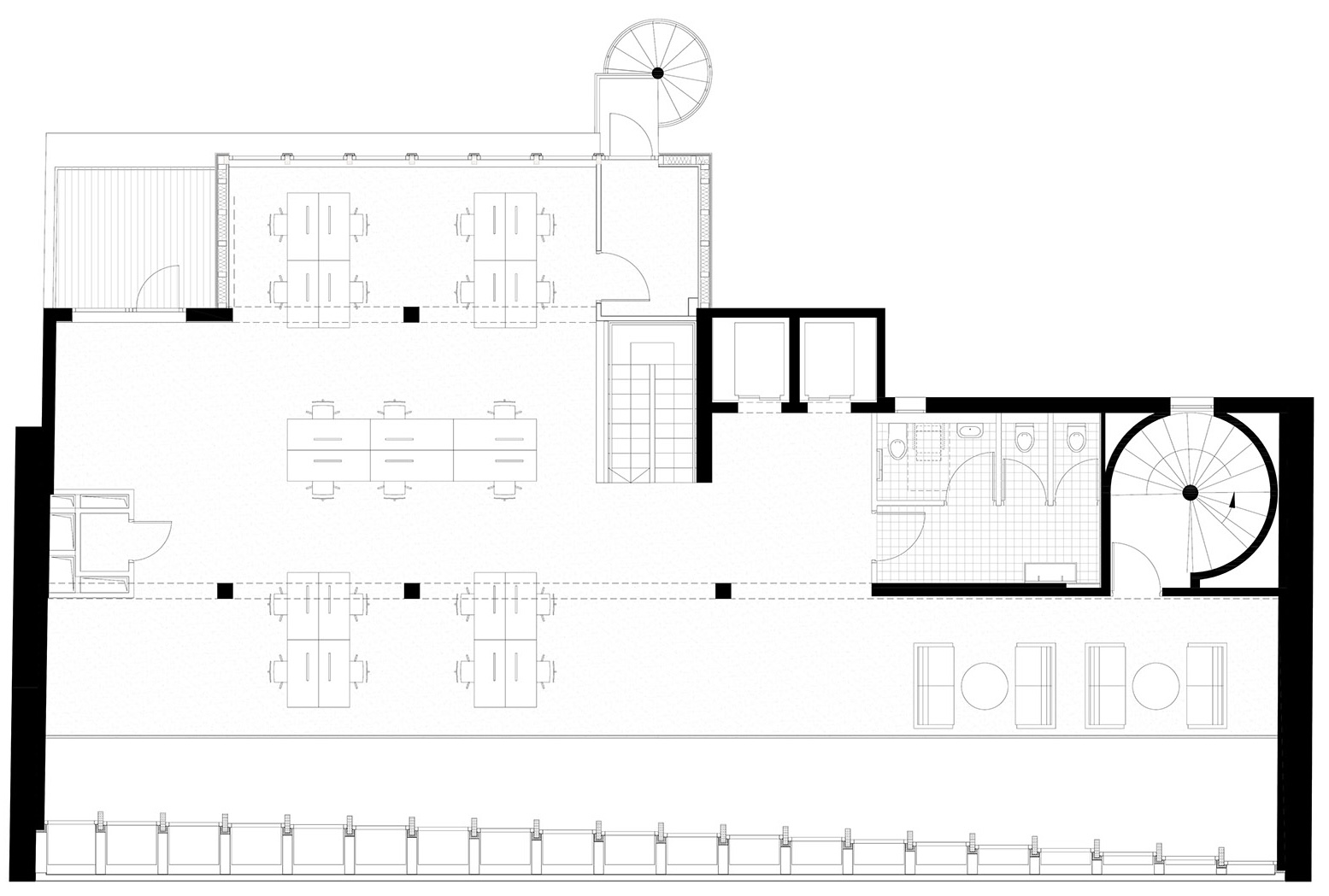
▼平面图, plan © Yohann Fontaine
▼立面图, elevation © Yohann Fontaine
▼轴测图, axon diagram © Yohann Fontaine
▼细部节点,details © Yohann Fontaine
Architect : Atelier Quinze Vingts
Mission : Complete mission
Location : Rue du Docteur Finlay, Paris (15)
Client : Foncière LFPI REIM
Surface area : 1400 m² with a 200m² vertical extension
Total cost of works: €3,500,000 excluding VAT
Schedule : 9 months of studies / occupied site / 12 months of construction
Delivery : July 2022
Photograph: Yohann Fontaine
客服
消息
收藏
下载
最近

























