查看完整案例

收藏

下载
台州杨帆悦溪里项目方案设计
370
页,联排
+
高层产品,
GAD
设计
资料简介
设计充分整合地块的优势资源,规避周边不良环境干扰,规划设计以人为本,凸显人文设计理念,为小区住户找到归属感,充分挖掘项目的价值点,创造一个具有人文关怀及优质居住环境的住宅社区。
设计概念从整体区位环境出发,通过合理的总体。户型及景观等一系列精细化设计规避周边不良环境干扰,创造温馨静谧的文化社区氛围。同时通过高品质的建筑设计和智能化设计营造出一个充满文化氛围的现代居所。
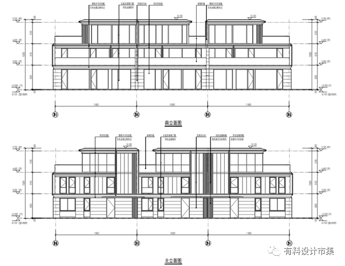
建筑立面设计考虑周边环境和自身布局,采用现代风格,立面简洁,形成完整协调的城市界面。色彩选择上采用浅色和灰色搭配的方式。形体上铝板线条与大面积玻璃结合,以丰富精致的细部营造出高品质的住宅建筑,金属格栅、铝板和玻璃的搭配,建筑呈现出现代、内敛的形象效果,整体协调又不失变化。
景观设计围绕纵深方向的空间主轴展开景观设计,通过引入多个节点广场串联,对重点景观功能节点进行设计和提升,美化景观空间、提升功能性、增加趣味性打造高品质的社区空间。同时设计充分利用项目东侧及南侧的景观资源,形成外部景观与内部景观的渗透和融合。
客服
消息
收藏
下载
最近























