查看完整案例

收藏

下载
项目信息
项目名称:上市科创园二期项目
建设单位:苏州新浒投资发展有限公司
设计单位:苏州华造建筑设计有限公司
施工单位:通州建总集团有限公司
项目地址:苏州高新区浒墅关镇青花路与浒杨路路口
项目规模:建筑面积151128平方米
工程负责人:王志斌
建筑:徐飞、郭海、徐向东、谈敏、刘飞、高婧宜
结构:张华、葛菁宏
给排水:李红岩、嵇馨、袁婷
暖通:陆勤俭、葛舒怀、范凯歌
电气:黄斌斌、张晓刚、陈龙、贺青波
获得奖项:2024年度苏州市勘察设计项目竞赛作品(建筑工程设计-工业建筑)一等奖
▲东南鸟瞰图
土地高效利用、产品类型丰富、项目货值提升
Efficient use of land, diverse product types, and enhanced project value
▲沿沪宁高速鸟瞰
上市科创园二期项目位于苏州高新区浒关经济开发区,紧邻沪宁高速,总建筑面积约15万平方米。在本项目的设计中,设计团队通过与建设方充分沟通,从总体规划和单体产品两个维度对“工业上楼”的高效率产业园设计进行创新迭代。
一方面得益于建设方极成熟的市场开发运营经验,我们与建设方共同研发了更适应市场的产品类型,在建设方意向的面积段中提供更多样化的选择,以此提升土地利用率、产业承载力和工业建筑产品竞争力;另一方面通过产业类项目的经验积累,对产业园区的空间组织方式进行创新,在保障生产流线的高效、与城市互通互联的同时,创造绿色可持续、具有社区感的园区环境,形成富有生机和活力的新型产业园区。
▲项目区位图
项目原址用地为近20年前开发建设的低密度,低效率的多层厂房,已经不适合新型产业载体的需求。所以在布局规划设计中,我们以生产流线的高效率和合理性为主导,保证高效便捷的交通组织,从而形成了简洁规整的路网关系,提高了后期生产活动的便利性。另一方面,在密度基本用足的情况下,通过建筑单体的腾挪形成了主入口广场及围合中心庭院,结合首层的架空层景观设计和客货分流的流线设计,整体形成高品质的园区环境。
▲沿城市道路鸟瞰图
为兼顾城市形象,我们将最高的50米塔楼置于基地的东南侧,面向城市主干道,同时符合南高北低的城市空间关系。场地东北侧是紧邻沪宁高速的城市展示面,我们将沿高速公路及城市道路的建筑群做连续化整体形象设计,四层穿插一些退台露台设计,整体形成高低建筑互相穿插、建筑语言层次丰富的形象。
生产流线便捷、功能高效利用、多级空间渗透 Streamlined production, efficient use of functions, multi-level spatial penetration
▲项目总平面图
总图设计采取围合式的布置,总共10 栋建筑,1 栋高层与9 栋多层。高层位于地块的东南侧,其余均为不高于24米的多层建筑。高层为研发办公功能,多层均为生产厂房。地面一层的层高均为6m,不仅能满足部分公共空间的高度要求,同时也为某些有特殊空间高度要求的产业入住预留了充分的可能,建筑平面都是标准柱网与相对均质的连续空间,便于各种单元的分隔与组合。
▲项目首层总平面图
设计中采取了渗透型的多级公共联系空间。第一级是园区内建筑单体外围的公共空间,第二级是单体与单体之间的开放空间,第三级单体内部的围合庭院空间,第四级为单体的四层露台空间。除此之外,在各个不同的标准层中,设计还预留了其他类型公共空间的可能。随着信息化技术的发展,办公及生产方式越来越多元化,生产空间与办公空间的界线也越来越模糊,灵活开放的公共空间更受入住企业的欢迎。
轻盈流畅的建筑形象、健康优雅的办公空间、开放共享的未来模式
A light and fluid architectural image, a healthy and elegant office space, and an open and shared future model
生产型产业园区正随着从业者年轻化和功能复合多元化的趋势快速发展,差异化和个性化的建筑环境正逐步成为集群式园区的核心竞争力。在成本制约的前提下,我们选用了最普通的外墙涂料结合最简约的墙身设计,希望通过常规材料的创新应用,在成本造价和空间品质上寻找平衡;通过立面色材质质感的精细化和差异化设计,赋予工业建筑个性化的展示机会。
▲研发办公楼
▲标准厂房主入口
▲研发办公楼
▲沿城市道路连续立面
位于场地外围的高层和多层建筑选用了均质窗格的立面语言,形成统一且鲜明的整体形象。同时均质窗格使得室内采光更加均匀,符合工业生产对空间最基本的功能需求。为保证园区沿城市道路立面的统一性,高层研发办公楼及多层厂房单体立面沿用均质竖向窗的构造做法,外墙立面涂料采用凹槽内嵌深灰色涂料划分,化解整个建筑体量的敦厚感,同时点缀橙色外墙涂料增加立面的层次感,给沉闷的外墙涂料肌理增添一点活跃的元素。四层局部露台设计点缀其中,形成了丰富趣味的园区立面天际线。
▲简洁通透的立面设计,模糊了内外界线,即使在室内,也能感受院园景观
▲开放共享的庭院设计,为人们工作之余提供漫步式的游园体验
▲内部人车分流的慢行道路系统与景观轴线合二为一,对于使用者来说,贴心而便捷
▲「花园式工业项目理念」,实际是对人性化园区模式的探索,讲求的是工作与休憩场景的融合。通透的立面设计,模糊室内外的空间界线,无形中将建筑与景观合为一体
▲中轴庭院景观带
标准化建造、低成本材料、极致品质控制
Standardized construction, low-cost materials, extreme quality control
在立面设计上,完全采用普通外墙涂料,使得最大限度的降低工程造价。建筑下部体量选用深灰色外墙涂料划分,竖向错缝排布;上部体量选用浅灰色外墙涂料划分,竖向对缝排布;浅灰色涂料中穿插橙色色块,三种颜色拼接混搭,形成具有差异化的建筑表情。墙身构造结合造型、材料进行了细致的推敲。首先跟随建筑形体上下的错动、不同颜色涂料的分界,我们通过土建做法实现了20*20mm的凹槽,深灰色涂料与浅灰色涂料避免直接交接,通过凹槽进行过渡。凹槽的设计既强化了建筑上下两个形体的错动,又使不同颜色涂料在构造层面进行合理的交接。
▲典型涂料立面肌理
▲研发办公楼
▲立面细节
全过程咨询、一体化设计、为工业产业园迭代赋能
Full-process consulting, integrated design, and empowerment for the iteration of industrial parks
在本次项目实践中,设计团队完成了从规划到建筑、室内及景观的「全过程一体化设计」。基于对用户潜在需求的深度挖掘,我们希望在此打造优雅静谧,低调而不显张扬的园区氛围。在设计上,通过强调底层架空连廊的开放性和共享性,并配之以完善的园区配套设施,从不同层面完美诠释了建筑与生态发展的理念。也正是这种全过程一体化的设计模式,将我们的设计理念渗透到园区的每一分每一寸,为最终的建成效果及后期项目运营带来了极为难得的整体性和前瞻性,提升了土地效能和开发强度,为工业产业园迭代赋能。
▲景观细节
▲研发办公楼门厅
▲研发办公楼电梯厅
技术图纸
Technical drawing
▲项目首层总平面图
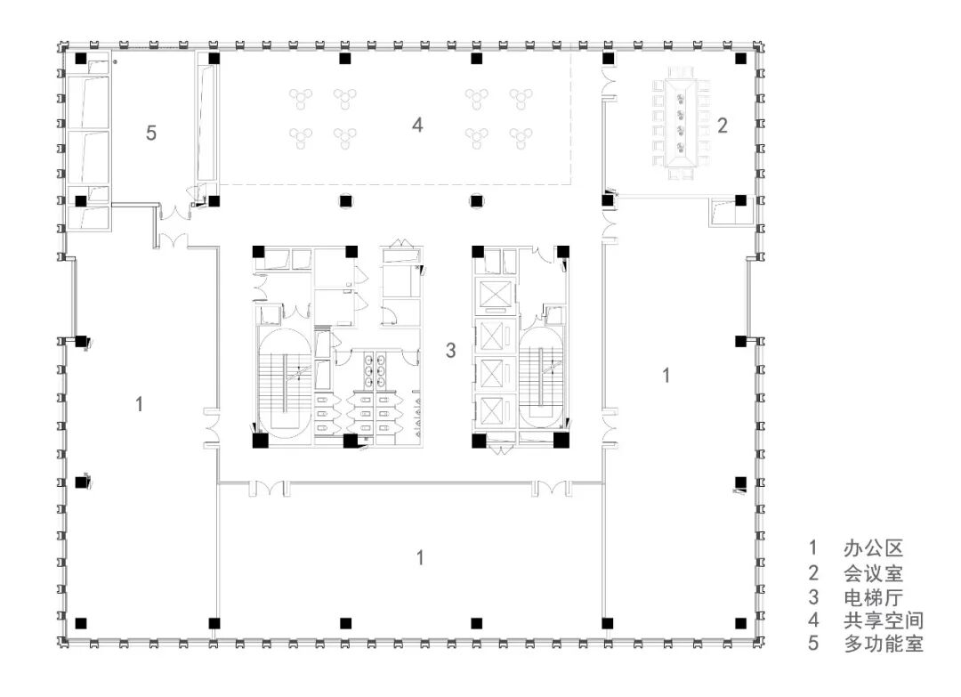
▲研发办公楼首层平面
▲研发办公楼首层平面
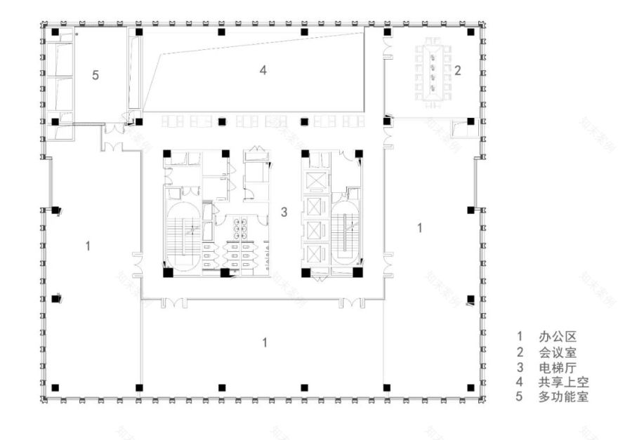
▲研发办公楼标准层平面
▲研发办公楼标准层平面
▲厂房一标准层平面
▲厂房二标准层平面
免责声明:
客服
消息
收藏
下载
最近




































