查看完整案例

收藏

下载
丄丅的由来
丄丅
是古文字的上下
首先,我们的设计理念是希望去繁从简,回归设计的本质,给屋主有温度的家。
其次,只有丄立不住,只有丅也立不住。只有丄丅都有,同心做事,才能稳固和创新,也代表了我们的团队模式。
未来,丄丅,就像它的名字一样,向上生长,向下扎根,活出自己的枝繁叶茂。
<空间形成>
丄丅设计 | 设计单位
江门·
蒲葵之梦天心 |
项目地址
300平
| 项目面积
复式毛坯
| 项目类型
「
Entry
玄关
「
Living Room
客厅
「
Dining Room 餐厅
「 Tea
Room 茶室
「
Study
书房
「Staircase
楼梯间
小狗的“半野生”城堡
一个允许它来去如风的洞
是楼梯间的小小自由宣言
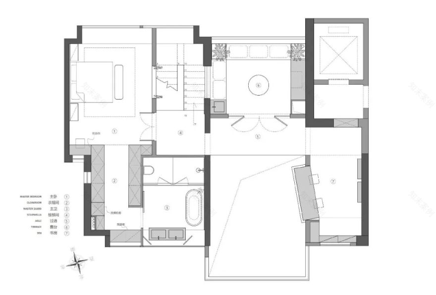
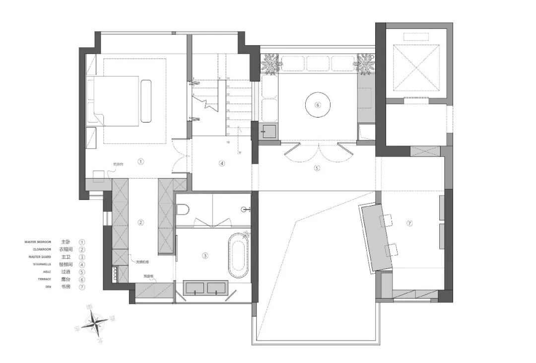
「Master
Bedroom 主卧
「Bathroom 主卫
「Balcony 露台
粗粝的、细腻的、像树皮皲裂又像溪水流痕的触感
在指尖与目光里同时生长
最踏实的陪伴
是听见彼此在各自领地的动静
SHANGXIA DESIGN
项目咨询 / 邀稿请联系
Add:厦门市湖里区TCCA红顶艺术中心5栋104-105
客服
消息
收藏
下载
最近





























