查看完整案例

收藏

下载
苏州金普顿竹辉精品酒店室内方案设计
147
页,
SCDA
设计
资料简介
苏州金普顿竹辉酒店是一个充满老苏州故事、艺术的文化情感表达的当代绿洲。
酒店设计将苏州的城市底蕴和现代元素相结合,其独特的建筑标志着一种新的设计风格的诞生。
项目位于苏州姑苏区双塔街道、古城东南角,地块南北长190米,东西长285米,南接竹辉路,西邻南石皮弄,北侧和东侧被具有2500年历史的南园河环绕,临近众多极具代表性的苏州园林,距离网师园和十全街的步行距离仅500米。
走进酒店美丽的大门,宾客将会沉浸在历史文化、别具一格的设计、时尚、音乐、诗意的生活方式和特色节目中。来姑苏老城,感受鲜活的金普顿酒店。
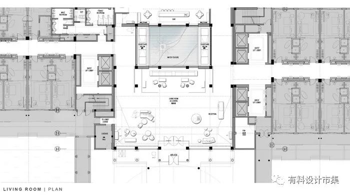
SCDA借鉴世界文化遗产苏州园林以及运河的特色,设有179间客房,2间餐厅和1间酒吧,以及1074平方米的宴会活动空间,将带您领略酒店空间、设计、艺术、美食美酒等别具一格的宾客体验。
客服
消息
收藏
下载
最近

























