查看完整案例

收藏

下载
东阳人民医院巍山分院长期护理院项目初步设计
211
页
资料简介
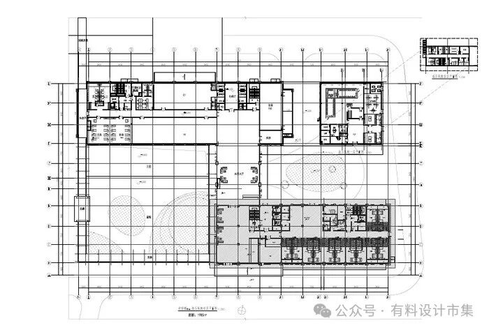
东阳市人民医院巍山分院位于东嵊公路东侧,总用地面积
66129
平方米。院区北侧为医疗区,设置有门诊、医技、住院楼。南侧为生活区,主要设置制剂中心、停车楼和值班宿舍。院区东侧与西侧均为山体,南高北低,本次将在院区东侧新增用地新建长期护理院。
巍山院区现有布局南北分区明确,北区医疗区,南区生活区,互不干扰。本次设计在老院区东侧新建两幢长期护理院,并在北侧设置次出入口,方便护理楼单独出入,不影响院区秩序。
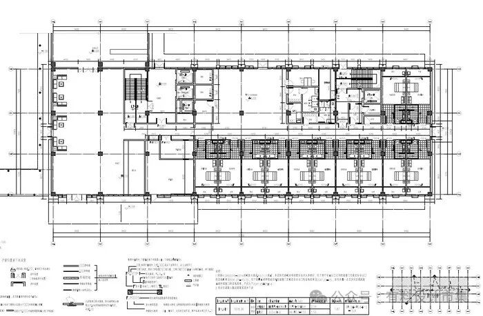
立面风格风格大气、庄重,和院区现有建筑风格统一。外墙材料铝板与真石漆结合,通过相同的材料的不同的搭配使建筑相互呼应又不完全一样,多元而统一,使得整体形象丰富多彩。发热门诊和高压氧舱也采用竖线条现代设计语言,协调统一。
客服
消息
收藏
下载
最近














