查看完整案例

收藏

下载
济南雪山片区一期
B01
地块办公项目方案设计
177
页
资料简介
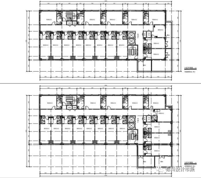
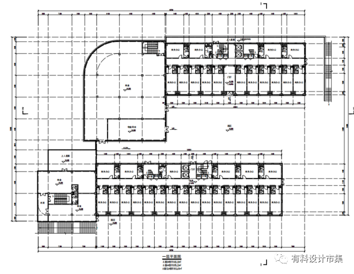
本项目位于济南市历城区,蒋山西北,西临凤鸣路,北临蒋山北路,建设用地约3.9 公顷,可规划总建筑面积约8.2 万平方米,其中,地上建筑面积约5.4 万平方米。项目计划总投资约6 亿元。
济南雪山片区一期B-01 地块项目设计方案在适应当代社群商业与办公模式的基础上,引入景观化社会交往空间,以蒋山为依托,打造以场景化和布景化为主题并服务于中高端消费群体的邻里活动中心和城市会客厅。拟将本项目打造成绿色健康、舒适智能的现代商务建筑模式,在规划与建筑设计上体现项目品质的现代建筑群落。
商业建筑主要采用浅色石材、铝板、金属百叶等 ,结合地形采用退台的形式处理,让建筑更多的融入环境。办公建筑主要采用质感涂料、浅色玻璃等材质,设置屋顶露台以达到与环境最大成都的互动,形成办公组团独有的开放、高效的感觉。整体造型上商业建筑更显多元丰富,办公组团显示办公建筑的性格,整体氛围偏文化属性,与生态文化中心相呼应。
客服
消息
收藏
下载
最近

















