查看完整案例

收藏

下载
在福州东二环的繁华与静谧交织之处,阳光城象屿・登云湖以「墅区即公园」的先锋理念,匠造福州主城稀有的低密墅居范本。自登云湖入市以来,品川设计已与众多登云湖业主达成签约合作,目前多个项目已陆续步入施工阶段。
作为深耕高端别墅豪宅设计领域
19
载的品川设计,始终以「领衔中国人居空间品质」为使命。我们深度研析登云湖别墅的户型基因,致力于为登云湖业主呈递更具诗意的生活提案,构筑兼具前瞻性与都市度假感的栖居范式。
一、登云湖别墅户型解析:稀缺性与挑战并存
登云湖的户型设计在空间布局上颇具巧思,大面积的开窗让室外的湖景与绿意有了融入室内的可能。
但在实地勘察
,
和业主沟通中我们发现,部分户型存在一些
“痛点”:部分户型由于结构布局或建筑朝向等因素,地下室与部分区域仍存在自然光不足的
问题
。同时,在层高方面,若土建阶段未预留足够层高,后期改造易受结构限制;此外,部分空间功能单一,未能充分发挥其潜力,难以满足现代家庭多样化的生活场景需求。
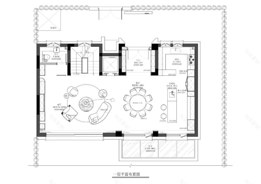
登云湖双拼别墅户型设计平面图
登云湖双拼别墅户型
设计
平面图
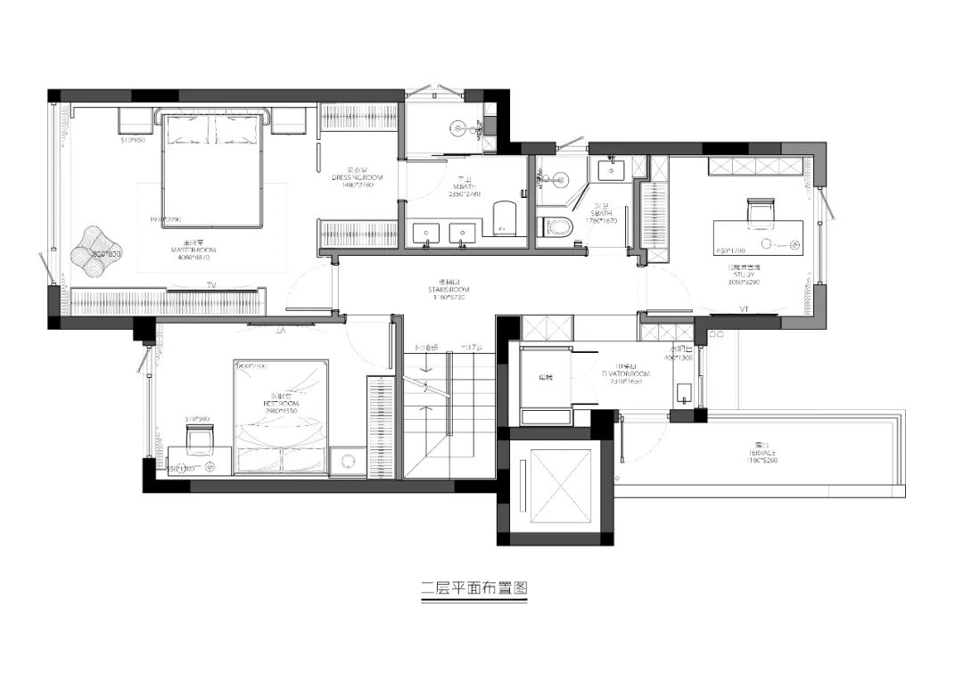
登云湖联排别墅户型
设计
平面图
登云湖叠上别墅户型
设计
平面图
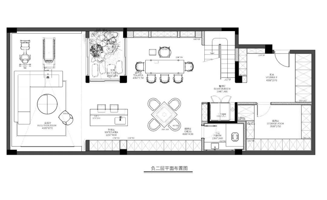
登云湖叠下户型
设计
平面图
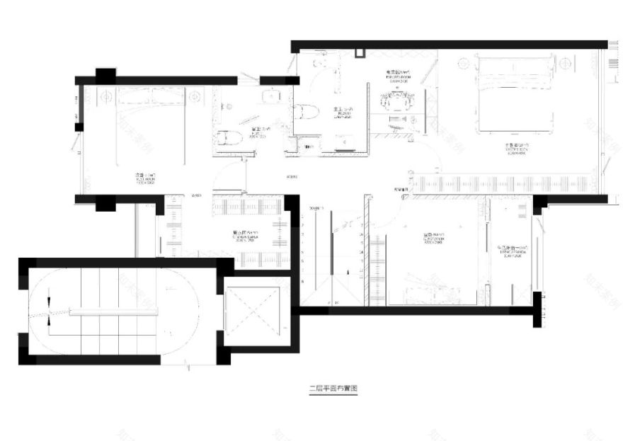
登云湖中叠户型
设计
平面图
二、品川设计三大优化策略:从结构到细节的全维度升级
1.
以光为引:负二层采光井与全开放设计
针对地下室采光难题,品川设计在土建阶段提前介入,通过以下方案实现
“地下空间地上化”:
采光井植入:
在负二层增设下沉式采光井,结合透光玻璃顶面,将自然光引入地下,搭配镜面材质与浅色系软装,视觉延伸感提升
50%
。
开放式空间重组:
打破传统隔墙,将影音室、酒窖、健身区以
“无界”形式串联,搭配智能灯光系统,营造通透且功能分明的复合空间。
登云湖双拼别墅户型-轻法式
2.
层高优化:从土建到交付的全周期把控
品川在土建阶段便介入协同施工方,深度优化结构规划:
结构预判:
通过模拟管线走向,优化梁体位置,确保地下室净高,消除压抑感。
细节提升:
采用超薄吊顶工艺与嵌入式灯具,进一步释放纵向空间,实现
“层高即舒适度”的精准把控。
登云湖双拼别墅户型-现代风格
3.
功能升级:量身定制,让家盛放热爱
品川设计深知家是生活的容器,更是兴趣的延伸。我们深入洞察每位业主的独特喜好,将地下室打造为承载梦想的
“兴趣宇宙”:
为海钓爱好者:
规划专业恒温海鲜储藏区与装备展示墙,让丰收喜悦触手可及;
为斯诺克发烧友:
定制专属球桌空间,搭配专业灯光与舒适观赛区;
为二次元收藏家:
在负一层增设隔音工作间,配备可调节灯光与防尘展柜,完美收纳手办与
cos
装备;
登云湖联排别墅户型-中古风
品川始终坚信,设计是解决问题的艺术,更是生活理想的具象化表达。我们以自然之韵为灵感源泉,以美学法则为创作准绳,以艺术巧思为点睛之笔,深度挖掘生活本质,精准描摹生活场景,让每一处空间设计都成为对登云湖诗意栖居愿景的生动回应,也为业主勾勒出理想人居的未来图景。
登云湖联排别墅户型-现代+中古风
十九载匠心深耕别墅豪宅领域,品川以专注铸就专业。我们首创的
别墅豪宅设计系统
,涵盖了
功能结构、环保主材生态、生活细节定制、风格定制
等多达13大系统。
从空间的基础架构搭建,到环保材料的严格甄选;从生活细节的个性化雕琢,到整体风格的精准定制;从水与空气的健康把控,到智能家居的便捷融入,乃至庭院景观的诗意营造、艺术品收藏的品味塑造以及软装搭配的美学呈现,每一个系统都经过精心打磨。
登云湖叠拼别墅户型-意式轻奢
凭借这套完善且专业的别墅豪宅设计系统,我们打造出了行业首个
别墅全案服务体系,
已为无数别墅业主打造出梦想家园,收获了
高达 90% 的老客户转介绍率
。这份亮眼的数据,不仅是客户对我们的认可,更是品川在行业内卓越口碑的有力见证。
在服务之路上,品川始终秉持「用更好的服务赢得更好的口碑」的理念,矢志不渝地践行「让每一位客户都能住进高品质生活美学空间」的使命。从设计构思到施工落地,我们全程用心雕琢,力求为您呈现超越期待的居住体验。
“
”
品 川 简 介
客服
消息
收藏
下载
最近



























































