查看完整案例

收藏

下载
项目背景 | PROJECT BACKGROUND
项目位于上海市长宁区,坐落于番禺路与淮海路路口,原建筑建造于1993年,原为日本使领馆办公用房,原建筑图纸为红砖新古典主义风格。后于2005年左右经历一次改造,原有立面被整体拆除,并改为玻璃/
铝板幕墙
。但改造后银灰色建筑形态与周边大量文保建筑格格不入。此次设计为二次升级改造,旨在重修立面,并将内部空间从低价办公租赁升级为高端会所式办公,使其成为可以融于历史保护区的整体风貌,传承延续“摩登上海-哥伦比亚生活圈”的记忆,并符合现代生活空间体验的淮海路新地标。
The project is located at the intersection of Panyu Road and Huaihai Road in Changning District, Shanghai. Originally constructed in 1993 as the office building for the Japanese consulate, the building featured a red-brick neoclassical style. However, during the first-time renovation in 2005, its facade was replaced with glass and aluminum curtain walls system, which is discordant with the surrounding historical architecture. The current renovation design aims to restore the original facade characteristics, and to convert the interior from low-rent office space to high-end clubhouse office. The goal is to integrate it into the overall ambiance of the historical preservation area, perpetuate the memory of “Modern Shanghai - Columbia Circle,” and establish a new landmark on Huaihai Road that meets modern living requirement.
“哥伦比亚生活圈 Columbia Circle”:
1925年,上海美国侨民在西郊大西路以南,兴建占地广阔的美国乡村总会(Columbia Country Club)。同年,上海公共租界工部局也在其南侧与东侧,越界修筑安和寺路和哥伦比亚路 (今番禺路) 。1928年,美商普益地产公司在此投资兴建数十幢花园住宅(外国弄堂),由匈牙利建筑师邬达克设计,形成了早期哥伦比亚生活圈的雏形。随后该区域迅速成为当时上海侨民与中上层人士的追捧的置业热土,1931年,公董局会董,万国商团总司令樊克令(Cornell Sydney Franklin)也在此购地并新建其别墅(淮海西路338号,今解放军海军特色医院),将热潮推向顶峰。
随后几十年中,规划变迁,但该区域一直是上海核心生活圈,横跨“衡复风貌区”与“新华路风貌区“,成为”梧桐树下上海“的形象名片。2018年,美国乡村总会在改造更新后重新开放,并更名上生·新所,英文名则沿用了Columbia Circle,开启了该区域内新一轮的城市更新与风貌活化。
“Columbia Circle”
In 1925, American expatriates in Shanghai established the Columbia Country Club, located south of Daxi Road of western suburbs. In the same year, the Municipal Council of the International Settlement of Shanghai also constructed Anhe Temple Road and Columbia Road (today's Panyu Road) in south and east of the club, crossing the settlement boundary. In 1928, the American-owned PuYi Real Estate Company invested in the construction of dozens of garden houses, designed by Hungarian architect László Hudec, forming the early Columbia lifestyle district. Subsequently, this area quickly became a sought-after real estate hot-spot for expatriates and upper-middle-class citizens in Shanghai at that time. In 1931, Cornell Sydney Franklin, a board member of the Municipal Council and commander of the International Settlements Volunteer Corps, also purchased land here and built his villa (No. 338 Huaihai West Road, today's Naval Medical Center of PLA), pushing the real estate boom to its peak.
Over the decades since then, plans have changed, but this area has always remained a part of Shanghai’s core living circle, spanning the "Hengshan-Fuxing Historic Conservation Area" and the "Xinhua Road Historic Conservation Area," and has become a representative image of "Shanghai under the plane trees." In 2018, after renovation and updating, the American Country Club reopened and renamed Columbia Circle, marking a new round of urban renewal and revitalization of the area’s features.
改造理念 | RENOVATION CONCEPT
规划层面,项目位于风貌区新旧融合范围,有可查询历史原貌图纸,却并未达到历保或文保的标准。但如果以新建筑的思路放开改造的自由度,考虑到其哥伦比亚生活圈核心的落位,则从长远角度不利于片区整体风貌的一致与连贯性。由于该类建筑目前没有明确的规范性导则,其也在设计早期经历了多方较为激烈的讨论。在“对话历史风貌“的大前提下,风貌修复改造中现代与古典的主导比例成为各方关注的焦点,并演化为多达30稿的课题研究。
From a urban planning perspective, the project situated within the "new and old architectural styles blend" zone. Although historical drawings of the original appearance are available, they do not meet historical preservation standards. However, if we release the renovation limitation as a new architecture, considering its core location, the consistency and coherence of the overall features of the area may damaged from long-term perspective. Due to the lack of clear guidelines for such buildings, the proportion between modern and classical elements of the new facade sparked intense discussions during the initial design stage, and resulting in up to 30 design & research options.
经过与甲方,规划局,风貌专家的多方探索与研究后,设计最终提出了“追溯适应性改造“的改造理念。即追溯建筑历史最初原貌的建筑体系特征(古典多段式结构/红砖/圆拱),适应风貌区整体空间氛围(参考提取风貌区周边建筑的若干典型元素与特征,如拱心石,门头形态,窗台节点,叠券等),适应优质生活空间的使用需求。设计在不改变原始结构前提下最大程度调整窗墙比例,使每个房间都拥有大面积开窗,创造充足采光与沿街极致视野。同时为每个标准会客室设置了多轨道移门,大横窗可完全打开变为半开放空间,南套房也额外设置了转角罗密欧露台,强化室内外连接,塑造“梧桐树下的上海”的空间体验。
After extensive exploration and research involving the client, planning authorities, and architectural preservation experts, the design proposed the concept of "Retrospective & Adaptive Renovation." This involves retracing the architectural system characteristics of the building's original appearance, such as classical multi-segmented structures, red bricks, and rounded arches, while adapting to the overall spatial ambiance of the preservation area by extracting typical elements from surrounding buildings, such as keystones, entrance door forms, window sill nodes, and layered arch. Additionally, The design also addresses the needs of high-quality living spaces by maximizing the window-to-wall ratio where structural changes are feasible, allowing each room to have large window areas for ample daylight and unobstructed street views. To enhance indoor-outdoor connectivity, each typical meeting room is equipped with multiple-track sliding window, it can turn the room to a half-open space when the window is fully opened. Also, the south-facing workplace feature a corner Romeo-Platform, the design wish to create a spatial experience reminiscent of "Shanghai under the plane trees."
为与风貌区大量文保红砖建筑形成呼应,建筑外立面采用陶土劈开砖为主要材料,三种不同深浅的红砖以7:2:1的由老师傅根据图纸定位规则全手工铺贴,以模拟老红砖建筑在时间长河中,尽量风吹日晒洗礼后呈现的色差斑驳感。
To respond numerous of red brick heritage buildings in the historical style zone, the building's exterior facade primarily utilizes clay split bricks as the main material. Three different shades of red brick are hand-laid by skilled craftsmen according to a 7:2:1 ratio, following the specifications on the blueprint. This method aims to mimic the variegated colors and mottled appearance that old red brick buildings exhibit over time, weathered by wind and sun.
灰色空间的升级 | UPGRADE OF "GRAY SPACE"
设计在改造初期,对周边居民,未来潜在使用者,风貌区管理专家都做了较为详细的走访,除了建筑形态以外,也对沿街公共场地,开放空间,绿色建筑等几个问题的需求进行了总结,用以指导后续设计。
At the initial stage of the renovation, the design team conducted detailed interviews with surrounding residents, potential future users, and experts in the management of historic conservation areas. Besides the architectural form, they also summarized the needs for public spaces along the streets, open spaces, and green buildings, which guided the subsequent design.
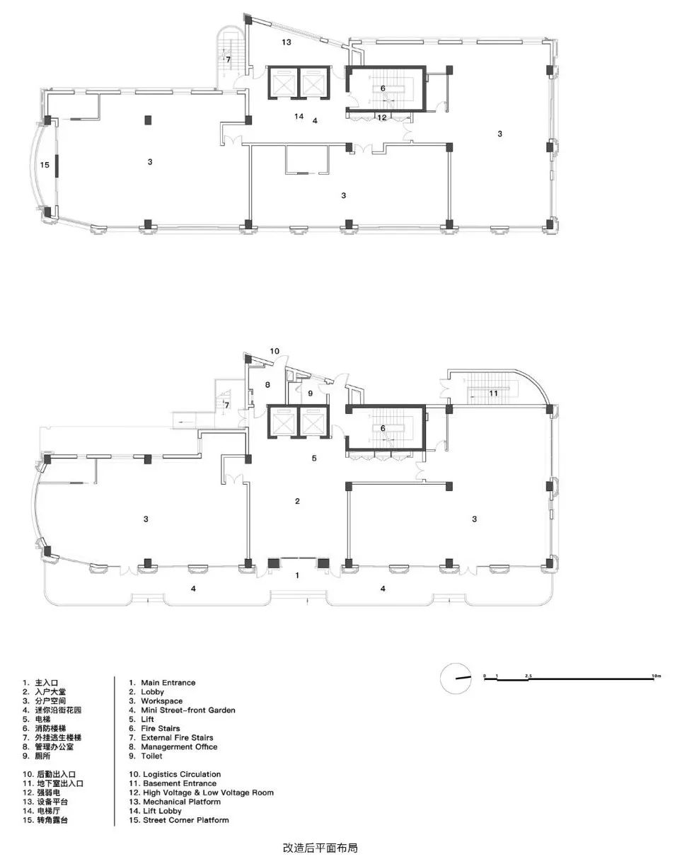
改造对建筑原有暖通空调系统进行了更新,将整栋统一运营的,每日按时开闭的中央空调改造为分户式空调,每层独立设置空调设备平台,以方便每个使用单元可以根据需求分时段单独使用,并单独设立电表管理。同时新的立面设计不再是封闭的幕墙系统,大比例的开启窗加大了自然通风和自然排烟的比例,以减少建筑运营总的碳排放量。中央空调系统拆除后也为屋面解放了大面积的开放空间,该区域被改造成了屋顶花园,包括休息露台和景观树池,结合地面原废弃配电站区改造的后花园,为该建筑补充了大面积的绿化空间。
The renovation updated the building's original HVAC system, transforming the central air-conditioning system that operated daily on a fixed schedule into individual air conditioning units for each household. Each floor was equipped with an independent air conditioning platform, allowing each unit to use AC separately with their own electricity meters, according to their needs. Meanwhile, the new facade design is no longer a closed curtain wall system; operable windows were added to every room, increasing the proportion of natural ventilation and smoke exhaust, thereby reducing the total carbon emissions of the building operation. After the removal of the mechanical rooms central air conditioning system, a large open space was freed up on the rooftop, which was transformed into a roof garden, including a resting terrace and landscaped tree pools. And a mini-rear garden is designed in the original abandoned distribution station area. All these provide the building a large amount of green space
首层沿番禺路也在3.5m进深内创造了mini临街花园,1.9米的树池既可以保护室内的私密性,但也不会遮挡建筑在沿街面的形象,为一层用户创造了一个私密与公共之间的“过渡花园“
Also, A 3.5m depth mini street garden was created along Panyu Road on the ground floor. The 1.9m tree pit not only preserves indoor privacy but also does not obscure the building's street-facing image, creating a "transitional garden" between privacy and publicity for the first-floor users.
设计反思 | AFTER DESIGN THINKING
此次改造为上海大量该类建筑提供了一个可能性的改造范本,在尊重城市肌理的同时,如何寻找现代与风貌的平衡点,赋予建筑新的生命力。从时间长河来看,老建筑以高端会所办公空间焕发新生,也是对100年前该区域做为上海顶级生活区“哥伦比亚圈“的一种跨越历史的呼应。
This project provides a potential template for the renovation of numerous similar buildings in Shanghai, balancing modernity with architectural historical style to infuse new vitality into the city while respecting its original urban fabric.Viewed through the flow of time, the transformation of buildings into luxurious workplace signifies a rebirth, also serving as a historical echo to this region, where is known as Shanghai's premier residential district, the "Columbia Circle," 100 years ago。
免责声明:
客服
消息
收藏
下载
最近





























