查看完整案例

收藏

下载
当精算表格遇见普罗旺斯的阳光,这个双金融精英家庭在130㎡空间里完成了一场理性与浪漫的完美平衡。夫妻二人作为金融从业者,对细节与品质的追求贯穿设计始终。这座位于上海浦东的住宅,以轻法自然风为笔,勾勒出一个兼具美学与功能的“成长型家庭”空间。
亲子互动、超强收纳、空间重构为基础需求;以淡雅色系为基底,亚麻、藤编等自然材质铺陈法式慵懒,而利落的线条与清爽的视觉留白,则暗合男主人对"干净空间"的执着。当周末的阳光透过纱帘,这个家既是孩子探索世界的起点,亦是大人卸下疲惫的温柔乡。
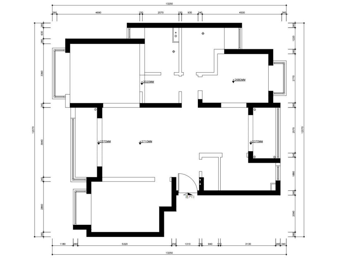
户 型 优 化
/ Room type Optimization
解决空间痛点,实现理想新居
核心需求:
亲子互动优先:孩子年幼时不需要独立卧室,更需开放活动空间
超强收纳系统:女主人衣物多,儿童成长物品需高效收纳
空间优化:次卧和次卫转角利用率低,卫生间正对大门风水不佳
功能调整:三人居住可优化双卫配置,因就近父母家厨房不用太大
改造思路:
次卧 → 开放多功能区(亲子互动核心):拆除隔墙改为半开放式活动区+灵活次卧,与客厅形成通透互动空间。
客厅整墙书架+收纳柜墙:沙发背后是非承重墙,利用墙体厚度做储物柜,薄墙做开放书架墙。
次卫 → 功能空间优化:小区对外立面要求高,外机只能放在室内,利用次卫飘窗空间摆放一拖五的中央空调外机;次卫保留马桶和淋浴房,采光也不受影响。
主卫调整门位,化解大门对冲:将主卫门改为侧开或隐形门设计,避开正对入户门。
客 厅
/ Living Room
一面墙=收纳柜+书架墙
利用非承重墙体厚度设计“复合式储物系统”:厚的做储物柜、薄墙1.6m长做石膏板开放书架,中间留40cm通道维持客厅原始3.94m的面宽。
这种开放式与封闭式相结合的设计方式,既满足了储物的实际需求,又在视觉上营造出一种错落有致,富有层次感的空间效果,使整个厅在开阔的同时不失精致与细腻,展现出一种文艺而松弛的独特氛围感,让居住者在回到家时都能感受到身心的放松与愉悦。
客厅与阳台的完美结合,进一步强化了室内的开放性与互动性,原本各自独立的区域如今无缝衔接,形成了一个通透敞亮的整体空间。
TIPS:为了设计还原落地且确保承重耐力性,1.6米的石膏层板开放架采用钢架打底+石膏板外刷漆。
铺设地暖,为避免层高压抑,采用无主灯设计,顶部以嵌入式射灯提供基础照明,搭配落地灯营造氛围光线,既保持空间通透感又满足多层次照明需求。
屋主尤为看重沙发的舒适性,最终定制了一款可坐可躺的观影沙发,兼顾实用与配色,茶几选用定制洞石款,餐椅是业主之前的自用款,因木纹的温润色调与空间极为契合,便延续使用,既环保又让新旧家具之间有了温暖的对话。
多功能室
/
Multi Function Room
地台+成长型游乐场+收纳柜+卧室
这是一个以“亲子互动”为核心的半开放式多功能房设计。通过地台和3+0联动木移门划分空间,兼顾通透性与趣味性。地台高度适配儿童尺度,沿墙定制组合柜整合衣柜功能,底部开放格便于玩具收纳,并预留1.8米床垫位及插座,未来可轻松转换为独立卧室,实现一屋多用。
设计师为
单扇1050mm吊轨移门
反复优化承重方案,最终实现三扇联动和不均匀排布的洞洞造型,投影幕布轨道完美隐藏于吊顶内,更体现精细化设计。这个“会成长的游乐场”既满足孩子各阶段需求,又增强家庭互动,让公区更显开阔。"
餐 厅
/ Dining Room
自然温暖的艺术餐厅
客餐厅作为家的公共区,需要兼顾包容度与舒适度。设计上摒弃了不必要的墙体结构,增添室内的通透感与灵动感,当边界被打破被模糊,家便有了柔和的温度。
餐厅希望提取自然之美,整个空间以大地色为基调,主材选择了木材、石材、藤编等天然材料,给予居住者宁静且放松的就餐环境。相同size的Frisbi飞碟吊灯,悬挂在餐厅挑空上方,像是一个光的雕塑艺术品,不同尺寸纯手绘肌理挂画,让艺术的表达融进平时的日常生活中。
厨 房
/ Kitchen
开放式交互厨房
厨房改善原有封闭式空间结构,嵌入式烤箱外移至餐边柜,形成客餐厨的交互功能 提升空间层次和动线,选用天然石材、肌理拼花砖,使得空间的功能属性与美学的高级感完美结合。
卧 室
/ Bed Room
疗愈自然系+无压收纳
以舒适与收纳为核心的卧室,背景「月夜桂花」色营造天然疗愈感,无靠背床化解进深不足,高颜值座椅替代传统床头柜,既满足置物需求又避免杂物堆积。藤编钓鱼灯点缀其间,木色与天然纹理为简约空间注入温度,空间统一而有层次,引入自然元素强化室内外视觉联结,材质本身的温暖质感被放大,光影与适度留白让空间疏而不空。
主卧门洞1m做双开门明显空间不足,最终移至北次卧,为女主保留双开门仪式感,透明玻璃搭配硼纱的复古设计,满足采光、私密与质感多重需求。
主卧1米双开门空间不足,最终移至北次卧,保留开门仪式感。采用复古设计——透明玻璃搭配硼纱,兼顾采光、私密与质感。
公区全屋地砖砖通铺,空间立马显大2倍!收边隐形大法,材质交接处直接拼,告别丑丑的压条收边,质感提升,视觉和谐度拉满。
如需了解更多细节
硬装设计丨软装设计丨全案设计
鸿鹄设计(徐汇店)
地址:徐汇文定路200号盛源恒华大厦11层1111-1116室
荣誉 Honor
2025 第十二届筑巢奖公众类金奖
2025 第三届红墨斗奖十大年度公寓住宅设计奖
2025 Ariston国际室内设计大赛年度最佳空间设计金奖\卓越奖
第十三届国际空间设计大奖Idea-Tops居住空间设计 城市入围奖
2024 大金内装室内设计大赛全国铜奖
2024 居梦奖荣耀奖、金奖、银奖、铜奖
2024 金住奖上海(十大)居住空间设计师
2024 设计星城市设计星(2024-2025)东区50强
2024 ICS年度优秀色彩空间设计奖
2024 ID+G金创意国际空间设计专业奖银奖
2024 老宅新生设计奖年度优秀住宅空间设计
2024 40UNDER40当代设计杰出青年
2024 爱丁世界青年设计节 优胜奖
2024 IHIDA人居空间年度十佳公寓空间
2024 【猫星人和朋友们】入刊杂志《时尚家居》
2024 【猫星人和朋友们】荣登上海电视台东方卫视《筑家有道》节目
2024 中国台湾 TINTA金邸奖 居住空间/单层类提名奖
2024 中国台湾 TINTA金邸奖 居住空间/复层住宅类 提名奖
2024 第二届理想家IDEATXASKO入围奖
2024 【猫星人和朋友们】荣登ELLE家居廊、时尚家居、瑞丽家居、上海家具展
2024 第十三届国际空间设计大奖Idea-Tops居住空间设计 城市入围奖
2023 Hi-Design 第十届室内设计大赛“老房翻新奖”
2023 Hi-Design 第十届室内设计大赛“优秀奖”
2023 Hi-Design 第十届室内设计大赛“大区奖”
爱上美好生活家超级设计大赛 设计达人银奖
多乐士空间色彩设计大赛全国赛区 铜奖
2023 老宅新生设计奖·上海十大改造设计师
2022 营造家 FUTURE私宅坐标人物
2022 好好住年度推荐装修设计机构榜
2022 40UNDER40设计元中国(上海)设计杰出青年
2022 第九届设计本年度大赛-年度最具人气设计师奖
2022 第一届阿里巴巴每平每屋设计挑战赛TOP300
2022 Ariston Design Award 国际室内设计大赛180强
2022 Ariston Design Award 国际室内设计大赛温度设计机构奖
2022 Hi-Design 第十届室内设计大赛全国赛区“设计精英奖”
2022 Hi-Design 第十届室内设计大赛上海赛区“优秀奖”
2021 设计本年度最受业主喜爱设计师
2021 年度第八届日立室内设计大赛华东区新锐奖
2021 年度M+中国高端室内设计大赛TOP100
2021 年度“营造家奖”年度设计TOP500
2021 IHIDA国际人居空间设计-优秀住宅空间奖
2021 设计纪元40UNDER 40中国杰出青年奖
2021 年度HI-Design第九届室内设计大赛-上海设计精英奖
2021 年度HI-Design第九届室内设计大赛-优秀奖
2021 年度住小帮设计师大赛-华东赛区最佳改造奖
2020 国际空间设计'艾特奖'公寓设计优秀奖、入围奖
2020 设计本年度最受业主喜爱设计师
2020 年度“营造家奖”华东赛区TOP150
2019 年第九届'筑巢'别墅空间奖金奖
2019 年度“营造家奖”设计机构
2018 第二届中国室内设计新势力榜上海区TOP10
2018“营造家奖”年度设计师
2018 腾讯家居年度设计时尚盛典·金藤奖
2018 大众点评家居·最佳创意空间奖
2018 年度M+高端室内设计大赛年度优秀设计师
2018 大众点评新锐设计师·最佳软装搭配奖
2017 荣获 40 under 40 中国设计杰出青年
2016 篱笆网装修频道优质商户·鸿鹄设计
2016 第九届大金内装设计大赛上海区公寓组金奖、银奖
2015 央视《交换空间》栏目特邀企业
2013 第四届中国国际环境艺术设计大赛优秀奖
2012 年第二届国际环艺创新设计大赛一等奖
2011 第六届上海学院杯居住环境大赛别墅类金奖
2010 中国样板房大赛最佳规划奖
2009 上海鸿鹄设计成立
大众点评家居最佳创意空间奖
大众点评家居全国TOP4人气奖
大众点评新锐设计师最佳软装搭配奖
营造家 FUTURE私宅坐标人物
营造家奖年度人气设计师/机构
营造家奖华东赛区大户型设计TOP20
营造家奖华东赛区小户型设计TOP20
中国室内设计年度潜力设计师
腾讯家居年度设计时尚盛典·金藤奖
设计源·世界观丨华东赛区精英人物(梁志天颁发)
PCHOUSE AWARD私宅设计全国TOP100杰出设计机构
第8届国际空间设计大赛艾特奖金奖、铜奖
PChouse设计风尚奖、创新风格设计奖
M+中国高端室内设计大赛年度优秀设计师
家装‘匠筑美作’杯全国新锐设计师
第六届日立室内设计大赛全国二等奖(公寓组)
第十届大金内装设计大赛全国美宅设计公寓组铜奖
第十届大金内装设计大赛上海地区美宅设计金奖、银奖、别墅铜奖
第十届大金内装设计大赛上海赛区空间设计奖
第十二届大金内装设计大赛全国美宅设计(别墅)银奖 、公寓银奖、铜奖
第十二届大金内装设计大赛全国生活艺术公寓铜奖
第十二届大金内装设计大赛上海生活艺术(别墅)金奖 、公寓银奖
第十二届大金内装设计大赛上海美宅设计(别墅)银奖
△
可上下滑动查看更多
客服
消息
收藏
下载
最近
































